Larry Stein Oklahoma County Assessor (405) 713-1200 - Public Access System
Home Contact Us Guest Book Map Search New Search
Real Property Display - Screen Produced   4/29/2026 5:46:21 AM 
Account: R146181540  Type: Residential

  

Location:

3105 ASTORIA BLVD

Building Name/Occupant:

 

OKLAHOMA CITY

Owner Name 1:  OCHOA HOSNY E SANTIZO SANTIZO

Parcel PIN#:

2885-14-618-1540

Owner Name 2:  ARREAGA VENDI MELINA SALVATIERRA 1/4 section #:

2885

Owner Name 3:    Parent Acct:

 

Billing Address:  3105 ASTORIA BLVD Tax District:

City, State, Zip  OKLAHOMA CITY, OK  73122-1333 School System:

Putnam City #1

Country: (If noted)

  

Land Size:

0.2391  Acres

Personal Property

Land Value: 43,739 

Treasurer:

Sect 22-T12N-R4W Qtr NE

 WINDSOR HILLS 6TH   Block 030  Lot 010   Subdivision Sales
 Full Legal Description:  WINDSOR HILLS 6TH 030 010

NOTE:  The following sales may or may not be used to determine Fair Market Value

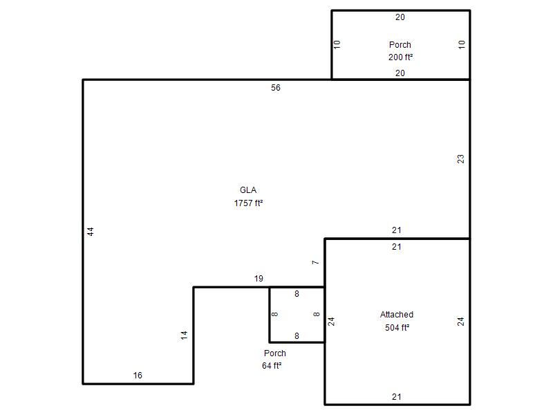
Photo & Sketch (if available) Sales  Sales Report

 4608 NW 34TH ST OKLAHOMA CITY, OK

10/31/2025

 $250,000 

 2704 N HARVARD AVE OKLAHOMA CITY, OK

11/14/2025

 $240,000 

 3105 ASTORIA BLVD OKLAHOMA CITY, OK

05/08/2023

 $250,000 

 2813 N STERLING AVE OKLAHOMA CITY, OK

04/09/2025

 $250,000 

 3508 N ANN ARBOR PL OKLAHOMA CITY, OK

11/25/2025

 $230,000 

 4604 NW 32ND PL OKLAHOMA CITY, OK

10/03/2025

 $212,000 

Value History  (*The County Treasurer 405-713-1300 posts & collects actual tax amounts.  Contact information  HERE)
Year Market Value Taxable Mkt Value Gross Assessed Exemption Net Assessed Millage Est. Tax Tax Savings

2026

244,500 

244,500 

26,895 

26,895 

123.17 

$3,313 

$0 

2025

250,000 

250,000 

27,500 

27,500 

123.17 

$3,387 

$0 

2024

251,000 

251,000 

27,610 

27,610 

122.30 

$3,377 

$0 

[1/10]
Property Account Status/Adjustments/Exemptions
Account # Exemption Description Amount

R146181540

5% Capped Account

Property Deed Transaction History   (Recorded in the County Clerk's Office)
Date Type Book Page Price Grantor Grantee

5/8/2023

Deeds

15454

1521

 $250,000 

HUNTLEIGH CO HOLDINGS LLC

OCHOA HOSNY E SANTIZO SANTIZO

4/19/2022

Deeds

15130

32

 $145,000 

ELLIS GERALDINE M

HUNTLEIGH CO HOLDINGS LLC SERIES AB

8/1/1979

Historical

4598

1305

 $0 

 

ELLIS GERALDINE M

Last Mailed Notice of Value (N.O.V.) Information/History
Year Date Market Value Taxable Market Value Gross Assessed Exemption Net Assessed

2024

02/13/2024

251,000 

251,000 

27,610 

27,610 

2023

02/14/2023

215,000 

215,000 

23,650 

23,650 

2022

03/15/2022

190,500 

89,247 

9,817 

1,000 

8,817 

[1/4]
Property Building Permit History
Issued Permit # Provided by Bldg # Description Est Construction Cost Status
No Building Permit records returned.
Click button below to access detailed information and additional property photos:
  Bldg # Vacant/Improved Land Bldg Description Year Built SqFt # Stories

Click

1

Improved

Ranch 1 Story

1965

1,757 

1 Stories