|
|
|
| Larry Stein Oklahoma County Assessor (405) 713-1200 - Public Access System |
|
|
|
|
|
|
| Real Property Display - Screen Produced 4/29/2026 5:46:32 AM | ||||
|---|---|---|---|---|
| Account: R146181710 | Type: Residential | Location: |
3001 N WINDSOR BLVD |
|
| Building Name/Occupant: |
|
OKLAHOMA CITY |
||
| Owner Name 1: | BRUTON MARY ANNE & MICHAEL C |
Parcel PIN#: |
2886-14-618-1710 |
|
| Owner Name 2: | 1/4 section #: |
2886 |
||
| Owner Name 3: | Parent Acct: |
|
||
| Billing Address: | 3001 N WINDSOR BLVD | Tax District: |
|
|
| City, State, Zip | OKLAHOMA CITY, OK 73127-1829 | School System: |
Putnam City #1 |
|
|
Country: (If noted) |
Land Size: |
0.3424 Acres |
||
|
Land Value: 62,643 |
|
|||
|
Sect 22-T12N-R4W Qtr SE |
WINDSOR HILLS 6TH
Block
031
Lot
000
|
|||
| Full Legal Description: WINDSOR HILLS 6TH 031 000 LOT 13 PLUS PT SE4 SEC 22 14N 4W BEG NW/C LOT 13 BLK 31 TH W40FT S95FT E40FT N95FT TO BEG |
| Value History (*The County Treasurer 405-713-1300 posts & collects actual tax amounts. Contact information HERE) | |||||||||||||
|---|---|---|---|---|---|---|---|---|---|---|---|---|---|
| Year | Market Value | Taxable Mkt Value | Gross Assessed | Exemption | Net Assessed | Millage | Est. Tax | Tax Savings | |||||
|
2026 |
233,500 |
183,552 |
20,190 |
1,000 |
19,190 |
123.17 |
$2,364 |
$800 |
|||||
|
2025 |
239,500 |
178,206 |
19,601 |
1,000 |
18,601 |
123.17 |
$2,291 |
$954 |
|||||
|
2024 |
240,500 |
173,016 |
19,031 |
1,000 |
18,031 |
122.30 |
$2,205 |
$1,030 |
|||||
| Property Account Status/Adjustments/Exemptions | ||
|---|---|---|
| Account # | Exemption Description | Amount |
|
R146181710 |
Freeze Senior Valuation |
0 |
|
R146181710 |
3% Cap Homestead |
0 |
|
R146181710 |
Homestead |
1,000 |
| Property Deed Transaction History (Recorded in the County Clerk's Office) | ||||||||||
|---|---|---|---|---|---|---|---|---|---|---|
| Date | Type | Book | Page | Price | Grantor | Grantee | ||||
|
7/16/2008 |
|
Deeds |
$140,000 |
REMINGTON DONALD & BARBARA TRS REMINGTON D R & B J TRUST |
BRUTON MARY ANNE & MICHAEL C |
|||||
|
9/6/2006 |
|
Deeds |
$0 |
REMINGTON DONALD R & BARBARA J |
REMINGTON DONALD & BARBARA TRS REMINGTON D R & B J TRUST |
|||||
|
2/26/1999 |
|
Historical |
$100,000 |
ROBINSON SALLY D |
REMINGTON DONALD R & BARBARA J |
|||||
| Last Mailed Notice of Value (N.O.V.) Information/History | ||||||||
|---|---|---|---|---|---|---|---|---|
| Year | Date | Market Value | Taxable Market Value | Gross Assessed | Exemption | Net Assessed | ||
|
2026 |
02/23/2026 |
233,500 |
183,552 |
20,190 |
1,000 |
19,190 |
||
|
2025 |
02/14/2025 |
239,500 |
178,206 |
19,601 |
1,000 |
18,601 |
||
|
2024 |
02/13/2024 |
240,500 |
173,016 |
19,031 |
1,000 |
18,031 |
||
| Property Building Permit History | |||||||||||
|---|---|---|---|---|---|---|---|---|---|---|---|
| Issued | Permit # | Provided by | Bldg # | Description | Est Construction Cost | Status | |||||
| No Building Permit records returned. | |||||||||||
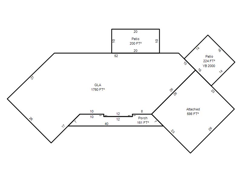
| Click button below to access detailed information and additional property photos: | ||||||
|---|---|---|---|---|---|---|
| Bldg # | Vacant/Improved Land | Bldg Description | Year Built | SqFt | # Stories | |
|
1 |
Improved |
Ranch 1 Story |
1966 |
1,760 |
1 Stories |
|