Larry Stein Oklahoma County Assessor (405) 713-1200 - Public Access System
Home Contact Us Guest Book Map Search New Search
Real Property Display - Screen Produced   4/29/2026 5:46:32 AM 
Account: R146181750  Type: Residential

  

Location:

4712 NW 30TH ST

Building Name/Occupant:

 

OKLAHOMA CITY

Owner Name 1:  STANPHILL JARED & KRISTEN

Parcel PIN#:

2886-14-618-1750

Owner Name 2:    1/4 section #:

2886

Owner Name 3:    Parent Acct:

 

Billing Address:  4712 NW 30TH ST Tax District:

City, State, Zip  OKLAHOMA CITY, OK  73122-1314 School System:

Putnam City #1

Country: (If noted)

  

Land Size:

0.2204  Acres

Personal Property

Land Value: 40,320 

Treasurer:

Sect 22-T12N-R4W Qtr SE

 WINDSOR HILLS 6TH   Block 032  Lot 004   Subdivision Sales
 Full Legal Description:  WINDSOR HILLS 6TH 032 004

NOTE:  The following sales may or may not be used to determine Fair Market Value

Photo & Sketch (if available) Sales  Sales Report

 3113 TUDOR RD OKLAHOMA CITY, OK

08/20/2025

 $255,000 

 3200 ASTORIA BLVD OKLAHOMA CITY, OK

04/25/2025

 $245,500 

 4604 NW 32ND PL OKLAHOMA CITY, OK

10/03/2025

 $212,000 

 3112 TUDOR RD OKLAHOMA CITY, OK

10/04/2024

 $245,000 

 4505 NW 32ND PL OKLAHOMA CITY, OK

07/25/2024

 $215,000 

 4609 NW 31ST ST OKLAHOMA CITY, OK

05/12/2025

 $221,000 

Value History  (*The County Treasurer 405-713-1300 posts & collects actual tax amounts.  Contact information  HERE)
Year Market Value Taxable Mkt Value Gross Assessed Exemption Net Assessed Millage Est. Tax Tax Savings

2026

214,000 

168,476 

18,531 

1,000 

17,531 

123.17 

$2,159 

$740 

2025

220,000 

163,569 

17,992 

1,000 

16,992 

123.17 

$2,093 

$888 

2024

219,500 

158,805 

17,467 

1,000 

16,467 

122.30 

$2,014 

$939 

[1/10]
Property Account Status/Adjustments/Exemptions
Account # Exemption Description Amount

R146181750

3% Cap Homestead

R146181750

Homestead

1,000 

Property Deed Transaction History   (Recorded in the County Clerk's Office)
Date Type Book Page Price Grantor Grantee

11/25/2014

Deeds

12718

1440

 $119,000 

BRADLEY JUANITA L

STANPHILL JARED & KRISTEN

11/23/1999

Hmstd Off &

7730

365

 $0 

BRADLEY BERNICE C & JUANITA L

BRADLEY JUANITA L

8/1/1976

Historical

4310

781

 $0 

 

BRADLEY BERNICE C & JUANITA L

Last Mailed Notice of Value (N.O.V.) Information/History
Year Date Market Value Taxable Market Value Gross Assessed Exemption Net Assessed

2026

02/23/2026

214,000 

168,476 

18,531 

1,000 

17,531 

2025

02/14/2025

220,000 

163,569 

17,992 

1,000 

16,992 

2024

02/13/2024

219,500 

158,805 

17,467 

1,000 

16,467 

[1/5]
Property Building Permit History
Issued Permit # Provided by Bldg # Description Est Construction Cost Status
No Building Permit records returned.
Click button below to access detailed information and additional property photos:
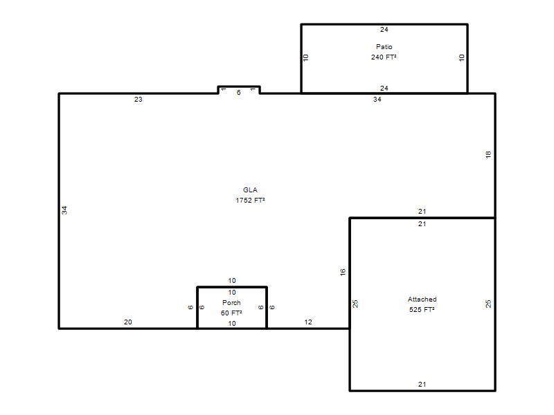
  Bldg # Vacant/Improved Land Bldg Description Year Built SqFt # Stories

Click

1

Improved

Ranch 1 Story

1964

1,752 

1 Stories