|
|
|
| Larry Stein Oklahoma County Assessor (405) 713-1200 - Public Access System |
|
|
|
|
|
|
| Real Property Display - Screen Produced 2/28/2026 3:43:38 AM | ||||
|---|---|---|---|---|
| Account: R146181880 | Type: Residential | Location: |
4713 NW 29TH ST |
|
| Building Name/Occupant: |
|
OKLAHOMA CITY |
||
| Owner Name 1: | SEGURA EDY & MAYRA P |
Parcel PIN#: |
2886-14-618-1880 |
|
| Owner Name 2: | 1/4 section #: |
2886 |
||
| Owner Name 3: | Parent Acct: |
|
||
| Billing Address: | 4713 NW 29TH ST | Tax District: |
|
|
| City, State, Zip | OKLAHOMA CITY, OK 73127-1936 | School System: |
Putnam City #1 |
|
|
Country: (If noted) |
Land Size: |
0.2342 Acres |
||
|
Land Value: 42,840 |
|
|||
|
Sect 22-T12N-R4W Qtr SE |
WINDSOR HILLS 6TH
Block
032
Lot
017
|
|||
| Full Legal Description: WINDSOR HILLS 6TH 032 017 |
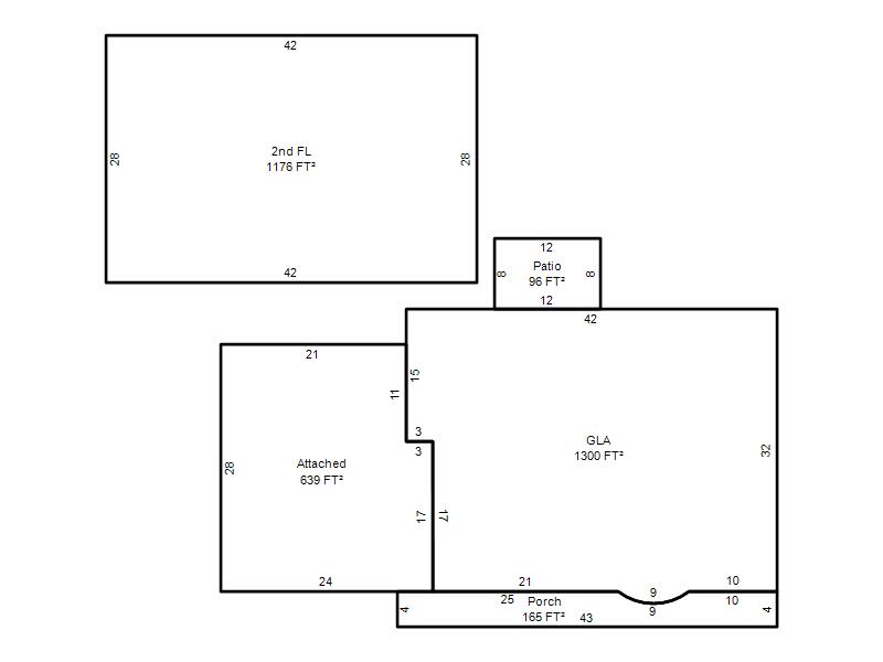
| Photo & Sketch (if available) | Comp Sales (ordered by relevancy) |
|
||||||||||||||||||
|
||||||||||||||||||||
| Value History (*The County Treasurer 405-713-1300 posts & collects actual tax amounts. Contact information HERE) | |||||||||||||
|---|---|---|---|---|---|---|---|---|---|---|---|---|---|
| Year | Market Value | Taxable Mkt Value | Gross Assessed | Exemption | Net Assessed | Millage | Est. Tax | Tax Savings | |||||
|
2025 |
270,000 |
234,281 |
25,770 |
0 |
25,770 |
123.17 |
$3,174 |
$484 |
|||||
|
2024 |
271,000 |
223,125 |
24,543 |
0 |
24,543 |
122.30 |
$3,002 |
$644 |
|||||
|
2023 |
258,000 |
212,500 |
23,374 |
0 |
23,374 |
121.91 |
$2,850 |
$610 |
|||||
|
2022 |
230,500 |
202,381 |
22,261 |
0 |
22,261 |
123.41 |
$2,747 |
$382 |
|||||
|
2021 |
200,000 |
192,744 |
21,201 |
0 |
21,201 |
122.23 |
$2,592 |
$98 |
|||||
| Property Account Status/Adjustments/Exemptions | ||
|---|---|---|
| Account # | Exemption Description | Amount |
|
R146181880 |
5% Capped Account |
0 |
| Property Deed Transaction History (Recorded in the County Clerk's Office) | |||||||
|---|---|---|---|---|---|---|---|
| Date | Type | Book | Page | Price | Grantor | Grantee | |
|
10/26/2007 |
|
Deeds |
$155,000 |
HARRELL ALLYN L & CAROLE J TRS HARRELL ALLYN LEWIS 2000 REV |
SEGURA EDY & MAYRA P |
||
|
10/25/2000 |
|
Deeds |
$0 |
HARRELL ALLYN L & CAROLE J |
HARRELL ALLYN L & CAROLE J TRS HARRELL ALLYN LEWIS 2000 REV |
||
|
10/13/1988 |
|
Historical |
$89,900 |
FEENY CURTIS F & CHRISTINA A |
HARRELL ALLYN L & CAROLE J |
||
|
10/1/1983 |
|
Historical |
$0 |
|
FEENY CURTIS F & CHRISTINA A |
||
| Last Mailed Notice of Value (N.O.V.) Information/History | ||||||||
|---|---|---|---|---|---|---|---|---|
| Year | Date | Market Value | Taxable Market Value | Gross Assessed | Exemption | Net Assessed | ||
|
2026 |
02/23/2026 |
264,000 |
245,995 |
27,058 |
0 |
27,058 |
||
|
2025 |
02/14/2025 |
270,000 |
234,281 |
25,770 |
0 |
25,770 |
||
|
2024 |
02/13/2024 |
271,000 |
223,125 |
24,543 |
0 |
24,543 |
||
|
2023 |
02/14/2023 |
258,000 |
212,500 |
23,374 |
0 |
23,374 |
||
|
2022 |
03/15/2022 |
230,500 |
202,381 |
22,261 |
0 |
22,261 |
||
| Property Building Permit History | |||||||||||
|---|---|---|---|---|---|---|---|---|---|---|---|
| Issued | Permit # | Provided by | Bldg # | Description | Est Construction Cost | Status | |||||
| No Building Permit records returned. | |||||||||||
| Click button on building number to access detailed information: | ||||||
|---|---|---|---|---|---|---|
| Bldg # | Vacant/Improved Land | Bldg Description | Year Built | SqFt | # Stories | |
|
1 |
Improved |
2 Story |
1965 |
2,476 |
2 Stories |
|