|
|
|
| Larry Stein Oklahoma County Assessor (405) 713-1200 - Public Access System |
|
|
|
|
|
|
| Real Property Display - Screen Produced 4/29/2026 5:43:18 AM | ||||
|---|---|---|---|---|
| Account: R146181910 | Type: Residential | Location: |
4701 NW 29TH ST |
|
| Building Name/Occupant: |
|
OKLAHOMA CITY |
||
| Owner Name 1: | MIRANDA YVONNY |
Parcel PIN#: |
2886-14-618-1910 |
|
| Owner Name 2: | CRUZ XAVIER E | 1/4 section #: |
2886 |
|
| Owner Name 3: | Parent Acct: |
|
||
| Billing Address: | 4701 NW 29TH ST | Tax District: |
|
|
| City, State, Zip | OKLAHOMA CITY, OK 73127-1936 | School System: |
Putnam City #1 |
|
|
Country: (If noted) |
Land Size: |
0.2650 Acres |
||
|
Land Value: 48,481 |
|
|||
|
Sect 22-T12N-R4W Qtr SE |
WINDSOR HILLS 6TH
Block
032
Lot
020
|
|||
| Full Legal Description: WINDSOR HILLS 6TH 032 020 |
| Value History (*The County Treasurer 405-713-1300 posts & collects actual tax amounts. Contact information HERE) | |||||||||||||
|---|---|---|---|---|---|---|---|---|---|---|---|---|---|
| Year | Market Value | Taxable Mkt Value | Gross Assessed | Exemption | Net Assessed | Millage | Est. Tax | Tax Savings | |||||
|
2026 |
235,000 |
186,211 |
20,482 |
1,000 |
19,482 |
123.17 |
$2,400 |
$784 |
|||||
|
2025 |
242,000 |
180,788 |
19,886 |
1,000 |
18,886 |
123.17 |
$2,326 |
$953 |
|||||
|
2024 |
242,000 |
175,523 |
19,307 |
1,000 |
18,307 |
122.30 |
$2,239 |
$1,017 |
|||||
| Property Account Status/Adjustments/Exemptions | ||
|---|---|---|
| Account # | Exemption Description | Amount |
|
R146181910 |
3% Cap Homestead |
0 |
|
R146181910 |
Homestead |
1,000 |
| Property Deed Transaction History (Recorded in the County Clerk's Office) | ||||||||||
|---|---|---|---|---|---|---|---|---|---|---|
| Date | Type | Book | Page | Price | Grantor | Grantee | ||||
|
5/13/2015 |
|
Deeds |
$135,000 |
REID JOHN R |
MIRANDA YVONNY CRUZ XAVIER E |
|||||
|
5/13/2015 |
|
Deeds |
$0 |
MIRANDA YVONNY CRUZ XAVIER E |
MIRANDA YVONNY |
|||||
|
4/4/2003 |
|
Deeds |
$87,000 |
MINNS VIRGINIA A |
REID JOHN R |
|||||
| Last Mailed Notice of Value (N.O.V.) Information/History | ||||||||
|---|---|---|---|---|---|---|---|---|
| Year | Date | Market Value | Taxable Market Value | Gross Assessed | Exemption | Net Assessed | ||
|
2026 |
02/23/2026 |
235,000 |
186,211 |
20,482 |
1,000 |
19,482 |
||
|
2025 |
02/14/2025 |
242,000 |
180,788 |
19,886 |
1,000 |
18,886 |
||
|
2024 |
02/13/2024 |
242,000 |
175,523 |
19,307 |
1,000 |
18,307 |
||
| Property Building Permit History | |||||||||||
|---|---|---|---|---|---|---|---|---|---|---|---|
| Issued | Permit # | Provided by | Bldg # | Description | Est Construction Cost | Status | |||||
| No Building Permit records returned. | |||||||||||
| Click button below to access detailed information and additional property photos: | ||||||
|---|---|---|---|---|---|---|
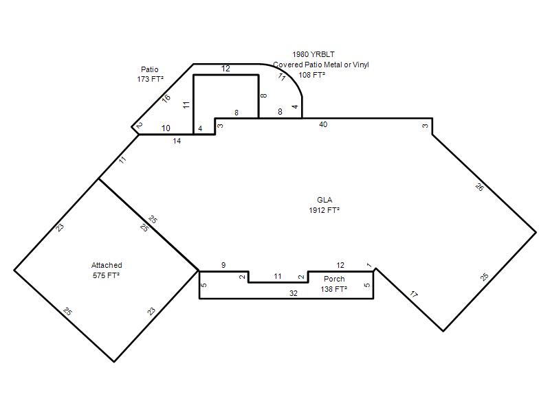
| Bldg # | Vacant/Improved Land | Bldg Description | Year Built | SqFt | # Stories | |
|
1 |
Improved |
Ranch 1 Story |
1964 |
1,912 |
1 Stories |
|