|
|
|
| Larry Stein Oklahoma County Assessor (405) 713-1200 - Public Access System |
|
|
|
|
|
|
| Real Property Display - Screen Produced 4/29/2026 5:45:35 AM | ||||
|---|---|---|---|---|
| Account: R146181950 | Type: Residential | Location: |
4512 NW 30TH ST |
|
| Building Name/Occupant: |
|
OKLAHOMA CITY |
||
| Owner Name 1: | RUIZ EDGAR FAUSTINO BONILLA |
Parcel PIN#: |
2886-14-618-1950 |
|
| Owner Name 2: | DE LEON ELSA NOVELIA DE LEON | 1/4 section #: |
2886 |
|
| Owner Name 3: | Parent Acct: |
|
||
| Billing Address: | 4512 NW 30TH ST | Tax District: |
|
|
| City, State, Zip | OKLAHOMA CITY, OK 73122-1403 | School System: |
Putnam City #1 |
|
|
Country: (If noted) |
Land Size: |
0.2663 Acres |
||
|
Land Value: 48,720 |
|
|||
|
Sect 22-T12N-R4W Qtr SE |
WINDSOR HILLS 6TH
Block
033
Lot
004
|
|||
| Full Legal Description: WINDSOR HILLS 6TH 033 004 |
| Value History (*The County Treasurer 405-713-1300 posts & collects actual tax amounts. Contact information HERE) | |||||||||||||
|---|---|---|---|---|---|---|---|---|---|---|---|---|---|
| Year | Market Value | Taxable Mkt Value | Gross Assessed | Exemption | Net Assessed | Millage | Est. Tax | Tax Savings | |||||
|
2026 |
217,500 |
205,032 |
22,552 |
0 |
22,552 |
123.17 |
$2,778 |
$169 |
|||||
|
2025 |
224,500 |
195,269 |
21,478 |
0 |
21,478 |
123.17 |
$2,646 |
$396 |
|||||
|
2024 |
225,500 |
185,971 |
20,456 |
0 |
20,456 |
122.30 |
$2,502 |
$532 |
|||||
| Property Account Status/Adjustments/Exemptions | ||
|---|---|---|
| Account # | Exemption Description | Amount |
|
R146181950 |
5% Capped Account |
0 |
| Property Deed Transaction History (Recorded in the County Clerk's Office) | ||||||||||
|---|---|---|---|---|---|---|---|---|---|---|
| Date | Type | Book | Page | Price | Grantor | Grantee | ||||
|
10/23/2024 |
|
Hmstd Off & |
$0 |
BONILLA RUIZ EDGAR F |
RUIZ EDGAR FAUSTINO BONILLA |
|||||
|
2/1/2018 |
|
Deeds |
$107,000 |
4512 NW 30TH LLC |
BONILLA RUIZ EDGAR F |
|||||
|
2/11/2016 |
|
Deeds |
$140,000 |
DODSON RICHARD C TRS DODSON RICHARD C LIVING TRUST |
4512 NW 30TH LLC |
|||||
| Last Mailed Notice of Value (N.O.V.) Information/History | ||||||||
|---|---|---|---|---|---|---|---|---|
| Year | Date | Market Value | Taxable Market Value | Gross Assessed | Exemption | Net Assessed | ||
|
2026 |
02/23/2026 |
217,500 |
205,032 |
22,552 |
0 |
22,552 |
||
|
2025 |
02/14/2025 |
224,500 |
195,269 |
21,478 |
0 |
21,478 |
||
|
2024 |
02/13/2024 |
225,500 |
185,971 |
20,456 |
0 |
20,456 |
||
| Property Building Permit History | |||||||||||
|---|---|---|---|---|---|---|---|---|---|---|---|
| Issued | Permit # | Provided by | Bldg # | Description | Est Construction Cost | Status | |||||
| No Building Permit records returned. | |||||||||||
| Click button below to access detailed information and additional property photos: | ||||||
|---|---|---|---|---|---|---|
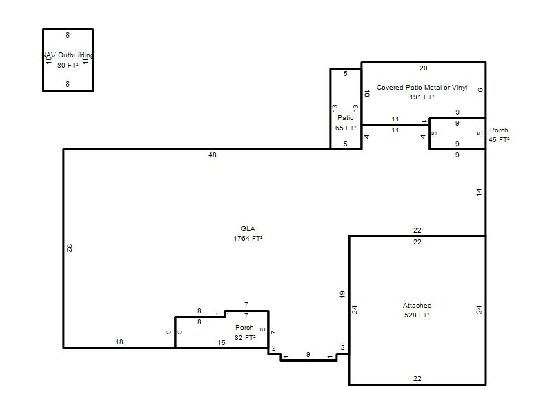
| Bldg # | Vacant/Improved Land | Bldg Description | Year Built | SqFt | # Stories | |
|
1 |
Improved |
Ranch 1 Story |
1964 |
1,764 |
1 Stories |
|