|
|
|
| Larry Stein Oklahoma County Assessor (405) 713-1200 - Public Access System |
|
|
|
|
|
|
| Real Property Display - Screen Produced 4/29/2026 5:42:16 AM | ||||
|---|---|---|---|---|
| Account: R146182110 | Type: Residential | Location: |
4613 NW 29TH ST |
|
| Building Name/Occupant: |
|
OKLAHOMA CITY |
||
| Owner Name 1: | CONNEL TIMOTHY R |
Parcel PIN#: |
2886-14-618-2110 |
|
| Owner Name 2: | 1/4 section #: |
2886 |
||
| Owner Name 3: | Parent Acct: |
|
||
| Billing Address: | 4613 NW 29TH ST | Tax District: |
|
|
| City, State, Zip | OKLAHOMA CITY, OK 73127-1934 | School System: |
Putnam City #1 |
|
|
Country: (If noted) |
Land Size: |
0.2663 Acres |
||
|
Land Value: 48,720 |
|
|||
|
Sect 22-T12N-R4W Qtr SE |
WINDSOR HILLS 6TH
Block
033
Lot
020
|
|||
| Full Legal Description: WINDSOR HILLS 6TH 033 020 |
| Value History (*The County Treasurer 405-713-1300 posts & collects actual tax amounts. Contact information HERE) | |||||||||||||
|---|---|---|---|---|---|---|---|---|---|---|---|---|---|
| Year | Market Value | Taxable Mkt Value | Gross Assessed | Exemption | Net Assessed | Millage | Est. Tax | Tax Savings | |||||
|
2026 |
272,500 |
251,903 |
27,708 |
0 |
27,708 |
123.17 |
$3,413 |
$279 |
|||||
|
2025 |
278,500 |
239,908 |
26,389 |
0 |
26,389 |
123.17 |
$3,250 |
$523 |
|||||
|
2024 |
278,500 |
228,484 |
25,132 |
0 |
25,132 |
122.30 |
$3,074 |
$673 |
|||||
| Property Account Status/Adjustments/Exemptions | ||
|---|---|---|
| Account # | Exemption Description | Amount |
|
R146182110 |
5% Capped Account |
0 |
| Property Deed Transaction History (Recorded in the County Clerk's Office) | ||||||||||
|---|---|---|---|---|---|---|---|---|---|---|
| Date | Type | Book | Page | Price | Grantor | Grantee | ||||
|
6/19/2019 |
|
Hmstd Off & |
$0 |
JONES BETH C |
CONNEL TIMOTHY R |
|||||
|
8/24/2012 |
|
Deeds |
$155,000 |
GROSCHICK PAUL E & HELEN V |
JONES BETH C |
|||||
|
8/30/2005 |
|
Deeds |
$155,000 |
FISHEL ROLAND R & JOYCE ANN |
GROSCHICK PAUL E & HELEN V |
|||||
| Last Mailed Notice of Value (N.O.V.) Information/History | ||||||||
|---|---|---|---|---|---|---|---|---|
| Year | Date | Market Value | Taxable Market Value | Gross Assessed | Exemption | Net Assessed | ||
|
2026 |
02/23/2026 |
272,500 |
251,903 |
27,708 |
0 |
27,708 |
||
|
2025 |
02/14/2025 |
278,500 |
239,908 |
26,389 |
0 |
26,389 |
||
|
2024 |
02/13/2024 |
278,500 |
228,484 |
25,132 |
0 |
25,132 |
||
| Property Building Permit History | |||||||||||
|---|---|---|---|---|---|---|---|---|---|---|---|
| Issued | Permit # | Provided by | Bldg # | Description | Est Construction Cost | Status | |||||
| No Building Permit records returned. | |||||||||||
| Click button below to access detailed information and additional property photos: | ||||||
|---|---|---|---|---|---|---|
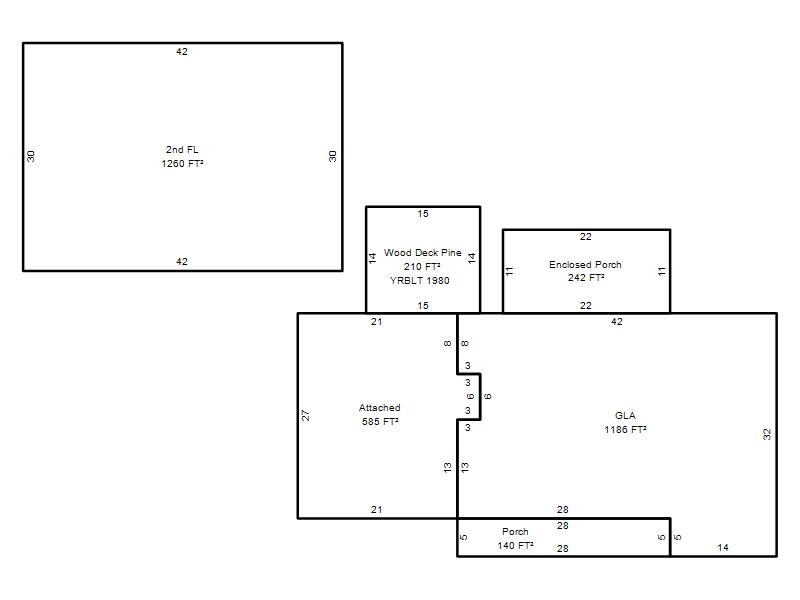
| Bldg # | Vacant/Improved Land | Bldg Description | Year Built | SqFt | # Stories | |
|
1 |
Improved |
2 Story |
1964 |
2,446 |
2 Stories |
|