|
|
|
| Larry Stein Oklahoma County Assessor (405) 713-1200 - Public Access System |
|
|
|
|
|
|
| Real Property Display - Screen Produced 4/29/2026 5:42:16 AM | ||||
|---|---|---|---|---|
| Account: R146182170 | Type: Residential | Location: |
4517 NW 29TH ST |
|
| Building Name/Occupant: |
|
OKLAHOMA CITY |
||
| Owner Name 1: | LEWIS BETHANY L |
Parcel PIN#: |
2886-14-618-2170 |
|
| Owner Name 2: | 1/4 section #: |
2886 |
||
| Owner Name 3: | Parent Acct: |
|
||
| Billing Address: | 4517 NW 29TH ST | Tax District: |
|
|
| City, State, Zip | OKLAHOMA CITY, OK 73127 | School System: |
Putnam City #1 |
|
|
Country: (If noted) |
Land Size: |
0.2663 Acres |
||
|
Land Value: 48,720 |
|
|||
|
Sect 22-T12N-R4W Qtr SE |
WINDSOR HILLS 6TH
Block
033
Lot
026
|
|||
| Full Legal Description: WINDSOR HILLS 6TH 033 026 |
| Value History (*The County Treasurer 405-713-1300 posts & collects actual tax amounts. Contact information HERE) | |||||||||||||
|---|---|---|---|---|---|---|---|---|---|---|---|---|---|
| Year | Market Value | Taxable Mkt Value | Gross Assessed | Exemption | Net Assessed | Millage | Est. Tax | Tax Savings | |||||
|
2026 |
256,000 |
256,000 |
28,160 |
0 |
28,160 |
123.17 |
$3,468 |
$0 |
|||||
|
2025 |
263,500 |
256,992 |
28,269 |
0 |
28,269 |
123.17 |
$3,482 |
$88 |
|||||
|
2024 |
262,500 |
244,755 |
26,923 |
0 |
26,923 |
122.30 |
$3,293 |
$239 |
|||||
| Property Account Status/Adjustments/Exemptions | ||
|---|---|---|
| Account # | Exemption Description | Amount |
|
R146182170 |
5% Capped Account |
0 |
| Property Deed Transaction History (Recorded in the County Clerk's Office) | ||||||||||
|---|---|---|---|---|---|---|---|---|---|---|
| Date | Type | Book | Page | Price | Grantor | Grantee | ||||
|
4/28/2021 |
|
Deeds |
$220,000 |
ANDERSON REBECCA F |
LEWIS BETHANY L |
|||||
|
11/12/2013 |
|
Hmstd Off & |
$0 |
ABAUNZA HERNANDO |
ANDERSON REBECCA F |
|||||
|
10/10/2013 |
|
Deeds |
$120,500 |
ABAUNZA HERNANDO |
ABAUNZA HERNANDO |
|||||
| Last Mailed Notice of Value (N.O.V.) Information/History | ||||||||
|---|---|---|---|---|---|---|---|---|
| Year | Date | Market Value | Taxable Market Value | Gross Assessed | Exemption | Net Assessed | ||
|
2025 |
02/14/2025 |
263,500 |
256,992 |
28,269 |
0 |
28,269 |
||
|
2024 |
02/13/2024 |
262,500 |
244,755 |
26,923 |
0 |
26,923 |
||
|
2023 |
02/14/2023 |
251,000 |
233,100 |
25,641 |
0 |
25,641 |
||
| Property Building Permit History | |||||||||||
|---|---|---|---|---|---|---|---|---|---|---|---|
| Issued | Permit # | Provided by | Bldg # | Description | Est Construction Cost | Status | |||||
| No Building Permit records returned. | |||||||||||
| Click button below to access detailed information and additional property photos: | ||||||
|---|---|---|---|---|---|---|
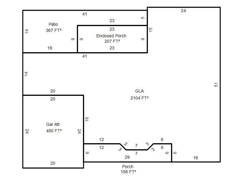
| Bldg # | Vacant/Improved Land | Bldg Description | Year Built | SqFt | # Stories | |
|
1 |
Improved |
Ranch 1 Story |
1966 |
2,104 |
1 Stories |
|