|
|
|
| Larry Stein Oklahoma County Assessor (405) 713-1200 - Public Access System |
|
|
|
|
|
|
| Real Property Display - Screen Produced 2/28/2026 3:43:39 AM | ||||
|---|---|---|---|---|
| Account: R146182200 | Type: Residential | Location: |
4505 NW 29TH ST |
|
| Building Name/Occupant: |
|
OKLAHOMA CITY |
||
| Owner Name 1: | IZA INVESTMENTS LLC |
Parcel PIN#: |
2886-14-618-2200 |
|
| Owner Name 2: | 1/4 section #: |
2886 |
||
| Owner Name 3: | Parent Acct: |
|
||
| Billing Address: | 4505 NW 29TH ST | Tax District: |
|
|
| City, State, Zip | OKLAHOMA CITY, OK 73127-1932 | School System: |
Putnam City #1 |
|
|
Country: (If noted) |
Land Size: |
0.2663 Acres |
||
|
Land Value: 48,720 |
|
|||
|
Sect 22-T12N-R4W Qtr SE |
WINDSOR HILLS 6TH
Block
033
Lot
029
|
|||
| Full Legal Description: WINDSOR HILLS 6TH 033 029 |
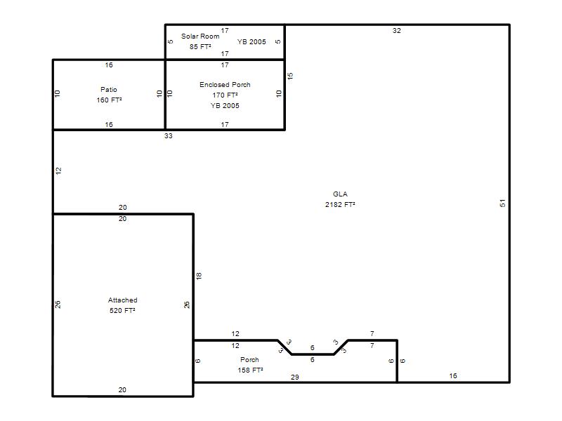
| Photo & Sketch (if available) | Comp Sales (ordered by relevancy) |
|
||||||||||||||||||
|
||||||||||||||||||||
| Value History (*The County Treasurer 405-713-1300 posts & collects actual tax amounts. Contact information HERE) | |||||||||||||
|---|---|---|---|---|---|---|---|---|---|---|---|---|---|
| Year | Market Value | Taxable Mkt Value | Gross Assessed | Exemption | Net Assessed | Millage | Est. Tax | Tax Savings | |||||
|
2025 |
305,000 |
261,718 |
28,788 |
0 |
28,788 |
123.17 |
$3,546 |
$586 |
|||||
|
2024 |
305,500 |
249,256 |
27,417 |
0 |
27,417 |
122.30 |
$3,353 |
$757 |
|||||
|
2023 |
293,000 |
237,387 |
26,112 |
0 |
26,112 |
121.91 |
$3,183 |
$746 |
|||||
|
2022 |
259,000 |
226,083 |
24,868 |
0 |
24,868 |
123.41 |
$3,069 |
$447 |
|||||
|
2021 |
223,000 |
215,318 |
23,684 |
0 |
23,684 |
122.23 |
$2,895 |
$103 |
|||||
| Property Account Status/Adjustments/Exemptions | ||
|---|---|---|
| Account # | Exemption Description | Amount |
|
R146182200 |
5% Capped Account |
0 |
| Property Deed Transaction History (Recorded in the County Clerk's Office) | |||||||
|---|---|---|---|---|---|---|---|
| Date | Type | Book | Page | Price | Grantor | Grantee | |
|
10/29/2025 |
|
Hmstd Off & |
$0 |
ANSAR IFTIKHAR ETAL |
IZA INVESTMENTS LLC |
||
|
4/11/2018 |
|
Hmstd Off & |
$0 |
CHOUDHRY ANSAR M |
ANSAR IFTIKHAR ETAL |
||
|
7/24/2014 |
|
Deeds |
$161,000 |
SCOTT PAUL E & JEAN E TRS SCOTT PAUL E & JEAN E 2003 REV TRU |
CHOUDHRY ANSAR M |
||
|
6/4/2003 |
|
Deeds |
$0 |
SCOTT PAUL E & JEAN E |
SCOTT PAUL E & JEAN E TRS SCOTT PAUL E & JEAN E 2003 REV TRU |
||
|
11/11/1911 |
|
Historical |
$0 |
|
SCOTT PAUL E & JEAN E |
||
| Last Mailed Notice of Value (N.O.V.) Information/History | ||||||||
|---|---|---|---|---|---|---|---|---|
| Year | Date | Market Value | Taxable Market Value | Gross Assessed | Exemption | Net Assessed | ||
|
2026 |
02/23/2026 |
299,000 |
274,803 |
30,227 |
0 |
30,227 |
||
|
2025 |
02/14/2025 |
305,000 |
261,718 |
28,788 |
0 |
28,788 |
||
|
2024 |
02/13/2024 |
305,500 |
249,256 |
27,417 |
0 |
27,417 |
||
|
2023 |
02/14/2023 |
293,000 |
237,387 |
26,112 |
0 |
26,112 |
||
|
2022 |
03/15/2022 |
259,000 |
226,083 |
24,868 |
0 |
24,868 |
||
| Property Building Permit History | |||||||||||
|---|---|---|---|---|---|---|---|---|---|---|---|
| Issued | Permit # | Provided by | Bldg # | Description | Est Construction Cost | Status | |||||
| No Building Permit records returned. | |||||||||||
| Click button on building number to access detailed information: | ||||||
|---|---|---|---|---|---|---|
| Bldg # | Vacant/Improved Land | Bldg Description | Year Built | SqFt | # Stories | |
|
1 |
Improved |
Ranch 1 Story |
1964 |
2,182 |
1 Stories |
|