Larry Stein Oklahoma County Assessor (405) 713-1200 - Public Access System
Home Contact Us Guest Book Map Search New Search
Real Property Display - Screen Produced   4/29/2026 9:49:30 AM 
Account: R146371550  Type: Residential

  

Location:

2809 N HARVARD AVE

Building Name/Occupant:

 

OKLAHOMA CITY

Owner Name 1:  VU LAN THUY NGUYEN

Parcel PIN#:

2886-14-637-1550

Owner Name 2:    1/4 section #:

2886

Owner Name 3:    Parent Acct:

 

Billing Address:  2809 N HARVARD AVE Tax District:

City, State, Zip  OKLAHOMA CITY, OK  73127-1943 School System:

Putnam City #1

Country: (If noted)

  

Land Size:

0.2342  Acres

Personal Property

Land Value: 45,900 

Treasurer:

Sect 22-T12N-R4W Qtr SE

 WINDSOR HILLS 7TH   Block 037  Lot 020   Subdivision Sales
 Full Legal Description:  WINDSOR HILLS 7TH 037 020

NOTE:  The following sales may or may not be used to determine Fair Market Value

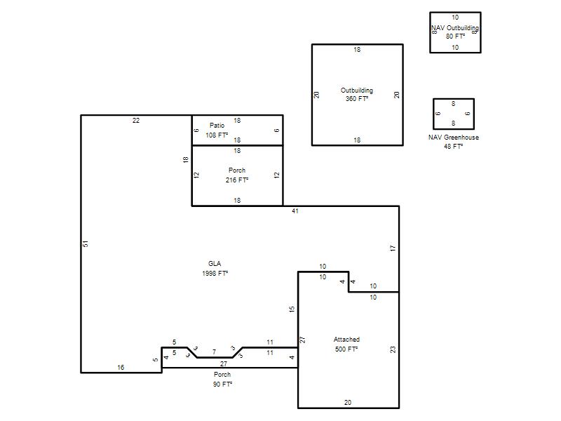
Photo & Sketch (if available) Sales  Sales Report

 2704 N HARVARD AVE OKLAHOMA CITY, OK

11/14/2025

 $240,000 

 3113 TUDOR RD OKLAHOMA CITY, OK

08/20/2025

 $255,000 

 3200 ASTORIA BLVD OKLAHOMA CITY, OK

04/25/2025

 $245,500 

 4604 NW 32ND PL OKLAHOMA CITY, OK

10/03/2025

 $212,000 

 2901 N WINDSOR BLVD OKLAHOMA CITY, OK

06/24/2024

 $230,000 

 3508 N ANN ARBOR PL OKLAHOMA CITY, OK

11/25/2025

 $230,000 

Value History  (*The County Treasurer 405-713-1300 posts & collects actual tax amounts.  Contact information  HERE)
Year Market Value Taxable Mkt Value Gross Assessed Exemption Net Assessed Millage Est. Tax Tax Savings

2026

246,500 

186,845 

20,552 

1,000 

19,552 

123.17 

$2,408 

$931 

2025

252,500 

181,403 

19,954 

1,000 

18,954 

123.17 

$2,335 

$1,086 

2024

252,500 

176,120 

19,373 

1,000 

18,373 

122.30 

$2,247 

$1,150 

[1/9]
Property Account Status/Adjustments/Exemptions
Account # Exemption Description Amount

R146371550

Homestead

1,000 

R146371550

3% Cap Homestead

Property Deed Transaction History   (Recorded in the County Clerk's Office)
Date Type Book Page Price Grantor Grantee

10/24/2025

Deeds

16269

1795

 $0 

VU LICH THANH & LAN THUY NGUYEN

VU LAN THUY NGUYEN

5/28/2024

Deeds

15763

1303

 $0 

VU THANH LICH

VU LICH THANH & LAN THUY NGUYEN

3/25/1991

Historical

6151

686

 $0 

VU LICH THANH & OANH THI

VU OANH THI

[1/2]
Last Mailed Notice of Value (N.O.V.) Information/History
Year Date Market Value Taxable Market Value Gross Assessed Exemption Net Assessed

2026

02/23/2026

246,500 

186,845 

20,552 

1,000 

19,552 

2025

02/14/2025

252,500 

181,403 

19,954 

1,000 

18,954 

2024

02/13/2024

252,500 

176,120 

19,373 

1,000 

18,373 

[1/4]
Property Building Permit History
Issued Permit # Provided by Bldg # Description Est Construction Cost Status
No Building Permit records returned.
Click button below to access detailed information and additional property photos:
  Bldg # Vacant/Improved Land Bldg Description Year Built SqFt # Stories

Click

1

Improved

Ranch 1 Story

1966

1,998 

1 Stories