|
|
|
| Larry Stein Oklahoma County Assessor (405) 713-1200 - Public Access System |
|
|
|
|
|
|
| Real Property Display - Screen Produced 2/28/2026 3:40:39 AM | ||||
|---|---|---|---|---|
| Account: R146371590 | Type: Residential | Location: |
2909 N HARVARD AVE |
|
| Building Name/Occupant: |
|
OKLAHOMA CITY |
||
| Owner Name 1: | MCKEAN BRETT A & LISA GARZA |
Parcel PIN#: |
2886-14-637-1590 |
|
| Owner Name 2: | 1/4 section #: |
2886 |
||
| Owner Name 3: | Parent Acct: |
|
||
| Billing Address: | 2909 N HARVARD AVE | Tax District: |
|
|
| City, State, Zip | OKLAHOMA CITY, OK 73127-1945 | School System: |
Putnam City #1 |
|
|
Country: (If noted) |
Land Size: |
0.2369 Acres |
||
|
Land Value: 46,440 |
|
|||
|
Sect 22-T12N-R4W Qtr SE |
WINDSOR HILLS 7TH
Block
037
Lot
024
|
|||
| Full Legal Description: WINDSOR HILLS 7TH 037 024 |
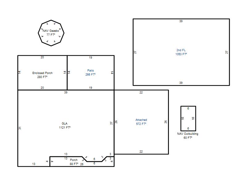
| Photo & Sketch (if available) | Comp Sales (ordered by relevancy) |
|
||||||||||||||||||
|
||||||||||||||||||||
| Value History (*The County Treasurer 405-713-1300 posts & collects actual tax amounts. Contact information HERE) | |||||||||||||
|---|---|---|---|---|---|---|---|---|---|---|---|---|---|
| Year | Market Value | Taxable Mkt Value | Gross Assessed | Exemption | Net Assessed | Millage | Est. Tax | Tax Savings | |||||
|
2025 |
306,000 |
223,834 |
24,621 |
1,000 |
23,621 |
123.17 |
$2,909 |
$1,236 |
|||||
|
2024 |
304,500 |
217,315 |
23,904 |
1,000 |
22,904 |
122.30 |
$2,801 |
$1,295 |
|||||
|
2023 |
288,500 |
210,986 |
23,207 |
1,000 |
22,207 |
121.91 |
$2,707 |
$1,161 |
|||||
|
2022 |
258,000 |
204,841 |
22,532 |
1,000 |
21,532 |
123.41 |
$2,657 |
$845 |
|||||
|
2021 |
221,000 |
198,875 |
21,876 |
1,000 |
20,876 |
122.23 |
$2,552 |
$420 |
|||||
| Property Account Status/Adjustments/Exemptions | ||
|---|---|---|
| Account # | Exemption Description | Amount |
|
R146371590 |
3% Cap Homestead |
0 |
|
R146371590 |
Homestead |
1,000 |
| Property Deed Transaction History (Recorded in the County Clerk's Office) | |||||||
|---|---|---|---|---|---|---|---|
| Date | Type | Book | Page | Price | Grantor | Grantee | |
|
7/30/2014 |
|
Deeds |
$168,000 |
BOURLAND MICHAEL L & MARTHA S |
MCKEAN BRETT A & LISA GARZA |
||
|
11/1/1986 |
|
Historical |
$99,500 |
MILNER RICHARD W & SALLIELLEN |
BOURLAND MICHAEL L & MARTHA S |
||
|
4/1/1983 |
|
Historical |
$0 |
|
MILNER RICHARD W & SALLIELLEN |
||
| Last Mailed Notice of Value (N.O.V.) Information/History | ||||||||
|---|---|---|---|---|---|---|---|---|
| Year | Date | Market Value | Taxable Market Value | Gross Assessed | Exemption | Net Assessed | ||
|
2026 |
02/23/2026 |
303,000 |
230,549 |
25,359 |
1,000 |
24,359 |
||
|
2025 |
02/14/2025 |
306,000 |
223,834 |
24,621 |
1,000 |
23,621 |
||
|
2024 |
02/13/2024 |
304,500 |
217,315 |
23,904 |
1,000 |
22,904 |
||
|
2023 |
02/14/2023 |
288,500 |
210,986 |
23,207 |
1,000 |
22,207 |
||
|
2022 |
03/15/2022 |
258,000 |
204,841 |
22,532 |
1,000 |
21,532 |
||
| Property Building Permit History | ||||||
|---|---|---|---|---|---|---|
| Issued | Permit # | Provided by | Bldg # | Description | Est Construction Cost | Status |
|
12/3/2004 |
10298262 |
OKLAHOMA CITY |
1 |
Remodeled |
58,000 |
Inactive |
| Click button on building number to access detailed information: | ||||||
|---|---|---|---|---|---|---|
| Bldg # | Vacant/Improved Land | Bldg Description | Year Built | SqFt | # Stories | |
|
1 |
Improved |
2 Story |
1966 |
2,174 |
2 Stories |
|