Larry Stein Oklahoma County Assessor (405) 713-1200 - Public Access System
Home Contact Us Guest Book Map Search New Search
Real Property Display - Screen Produced   4/29/2026 9:49:51 AM 
Account: R146371810  Type: Residential

  

Location:

2809 N WINDSOR PL

Building Name/Occupant:

 

OKLAHOMA CITY

Owner Name 1:  CLOUD KAREN JEAN

Parcel PIN#:

2886-14-637-1810

Owner Name 2:    1/4 section #:

2886

Owner Name 3:    Parent Acct:

 

Billing Address:  2809 N WINDSOR PL Tax District:

City, State, Zip  OKLAHOMA CITY, OK  73127-1924 School System:

Putnam City #1

Country: (If noted)

  

Land Size:

0.2287  Acres

Personal Property

Land Value: 44,820 

Treasurer:

Sect 22-T12N-R4W Qtr SE

 WINDSOR HILLS 7TH   Block 038  Lot 022   Subdivision Sales
 Full Legal Description:  WINDSOR HILLS 7TH 038 022

NOTE:  The following sales may or may not be used to determine Fair Market Value

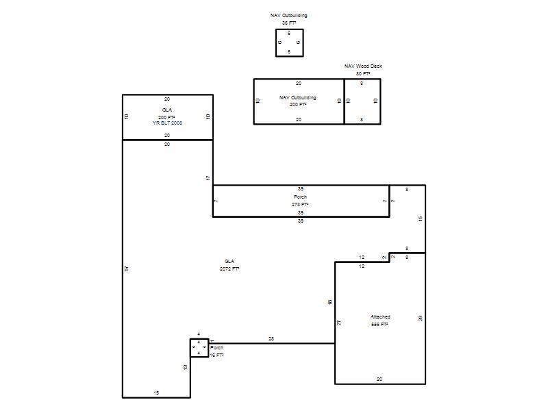
Photo & Sketch (if available) Sales  Sales Report

 2704 N HARVARD AVE OKLAHOMA CITY, OK

11/14/2025

 $240,000 

 2813 N STERLING AVE OKLAHOMA CITY, OK

04/09/2025

 $250,000 

 4608 NW 34TH ST OKLAHOMA CITY, OK

10/31/2025

 $250,000 

 3400 WINDSOR TER OKLAHOMA CITY, OK

03/03/2025

 $294,500 

 3113 TUDOR RD OKLAHOMA CITY, OK

08/20/2025

 $255,000 

 4604 NW 32ND PL OKLAHOMA CITY, OK

10/03/2025

 $212,000 

Value History  (*The County Treasurer 405-713-1300 posts & collects actual tax amounts.  Contact information  HERE)
Year Market Value Taxable Mkt Value Gross Assessed Exemption Net Assessed Millage Est. Tax Tax Savings

2026

264,000 

212,181 

23,339 

1,000 

22,339 

123.17 

$2,752 

$825 

2025

271,500 

206,001 

22,660 

1,000 

21,660 

123.17 

$2,668 

$1,011 

2024

274,000 

200,001 

21,999 

1,000 

20,999 

122.30 

$2,568 

$1,118 

[1/10]
Property Account Status/Adjustments/Exemptions
Account # Exemption Description Amount

R146371810

3% Cap Homestead

R146371810

Homestead

1,000 

Property Deed Transaction History   (Recorded in the County Clerk's Office)
Date Type Book Page Price Grantor Grantee

11/4/1988

Historical

5839

1232

 $0 

CLOUD W HOWARD & KAREN J

CLOUD KAREN JEAN

9/1/1976

Historical

4317

1645

 $0 

 

CLOUD W HOWARD & KAREN J

Last Mailed Notice of Value (N.O.V.) Information/History
Year Date Market Value Taxable Market Value Gross Assessed Exemption Net Assessed

2026

02/23/2026

264,000 

212,181 

23,339 

1,000 

22,339 

2025

02/14/2025

271,500 

206,001 

22,660 

1,000 

21,660 

2024

02/13/2024

274,000 

200,001 

21,999 

1,000 

20,999 

[1/5]
Property Building Permit History
Issued Permit # Provided by Bldg # Description Est Construction Cost Status

7/30/2007

10341584

OKLAHOMA CITY

1

Add On

60,000 

Inactive

Click button below to access detailed information and additional property photos:
  Bldg # Vacant/Improved Land Bldg Description Year Built SqFt # Stories

Click

1

Improved

Ranch 1 Story

1967

2,272 

1 Stories