Larry Stein Oklahoma County Assessor (405) 713-1200 - Public Access System
Home Contact Us Guest Book Map Search New Search
Real Property Display - Screen Produced   4/29/2026 9:43:01 AM 
Account: R146371860  Type: Residential

  

Location:

2913 TUDOR RD

Building Name/Occupant:

 

OKLAHOMA CITY

Owner Name 1:  SKODAK LEONARD J JR & MARY D TRS

Parcel PIN#:

2886-14-637-1860

Owner Name 2:  SKODAK L J JR & M D REV LIV TRUST 1/4 section #:

2886

Owner Name 3:    Parent Acct:

 

Billing Address:  2913 TUDOR RD Tax District:

City, State, Zip  OKLAHOMA CITY, OK  73127-1957 School System:

Putnam City #1

Country: (If noted)

  

Land Size:

0.2479  Acres

Personal Property

Land Value: 48,600 

Treasurer:

Sect 22-T12N-R4W Qtr SE

 WINDSOR HILLS 7TH   Block 038  Lot 027   Subdivision Sales
 Full Legal Description:  WINDSOR HILLS 7TH 038 027

NOTE:  The following sales may or may not be used to determine Fair Market Value

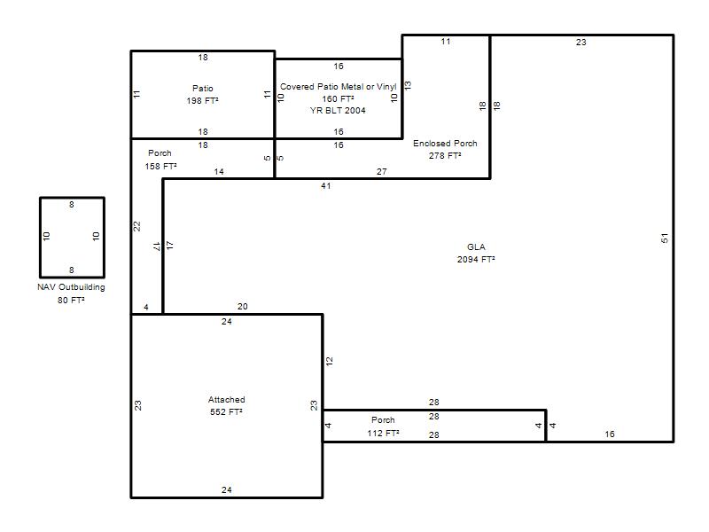
Photo & Sketch (if available) Sales  Sales Report

 3104 ASTORIA BLVD OKLAHOMA CITY, OK

10/10/2025

 $249,000 

 2908 N WINDSOR BLVD OKLAHOMA CITY, OK

10/03/2023

 $262,000 

 2704 N STERLING AVE OKLAHOMA CITY, OK

10/25/2024

 $252,500 

 4612 NW 35TH ST OKLAHOMA CITY, OK

02/21/2025

 $195,000 

 2712 N HARVARD AVE OKLAHOMA CITY, OK

04/12/2023

 $205,000 

 2704 N HARVARD AVE OKLAHOMA CITY, OK

11/14/2025

 $240,000 

Value History  (*The County Treasurer 405-713-1300 posts & collects actual tax amounts.  Contact information  HERE)
Year Market Value Taxable Mkt Value Gross Assessed Exemption Net Assessed Millage Est. Tax Tax Savings

2026

263,000 

209,647 

23,060 

1,000 

22,060 

123.17 

$2,717 

$846 

2025

270,500 

203,541 

22,389 

1,000 

21,389 

123.17 

$2,635 

$1,030 

2024

270,000 

197,613 

21,737 

1,000 

20,737 

122.30 

$2,536 

$1,096 

[1/10]
Property Account Status/Adjustments/Exemptions
Account # Exemption Description Amount

R146371860

3% Cap Homestead

R146371860

Homestead

1,000 

Property Deed Transaction History   (Recorded in the County Clerk's Office)
Date Type Book Page Price Grantor Grantee

3/16/2012

Deeds

11874

718

 $0 

PENDLEY MARY D

SKODAK LEONARD J JR & MARY D TRS

2/25/2002

Deeds

8364

811

 $155,000 

SKINNER BERNICE SKINNER JACQUELYN

PENDLEY MARY D

3/2/2001

Deeds

8029

710

 $158,000 

CAPSHAW FRED CAPSHAW JUDY

SKINNER BERNICE SKINNER JACQUELYN

[1/3]
Last Mailed Notice of Value (N.O.V.) Information/History
Year Date Market Value Taxable Market Value Gross Assessed Exemption Net Assessed

2026

02/23/2026

263,000 

209,647 

23,060 

1,000 

22,060 

2025

02/14/2025

270,500 

203,541 

22,389 

1,000 

21,389 

2024

02/13/2024

270,000 

197,613 

21,737 

1,000 

20,737 

[1/5]
Property Building Permit History
Issued Permit # Provided by Bldg # Description Est Construction Cost Status
No Building Permit records returned.
Click button below to access detailed information and additional property photos:
  Bldg # Vacant/Improved Land Bldg Description Year Built SqFt # Stories

Click

1

Improved

Ranch 1 Story

1967

2,094 

1 Stories