|
|
|
| Larry Stein Oklahoma County Assessor (405) 713-1200 - Public Access System |
|
|
|
|
|
|
| Real Property Display - Screen Produced 2/28/2026 3:42:16 AM | ||||
|---|---|---|---|---|
| Account: R146372410 | Type: Residential | Location: |
2800 N WINDSOR TER |
|
| Building Name/Occupant: |
|
OKLAHOMA CITY |
||
| Owner Name 1: | MORGAN RYAN & KATRINA |
Parcel PIN#: |
2886-14-637-2410 |
|
| Owner Name 2: | 1/4 section #: |
2886 |
||
| Owner Name 3: | Parent Acct: |
|
||
| Billing Address: | 2800 N WINDSOR TER | Tax District: |
|
|
| City, State, Zip | OKLAHOMA CITY, OK 73127-1931 | School System: |
Putnam City #1 |
|
|
Country: (If noted) |
Land Size: |
0.2149 Acres |
||
|
Land Value: 42,120 |
|
|||
|
Sect 22-T12N-R4W Qtr SE |
WINDSOR HILLS 7TH
Block
041
Lot
021
|
|||
| Full Legal Description: WINDSOR HILLS 7TH 041 021 |
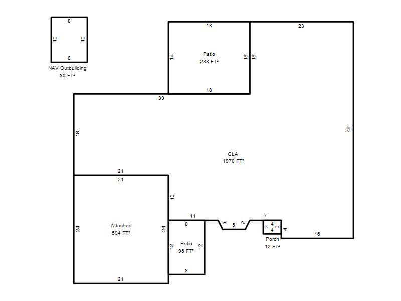
| Photo & Sketch (if available) | Comp Sales (ordered by relevancy) |
|
||||||||||||||||||
|
||||||||||||||||||||
| Value History (*The County Treasurer 405-713-1300 posts & collects actual tax amounts. Contact information HERE) | |||||||||||||
|---|---|---|---|---|---|---|---|---|---|---|---|---|---|
| Year | Market Value | Taxable Mkt Value | Gross Assessed | Exemption | Net Assessed | Millage | Est. Tax | Tax Savings | |||||
|
2025 |
242,000 |
206,137 |
22,674 |
0 |
22,674 |
123.17 |
$2,793 |
$486 |
|||||
|
2024 |
241,000 |
196,321 |
21,595 |
0 |
21,595 |
122.30 |
$2,641 |
$601 |
|||||
|
2023 |
229,500 |
186,973 |
20,566 |
0 |
20,566 |
121.91 |
$2,507 |
$570 |
|||||
|
2022 |
203,500 |
178,070 |
19,586 |
0 |
19,586 |
123.41 |
$2,417 |
$345 |
|||||
|
2021 |
176,000 |
169,591 |
18,654 |
0 |
18,654 |
122.23 |
$2,280 |
$86 |
|||||
| Property Account Status/Adjustments/Exemptions | ||
|---|---|---|
| Account # | Exemption Description | Amount |
|
R146372410 |
5% Capped Account |
0 |
| Property Deed Transaction History (Recorded in the County Clerk's Office) | ||||||||||
|---|---|---|---|---|---|---|---|---|---|---|
| Date | Type | Book | Page | Price | Grantor | Grantee | ||||
|
8/4/2015 |
|
Deeds |
$0 |
STAIR MICHAEL D & JEAN L |
STAIR JEAN L |
|||||
|
8/4/2015 |
|
Deeds |
$139,500 |
STAIR JEAN L |
MORGAN RYAN & KATRINA |
|||||
|
4/29/2014 |
|
Deeds |
$115,000 |
V MORTGAGE REO CORPORATION |
STAIR MICHAEL D & JEAN L |
|||||
|
3/18/2014 |
|
Hmstd Off & |
$0 |
BRASHER BILLY WAYNE |
V MORTGAGE REO CORPORATION |
|||||
|
5/27/2005 |
|
Deeds |
$137,000 |
ZAMAGUEY IRENE |
BRASHER BILLY WAYNE |
|||||
| Last Mailed Notice of Value (N.O.V.) Information/History | ||||||||
|---|---|---|---|---|---|---|---|---|
| Year | Date | Market Value | Taxable Market Value | Gross Assessed | Exemption | Net Assessed | ||
|
2026 |
02/23/2026 |
236,000 |
216,443 |
23,808 |
0 |
23,808 |
||
|
2025 |
02/14/2025 |
242,000 |
206,137 |
22,674 |
0 |
22,674 |
||
|
2024 |
02/13/2024 |
241,000 |
196,321 |
21,595 |
0 |
21,595 |
||
|
2023 |
02/14/2023 |
229,500 |
186,973 |
20,566 |
0 |
20,566 |
||
|
2022 |
03/15/2022 |
203,500 |
178,070 |
19,586 |
0 |
19,586 |
||
| Property Building Permit History | |||||||||||
|---|---|---|---|---|---|---|---|---|---|---|---|
| Issued | Permit # | Provided by | Bldg # | Description | Est Construction Cost | Status | |||||
| No Building Permit records returned. | |||||||||||
| Click button on building number to access detailed information: | ||||||
|---|---|---|---|---|---|---|
| Bldg # | Vacant/Improved Land | Bldg Description | Year Built | SqFt | # Stories | |
|
1 |
Improved |
Ranch 1 Story |
1967 |
1,970 |
1 Stories |
|