|
|
|
| Larry Stein Oklahoma County Assessor (405) 713-1200 - Public Access System |
|
|
|
|
|
|
| Real Property Display - Screen Produced 2/27/2026 7:33:51 PM | ||||
|---|---|---|---|---|
| Account: R146032175 | Type: Residential | Location: |
5100 NW 26TH ST |
|
| Building Name/Occupant: |
|
OKLAHOMA CITY |
||
| Owner Name 1: | LATAK JEREMY & DONNA |
Parcel PIN#: |
2887-14-603-2175 |
|
| Owner Name 2: | 1/4 section #: |
2887 |
||
| Owner Name 3: | Parent Acct: |
|
||
| Billing Address: | 5100 NW 26TH ST | Tax District: |
|
|
| City, State, Zip | OKLAHOMA CITY, OK 73127-1724 | School System: |
Putnam City #1 |
|
|
Country: (If noted) |
Land Size: |
0.3153 Acres |
||
|
Land Value: 64,559 |
|
|||
|
Sect 22-T12N-R4W Qtr SW |
WINDSOR OAKS
Block
007
Lot
000
|
|||
| Full Legal Description: WINDSOR OAKS 007 000 E20FT OF LOT 5 & ALL LOT 6 |
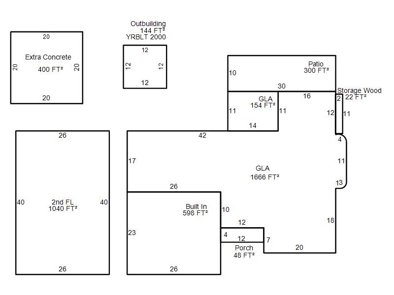
| Photo & Sketch (if available) | Comp Sales (ordered by relevancy) |
|
||||||||||||||||||
|
||||||||||||||||||||
| Value History (*The County Treasurer 405-713-1300 posts & collects actual tax amounts. Contact information HERE) | |||||||||||||
|---|---|---|---|---|---|---|---|---|---|---|---|---|---|
| Year | Market Value | Taxable Mkt Value | Gross Assessed | Exemption | Net Assessed | Millage | Est. Tax | Tax Savings | |||||
|
2025 |
384,000 |
345,529 |
38,008 |
1,000 |
37,008 |
123.17 |
$4,558 |
$644 |
|||||
|
2024 |
389,500 |
335,466 |
36,900 |
1,000 |
35,900 |
122.30 |
$4,391 |
$849 |
|||||
|
2023 |
371,500 |
325,696 |
35,826 |
1,000 |
34,826 |
121.91 |
$4,246 |
$736 |
|||||
|
2022 |
335,500 |
316,210 |
34,783 |
1,000 |
33,783 |
123.41 |
$4,169 |
$385 |
|||||
|
2021 |
307,000 |
307,000 |
33,770 |
1,000 |
32,770 |
122.23 |
$4,005 |
$122 |
|||||
| Property Account Status/Adjustments/Exemptions | ||
|---|---|---|
| Account # | Exemption Description | Amount |
|
R146032175 |
3% Cap Homestead |
0 |
|
R146032175 |
Homestead |
1,000 |
| Property Deed Transaction History (Recorded in the County Clerk's Office) | ||||||||||
|---|---|---|---|---|---|---|---|---|---|---|
| Date | Type | Book | Page | Price | Grantor | Grantee | ||||
|
11/13/2019 |
|
Deeds |
$310,000 |
HOWARD KEVIN |
LATAK JEREMY & DONNA |
|||||
|
11/13/2019 |
|
Hmstd Off & |
$0 |
HOWARD KEVIN & JAMIE D |
LATAK JEREMY & DONNA |
|||||
|
3/17/2016 |
|
Deeds |
$0 |
HOWARD KEVIN & JAMIE D |
HOWARD KEVIN |
|||||
|
6/19/2009 |
|
Deeds |
$189,000 |
BURLISON JERRY D & SHARON K |
HOWARD KEVIN MILLER JAMIE D |
|||||
|
12/29/1998 |
|
Historical |
$151,000 |
OWEN DONALD W |
BURLISON JERRY D & SHARON K |
|||||
| Last Mailed Notice of Value (N.O.V.) Information/History | ||||||||
|---|---|---|---|---|---|---|---|---|
| Year | Date | Market Value | Taxable Market Value | Gross Assessed | Exemption | Net Assessed | ||
|
2026 |
02/23/2026 |
382,500 |
355,894 |
39,148 |
1,000 |
38,148 |
||
|
2025 |
02/14/2025 |
384,000 |
345,529 |
38,008 |
1,000 |
37,008 |
||
|
2024 |
02/13/2024 |
389,500 |
335,466 |
36,900 |
1,000 |
35,900 |
||
|
2023 |
02/14/2023 |
371,500 |
325,696 |
35,826 |
1,000 |
34,826 |
||
|
2022 |
03/15/2022 |
335,500 |
316,210 |
34,783 |
1,000 |
33,783 |
||
| Property Building Permit History | |||||||||||
|---|---|---|---|---|---|---|---|---|---|---|---|
| Issued | Permit # | Provided by | Bldg # | Description | Est Construction Cost | Status | |||||
| No Building Permit records returned. | |||||||||||
| Click button on building number to access detailed information: | ||||||
|---|---|---|---|---|---|---|
| Bldg # | Vacant/Improved Land | Bldg Description | Year Built | SqFt | # Stories | |
|
1 |
Improved |
Split Level |
1962 |
2,860 |
1 Stories |
|