|
|
|
| Larry Stein Oklahoma County Assessor (405) 713-1200 - Public Access System |
|
|
|
|
|
|
| Real Property Display - Screen Produced 2/28/2026 12:43:50 AM | ||||
|---|---|---|---|---|
| Account: R146891050 | Type: Residential | Location: |
2808 N GROVE PL |
|
| Building Name/Occupant: |
|
OKLAHOMA CITY |
||
| Owner Name 1: | ALLEN JERRY DEAN |
Parcel PIN#: |
2887-14-689-1050 |
|
| Owner Name 2: | 1/4 section #: |
2887 |
||
| Owner Name 3: | Parent Acct: |
|
||
| Billing Address: | 301 W DAVIS DR | Tax District: |
|
|
| City, State, Zip | EDMOND, OK 73025-1420 | School System: |
Putnam City #1 |
|
|
Country: (If noted) |
Land Size: |
0.1596 Acres |
||
|
Land Value: 32,684 |
|
|||
|
Sect 22-T12N-R4W Qtr SW |
WINDSOR HEIGHTS
Block
001
Lot
006
|
|||
| Full Legal Description: WINDSOR HEIGHTS 001 006 |
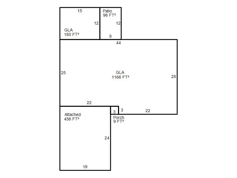
| Photo & Sketch (if available) | Comp Sales (ordered by relevancy) |
|
||||||||||||||||||
|
||||||||||||||||||||
| Value History (*The County Treasurer 405-713-1300 posts & collects actual tax amounts. Contact information HERE) | |||||||||||||
|---|---|---|---|---|---|---|---|---|---|---|---|---|---|
| Year | Market Value | Taxable Mkt Value | Gross Assessed | Exemption | Net Assessed | Millage | Est. Tax | Tax Savings | |||||
|
2025 |
194,000 |
164,000 |
18,040 |
0 |
18,040 |
123.17 |
$2,222 |
$406 |
|||||
|
2024 |
194,000 |
156,191 |
17,180 |
0 |
17,180 |
122.30 |
$2,101 |
$509 |
|||||
|
2023 |
178,000 |
148,754 |
16,362 |
0 |
16,362 |
121.91 |
$1,995 |
$392 |
|||||
|
2022 |
163,500 |
141,671 |
15,583 |
0 |
15,583 |
123.41 |
$1,923 |
$296 |
|||||
|
2021 |
138,500 |
134,925 |
14,841 |
0 |
14,841 |
122.23 |
$1,814 |
$48 |
|||||
| Property Account Status/Adjustments/Exemptions | ||
|---|---|---|
| Account # | Exemption Description | Amount |
|
R146891050 |
5% Capped Account |
0 |
| Property Deed Transaction History (Recorded in the County Clerk's Office) | ||||||||||
|---|---|---|---|---|---|---|---|---|---|---|
| Date | Type | Book | Page | Price | Grantor | Grantee | ||||
|
5/17/2016 |
|
Deeds |
$76,500 |
WELLS FARGO BANK NA |
ALLEN JERRY DEAN |
|||||
|
8/17/2015 |
|
Hmstd Off & |
$0 |
MCKIM SCOTT & SARAH |
WELLS FARGO BANK NA |
|||||
|
7/10/2012 |
|
Deeds |
$110,000 |
LEEPER MARY WEST MICHAEL |
MCKIM SCOTT & SARAH |
|||||
|
6/27/2006 |
|
Other |
$0 |
YONAH LLC |
LEEPER MARY WEST MICHAEL |
|||||
|
3/22/2006 |
|
|
$0 |
DONAT PAUL E & ANNA |
YONAH LLC |
|||||
| Last Mailed Notice of Value (N.O.V.) Information/History | ||||||||
|---|---|---|---|---|---|---|---|---|
| Year | Date | Market Value | Taxable Market Value | Gross Assessed | Exemption | Net Assessed | ||
|
2026 |
02/23/2026 |
189,000 |
172,200 |
18,942 |
0 |
18,942 |
||
|
2025 |
02/14/2025 |
194,000 |
164,000 |
18,040 |
0 |
18,040 |
||
|
2024 |
02/13/2024 |
194,000 |
156,191 |
17,180 |
0 |
17,180 |
||
|
2023 |
02/14/2023 |
178,000 |
148,754 |
16,362 |
0 |
16,362 |
||
|
2022 |
03/15/2022 |
163,500 |
141,671 |
15,583 |
0 |
15,583 |
||
| Property Building Permit History | |||||||||||
|---|---|---|---|---|---|---|---|---|---|---|---|
| Issued | Permit # | Provided by | Bldg # | Description | Est Construction Cost | Status | |||||
| No Building Permit records returned. | |||||||||||
| Click button on building number to access detailed information: | ||||||
|---|---|---|---|---|---|---|
| Bldg # | Vacant/Improved Land | Bldg Description | Year Built | SqFt | # Stories | |
|
1 |
Improved |
Ranch 1 Story |
1964 |
1,346 |
1 Stories |
|