|
|
|
| Larry Stein Oklahoma County Assessor (405) 713-1200 - Public Access System |
|
|
|
|
|
|
| Real Property Display - Screen Produced 4/2/2026 7:50:10 AM | ||||
|---|---|---|---|---|
| Account: R142601465 | Type: Residential | Location: |
5733 NW 31ST TER |
|
| Building Name/Occupant: |
|
OKLAHOMA CITY |
||
| Owner Name 1: | RODRIGUEZ LEOPOLDO |
Parcel PIN#: |
2888-14-260-1465 |
|
| Owner Name 2: | 1/4 section #: |
2888 |
||
| Owner Name 3: | Parent Acct: |
|
||
| Billing Address: | 5733 NW 31ST TER | Tax District: |
|
|
| City, State, Zip | OKLAHOMA CITY, OK 73122-1013 | School System: |
Putnam City #1 |
|
|
Country: (If noted) |
Land Size: |
0.2089 Acres |
||
|
Land Value: 34,580 |
|
|||
|
Sect 22-T12N-R4W Qtr NW |
ROBERTS ROSEWOOD MANOR
Block
002
Lot
028
|
|||
| Full Legal Description: ROBERTS ROSEWOOD MANOR 002 028 |
| Photo & Sketch (if available) | Comp Sales (ordered by relevancy) |
|
||||||||||||||||||
|
||||||||||||||||||||
| Value History (*The County Treasurer 405-713-1300 posts & collects actual tax amounts. Contact information HERE) | |||||||||||||
|---|---|---|---|---|---|---|---|---|---|---|---|---|---|
| Year | Market Value | Taxable Mkt Value | Gross Assessed | Exemption | Net Assessed | Millage | Est. Tax | Tax Savings | |||||
|
2026 |
183,000 |
144,173 |
15,858 |
1,000 |
14,858 |
123.17 |
$1,830 |
$649 |
|||||
|
2025 |
189,500 |
139,974 |
15,396 |
1,000 |
14,396 |
123.17 |
$1,773 |
$794 |
|||||
|
2024 |
189,500 |
135,898 |
14,948 |
1,000 |
13,948 |
122.30 |
$1,706 |
$843 |
|||||
|
2023 |
172,500 |
131,940 |
14,512 |
1,000 |
13,512 |
121.91 |
$1,647 |
$666 |
|||||
|
2022 |
157,500 |
128,098 |
14,089 |
1,000 |
13,089 |
123.41 |
$1,616 |
$523 |
|||||
| Property Account Status/Adjustments/Exemptions | ||
|---|---|---|
| Account # | Exemption Description | Amount |
|
R142601465 |
3% Cap Homestead |
0 |
|
R142601465 |
Homestead |
1,000 |
| Property Deed Transaction History (Recorded in the County Clerk's Office) | ||||||||||
|---|---|---|---|---|---|---|---|---|---|---|
| Date | Type | Book | Page | Price | Grantor | Grantee | ||||
|
9/11/2013 |
|
Hmstd Off & |
$0 |
MILBURN MARY E TRS MILBURN FAMILY TRUST |
MILBURN ROBERT LEE TRS MILBURN FAMILY TRUST |
|||||
|
9/11/2013 |
|
Deeds |
$119,500 |
MILBURN ROBERT LEE TRS MILBURN FAMILY TRUST |
RODRIGUEZ LEOPOLDO |
|||||
|
5/25/2010 |
|
Deeds |
$0 |
MILBURN DONALD W & MARY E |
MILBURN MARY E |
|||||
|
5/25/2010 |
|
Deeds |
$0 |
MILBURN MARY E |
MILBURN MARY E TRS MILBURN FAMILY TRUST |
|||||
|
3/16/1999 |
|
Historical |
$75,000 |
GEDDES JOSEPH H |
MILBURN DONALD W & MARY E |
|||||
| Last Mailed Notice of Value (N.O.V.) Information/History | ||||||||
|---|---|---|---|---|---|---|---|---|
| Year | Date | Market Value | Taxable Market Value | Gross Assessed | Exemption | Net Assessed | ||
|
2026 |
02/23/2026 |
183,000 |
144,173 |
15,858 |
1,000 |
14,858 |
||
|
2025 |
02/14/2025 |
189,500 |
139,974 |
15,396 |
1,000 |
14,396 |
||
|
2024 |
02/13/2024 |
189,500 |
135,898 |
14,948 |
1,000 |
13,948 |
||
|
2023 |
02/14/2023 |
172,500 |
131,940 |
14,512 |
1,000 |
13,512 |
||
|
2022 |
03/15/2022 |
157,500 |
128,098 |
14,089 |
1,000 |
13,089 |
||
| Property Building Permit History | |||||||||||
|---|---|---|---|---|---|---|---|---|---|---|---|
| Issued | Permit # | Provided by | Bldg # | Description | Est Construction Cost | Status | |||||
| No Building Permit records returned. | |||||||||||
| Click button on building number to access detailed information: | ||||||
|---|---|---|---|---|---|---|
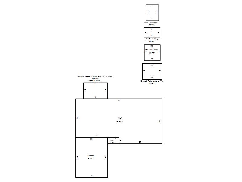
| Bldg # | Vacant/Improved Land | Bldg Description | Year Built | SqFt | # Stories | |
|
1 |
Improved |
Ranch 1 Story |
1962 |
1,404 |
1 Stories |
|