|
|
|
| Larry Stein Oklahoma County Assessor (405) 713-1200 - Public Access System |
|
|
|
|
|
|
| Real Property Display - Screen Produced 4/29/2026 5:43:38 AM | ||||
|---|---|---|---|---|
| Account: R142601595 | Type: Residential | Location: |
5824 NW 31ST TER |
|
| Building Name/Occupant: |
|
OKLAHOMA CITY |
||
| Owner Name 1: | HARRIS LOMA J |
Parcel PIN#: |
2888-14-260-1595 |
|
| Owner Name 2: | 1/4 section #: |
2888 |
||
| Owner Name 3: | Parent Acct: |
|
||
| Billing Address: | 5824 NW 31ST TER | Tax District: |
|
|
| City, State, Zip | OKLAHOMA CITY , OK 73122 | School System: |
Putnam City #1 |
|
|
Country: (If noted) |
Land Size: |
0.1736 Acres |
||
|
Land Value: 28,728 |
|
|||
|
Sect 22-T12N-R4W Qtr NW |
ROBERTS ROSEWOOD MANOR
Block
003
Lot
003
|
|||
| Full Legal Description: ROBERTS ROSEWOOD MANOR 003 003 |
| Value History (*The County Treasurer 405-713-1300 posts & collects actual tax amounts. Contact information HERE) | |||||||||||||
|---|---|---|---|---|---|---|---|---|---|---|---|---|---|
| Year | Market Value | Taxable Mkt Value | Gross Assessed | Exemption | Net Assessed | Millage | Est. Tax | Tax Savings | |||||
|
2026 |
173,500 |
160,810 |
17,688 |
0 |
17,688 |
123.17 |
$2,179 |
$172 |
|||||
|
2025 |
179,000 |
153,153 |
16,846 |
0 |
16,846 |
123.17 |
$2,075 |
$350 |
|||||
|
2024 |
178,000 |
145,860 |
16,044 |
0 |
16,044 |
122.30 |
$1,962 |
$432 |
|||||
| Property Account Status/Adjustments/Exemptions | ||
|---|---|---|
| Account # | Exemption Description | Amount |
|
R142601595 |
5% Capped Account |
0 |
| Property Deed Transaction History (Recorded in the County Clerk's Office) | ||||||||||
|---|---|---|---|---|---|---|---|---|---|---|
| Date | Type | Book | Page | Price | Grantor | Grantee | ||||
|
1/30/2018 |
|
Deeds |
$120,500 |
HILL MYRA J & SAMMY W |
HARRIS LOMA J |
|||||
|
3/7/2017 |
|
Hmstd Off & |
$0 |
HILL MYRA J |
HILL MYRA J & SAMMY W |
|||||
|
8/8/2014 |
|
Deeds |
$0 |
HILL SAMMY W & MYRA J |
HILL MYRA J |
|||||
| Last Mailed Notice of Value (N.O.V.) Information/History | ||||||||
|---|---|---|---|---|---|---|---|---|
| Year | Date | Market Value | Taxable Market Value | Gross Assessed | Exemption | Net Assessed | ||
|
2026 |
02/23/2026 |
173,500 |
160,810 |
17,688 |
0 |
17,688 |
||
|
2025 |
02/14/2025 |
179,000 |
153,153 |
16,846 |
0 |
16,846 |
||
|
2024 |
02/13/2024 |
178,000 |
145,860 |
16,044 |
0 |
16,044 |
||
| Property Building Permit History | |||||||||||
|---|---|---|---|---|---|---|---|---|---|---|---|
| Issued | Permit # | Provided by | Bldg # | Description | Est Construction Cost | Status | |||||
| No Building Permit records returned. | |||||||||||
| Click button below to access detailed information and additional property photos: | ||||||
|---|---|---|---|---|---|---|
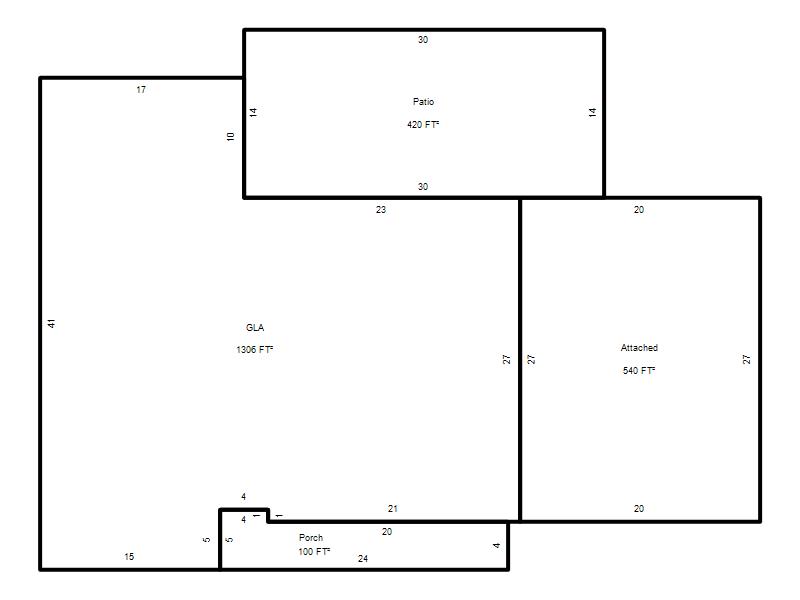
| Bldg # | Vacant/Improved Land | Bldg Description | Year Built | SqFt | # Stories | |
|
1 |
Improved |
Ranch 1 Story |
1963 |
1,306 |
1 Stories |
|