|
|
|
| Larry Stein Oklahoma County Assessor (405) 713-1200 - Public Access System |
|
|
|
|
|
|
| Real Property Display - Screen Produced 2/28/2026 3:40:39 AM | ||||
|---|---|---|---|---|
| Account: R145861075 | Type: Residential | Location: |
4900 NW 36TH ST |
|
| Building Name/Occupant: |
|
OKLAHOMA CITY |
||
| Owner Name 1: | WARNER BARBARA ALICE |
Parcel PIN#: |
2888-14-586-1075 |
|
| Owner Name 2: | 1/4 section #: |
2888 |
||
| Owner Name 3: | Parent Acct: |
|
||
| Billing Address: | 4900 NW 36TH ST | Tax District: |
|
|
| City, State, Zip | OKLAHOMA CITY, OK 73122-2326 | School System: |
Putnam City #1 |
|
|
Country: (If noted) |
Land Size: |
0.3834 Acres |
||
|
Land Value: 63,460 |
|
|||
|
Sect 22-T12N-R4W Qtr NW |
MERIDIAN HILLS
Block
001
Lot
008
|
|||
| Full Legal Description: MERIDIAN HILLS 001 008 |
| Photo & Sketch (if available) | Comp Sales (ordered by relevancy) |
|
||||||||||||||||||
|
||||||||||||||||||||
| Value History (*The County Treasurer 405-713-1300 posts & collects actual tax amounts. Contact information HERE) | |||||||||||||
|---|---|---|---|---|---|---|---|---|---|---|---|---|---|
| Year | Market Value | Taxable Mkt Value | Gross Assessed | Exemption | Net Assessed | Millage | Est. Tax | Tax Savings | |||||
|
2025 |
264,500 |
174,458 |
19,190 |
1,000 |
18,190 |
123.17 |
$2,241 |
$1,343 |
|||||
|
2024 |
267,500 |
174,458 |
19,190 |
1,000 |
18,190 |
122.30 |
$2,225 |
$1,374 |
|||||
|
2023 |
257,000 |
174,458 |
19,190 |
1,000 |
18,190 |
121.91 |
$2,218 |
$1,229 |
|||||
|
2022 |
227,000 |
174,458 |
19,190 |
1,000 |
18,190 |
123.41 |
$2,245 |
$837 |
|||||
|
2021 |
194,500 |
174,458 |
19,189 |
1,000 |
18,189 |
122.23 |
$2,223 |
$392 |
|||||
| Property Account Status/Adjustments/Exemptions | ||
|---|---|---|
| Account # | Exemption Description | Amount |
|
R145861075 |
Freeze Senior Valuation |
0 |
|
R145861075 |
Homestead |
1,000 |
|
R145861075 |
3% Cap Homestead |
0 |
| Property Deed Transaction History (Recorded in the County Clerk's Office) | |||||||
|---|---|---|---|---|---|---|---|
| Date | Type | Book | Page | Price | Grantor | Grantee | |
|
9/28/2012 |
|
Hmstd Off & |
$0 |
ALDRIDGE NORMA SUE TRS WARNER SAMUEL & CYNTHIA REV LIV TRUST |
GODDWIN VICTORIA EMILY WARNER B ARBARA ALICE |
||
|
9/28/2012 |
|
Deeds |
$0 |
GODDWIN VICTORIA EMILY WARNER BARBARA ALICE |
WARNER BARBARA ALICE |
||
|
12/12/2006 |
|
Deeds |
$0 |
WARNER S A JR & C |
ALDRIDGE NORMA SUE TRS WARNER SAMUEL & CYNTHIA REV LIV TRUST |
||
|
11/11/1911 |
|
Historical |
$0 |
|
WARNER S A JR & C |
||
| Last Mailed Notice of Value (N.O.V.) Information/History | ||||||||
|---|---|---|---|---|---|---|---|---|
| Year | Date | Market Value | Taxable Market Value | Gross Assessed | Exemption | Net Assessed | ||
|
2024 |
02/13/2024 |
267,500 |
174,458 |
19,190 |
1,000 |
18,190 |
||
|
2023 |
02/14/2023 |
257,000 |
174,458 |
19,190 |
1,000 |
18,190 |
||
|
2022 |
03/15/2022 |
227,000 |
174,458 |
19,190 |
1,000 |
18,190 |
||
|
2021 |
03/19/2021 |
194,500 |
174,458 |
19,190 |
1,000 |
18,190 |
||
|
2020 |
03/10/2020 |
182,000 |
169,377 |
18,631 |
1,000 |
17,631 |
||
| Property Building Permit History | |||||||||||
|---|---|---|---|---|---|---|---|---|---|---|---|
| Issued | Permit # | Provided by | Bldg # | Description | Est Construction Cost | Status | |||||
| No Building Permit records returned. | |||||||||||
| Click button on building number to access detailed information: | ||||||
|---|---|---|---|---|---|---|
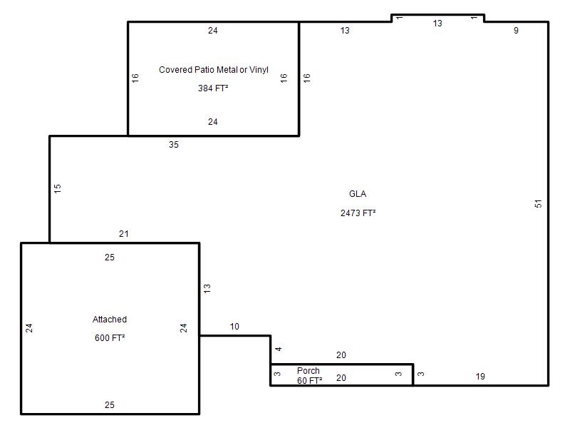
| Bldg # | Vacant/Improved Land | Bldg Description | Year Built | SqFt | # Stories | |
|
1 |
Improved |
Ranch 1 Story |
1960 |
2,473 |
1 Stories |
|