|
|
|
| Larry Stein Oklahoma County Assessor (405) 713-1200 - Public Access System |
|
|
|
|
|
|
| Real Property Display - Screen Produced 2/27/2026 6:24:30 AM | ||||
|---|---|---|---|---|
| Account: R147431105 | Type: Commercial | Location: |
3420 N MACARTHUR BLVD |
|
| Building Name/Occupant: |
CLOCK CITY |
OKLAHOMA CITY |
||
| Owner Name 1: | HASSAN PROPERTIES LLC |
Parcel PIN#: |
2888-14-743-1105 |
|
| Owner Name 2: | 1/4 section #: |
2888 |
||
| Owner Name 3: | Parent Acct: |
|
||
| Billing Address: | 12301 DUTCH FOREST PL | Tax District: |
|
|
| City, State, Zip | EDMOND, OK 73013 | School System: |
Putnam City #1 |
|
|
Country: (If noted) |
Land Size: |
21,000.0000 Square Feet |
||
|
Land Value: 168,000 |
|
|||
|
Sect 22-T12N-R4W Qtr NW |
GOLDEN OAKS
Block
000
Lot
000
|
|||
| Full Legal Description: GOLDEN OAKS 000 000 W150FT OF BLK 2 |
| No comparable sales report available. | ||||||||||||||||||||||
|
||||||||||||||||||||||
| Value History (*The County Treasurer 405-713-1300 posts & collects actual tax amounts. Contact information HERE) | |||||||||||||
|---|---|---|---|---|---|---|---|---|---|---|---|---|---|
| Year | Market Value | Taxable Mkt Value | Gross Assessed | Exemption | Net Assessed | Millage | Est. Tax | Tax Savings | |||||
|
2025 |
312,239 |
312,239 |
34,346 |
0 |
34,346 |
123.17 |
$4,230 |
$0 |
|||||
|
2024 |
312,239 |
302,415 |
33,265 |
0 |
33,265 |
122.30 |
$4,068 |
$132 |
|||||
|
2023 |
312,239 |
288,015 |
31,681 |
0 |
31,681 |
121.91 |
$3,862 |
$325 |
|||||
|
2022 |
274,300 |
274,300 |
30,173 |
0 |
30,173 |
123.41 |
$3,724 |
$0 |
|||||
|
2021 |
278,711 |
278,711 |
30,658 |
0 |
30,658 |
122.23 |
$3,747 |
$0 |
|||||
| Property Account Status/Adjustments/Exemptions | ||||||
|---|---|---|---|---|---|---|
| Account # | Exemption Description | Amount | ||||
| No adjustment/exemption records returned. | ||||||
| Property Deed Transaction History (Recorded in the County Clerk's Office) | |||||||
|---|---|---|---|---|---|---|---|
| Date | Type | Book | Page | Price | Grantor | Grantee | |
|
10/14/2021 |
|
Hmstd Off & |
$0 |
MAZROUEE AFSANEH |
HASSAN PROPERTIES LLC |
||
|
11/2/2012 |
|
Deeds |
$162,500 |
VVP LLC |
MAZROUEE AFSANEH |
||
|
1/31/2001 |
|
Deeds |
$219,998 |
PIERCE DON E & PEGGIE H |
VVP LLC |
||
|
8/1/1986 |
|
Historical |
$0 |
MEDIC PHARMACY INC |
PIERCE DON E & PEGGIE H |
||
|
11/11/1911 |
|
Historical |
$0 |
|
MEDIC PHARMACY INC |
||
| Last Mailed Notice of Value (N.O.V.) Information/History | ||||||||
|---|---|---|---|---|---|---|---|---|
| Year | Date | Market Value | Taxable Market Value | Gross Assessed | Exemption | Net Assessed | ||
|
2025 |
03/14/2025 |
312,239 |
312,239 |
34,346 |
0 |
34,346 |
||
|
2024 |
03/12/2024 |
312,239 |
302,415 |
33,265 |
0 |
33,265 |
||
|
2023 |
03/13/2023 |
312,239 |
288,015 |
31,681 |
0 |
31,681 |
||
|
2020 |
03/16/2020 |
278,711 |
278,711 |
30,658 |
0 |
30,658 |
||
|
2017 |
03/20/2017 |
274,300 |
274,300 |
30,173 |
|
|
||
| Property Building Permit History | ||||||
|---|---|---|---|---|---|---|
| Issued | Permit # | Provided by | Bldg # | Description | Est Construction Cost | Status |
|
10/4/1999 |
10241787 |
OKLAHOMA CITY |
1 |
Remodeled |
20,000 |
Inactive |
| Click button on building number to access detailed information: | ||||||
|---|---|---|---|---|---|---|
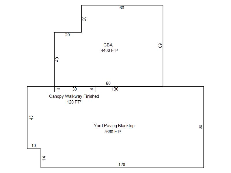
| Bldg # | Vacant/Improved Land | Bldg Description | Year Built | SqFt | # Stories | |
|
1 |
Improved |
Retail Store |
1966 |
4,400 |
1 Stories |
|