|
|
|
| Larry Stein Oklahoma County Assessor (405) 713-1200 - Public Access System |
|
|
|
|
|
|
| Real Property Display - Screen Produced 2/27/2026 4:57:55 AM | ||||
|---|---|---|---|---|
| Account: R147431320 | Type: Residential | Location: |
5705 NW 34TH ST |
|
| Building Name/Occupant: |
|
OKLAHOMA CITY |
||
| Owner Name 1: | SIGNATURE PROPERTY GROUP LLC |
Parcel PIN#: |
2888-14-743-1320 |
|
| Owner Name 2: | 1/4 section #: |
2888 |
||
| Owner Name 3: | Parent Acct: |
|
||
| Billing Address: | 10828 WILD HORSE CREEK DR | Tax District: |
|
|
| City, State, Zip | YUKON, OK 73099-8293 | School System: |
Putnam City #1 |
|
|
Country: (If noted) |
Land Size: |
0.1778 Acres |
||
|
Land Value: 34,862 |
|
|||
|
Sect 22-T12N-R4W Qtr NW |
GOLDEN OAKS
Block
005
Lot
000
|
|||
| Full Legal Description: GOLDEN OAKS 005 000 E61FT OF LOT 6 |
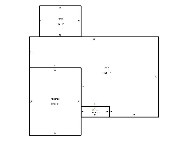
| Photo & Sketch (if available) | Comp Sales (ordered by relevancy) |
|
||||||||||||||||||
|
||||||||||||||||||||
| Value History (*The County Treasurer 405-713-1300 posts & collects actual tax amounts. Contact information HERE) | |||||||||||||
|---|---|---|---|---|---|---|---|---|---|---|---|---|---|
| Year | Market Value | Taxable Mkt Value | Gross Assessed | Exemption | Net Assessed | Millage | Est. Tax | Tax Savings | |||||
|
2025 |
161,000 |
68,818 |
7,569 |
0 |
7,569 |
123.17 |
$932 |
$1,249 |
|||||
|
2024 |
158,500 |
65,541 |
7,209 |
0 |
7,209 |
122.30 |
$882 |
$1,251 |
|||||
|
2023 |
150,500 |
62,420 |
6,865 |
0 |
6,865 |
121.91 |
$837 |
$1,181 |
|||||
|
2022 |
127,000 |
59,448 |
6,538 |
0 |
6,538 |
123.41 |
$807 |
$917 |
|||||
|
2021 |
110,500 |
56,618 |
6,227 |
0 |
6,227 |
122.23 |
$761 |
$724 |
|||||
| Property Account Status/Adjustments/Exemptions | ||||||
|---|---|---|---|---|---|---|
| Account # | Exemption Description | Amount | ||||
| No adjustment/exemption records returned. | ||||||
| Property Deed Transaction History (Recorded in the County Clerk's Office) | ||||||||||
|---|---|---|---|---|---|---|---|---|---|---|
| Date | Type | Book | Page | Price | Grantor | Grantee | ||||
|
5/23/2025 |
|
Deeds |
$66,500 |
CARY JAMES H |
INTEGRITY HOME BUYERS LLC |
|||||
|
5/23/2025 |
|
Deeds |
$95,000 |
INTEGRITY HOME BUYERS LLC |
SIGNATURE PROPERTY GROUP LLC |
|||||
|
3/3/2025 |
|
Hmstd Off & |
$0 |
CARY JAMES H & JACQUELINE P |
CARY JAMES H |
|||||
|
6/18/2019 |
|
Deeds |
$0 |
CARY JAMES H |
CARY JAMES H & JACQUELINE P |
|||||
|
8/17/2018 |
|
Hmstd Off & |
$0 |
CARY LILLIE EVELYN |
CARY JAMES H |
|||||
| Last Mailed Notice of Value (N.O.V.) Information/History | ||||||||
|---|---|---|---|---|---|---|---|---|
| Year | Date | Market Value | Taxable Market Value | Gross Assessed | Exemption | Net Assessed | ||
|
2026 |
02/23/2026 |
158,500 |
158,500 |
17,435 |
0 |
17,435 |
||
|
2025 |
02/14/2025 |
161,000 |
68,818 |
7,569 |
0 |
7,569 |
||
|
2025 |
03/28/2025 |
161,000 |
68,818 |
7,569 |
0 |
7,569 |
||
|
2024 |
02/13/2024 |
158,500 |
65,541 |
7,209 |
0 |
7,209 |
||
|
2023 |
02/14/2023 |
150,500 |
62,420 |
6,865 |
0 |
6,865 |
||
| Property Building Permit History | |||||||||||
|---|---|---|---|---|---|---|---|---|---|---|---|
| Issued | Permit # | Provided by | Bldg # | Description | Est Construction Cost | Status | |||||
| No Building Permit records returned. | |||||||||||
| Click button on building number to access detailed information: | ||||||
|---|---|---|---|---|---|---|
| Bldg # | Vacant/Improved Land | Bldg Description | Year Built | SqFt | # Stories | |
|
1 |
Improved |
Ranch 1 Story |
1964 |
1,126 |
1 Stories |
|