Larry Stein Oklahoma County Assessor (405) 713-1200 - Public Access System
Home Contact Us Guest Book Map Search New Search
Real Property Display - Screen Produced   4/29/2026 4:28:21 AM 
Account: R115011235  Type: Residential

  

Location:

3036 N TULSA DR

Building Name/Occupant:

 

OKLAHOMA CITY

Owner Name 1:  ROSS STELLA M

Parcel PIN#:

2891-11-501-1235

Owner Name 2:    1/4 section #:

2891

Owner Name 3:    Parent Acct:

 

Billing Address:  3036 N TULSA DR Tax District:

City, State, Zip  OKLAHOMA CITY, OK  73107-1328 School System:

Oklahoma City #89

Country: (If noted)

  

Land Size:

0.1626  Acres

Personal Property

Land Value: 28,340 

Treasurer:

Sect 23-T12N-R4W Qtr SW

 ZEDNA ANN 5TH ADD   Block 003  Lot 002   Subdivision Sales
 Full Legal Description:  ZEDNA ANN 5TH ADD 003 002

NOTE:  The following sales may or may not be used to determine Fair Market Value

Photo & Sketch (if available) Sales  Sales Report

 2609 N GERALDINE AVE OKLAHOMA CITY, OK

12/29/2025

 $129,000 

 2920 N TULSA DR OKLAHOMA CITY, OK

09/24/2024

 $179,000 

 3020 N ZEDNA DR OKLAHOMA CITY, OK

10/08/2025

 $224,000 

 2600 N VERMONT AVE OKLAHOMA CITY, OK

10/13/2023

 $215,000 

 3021 N ZEDNA DR OKLAHOMA CITY, OK

04/14/2025

 $183,000 

 3037 N ZEDNA DR OKLAHOMA CITY, OK

03/03/2023

 $180,000 

Value History  (*The County Treasurer 405-713-1300 posts & collects actual tax amounts.  Contact information  HERE)
Year Market Value Taxable Mkt Value Gross Assessed Exemption Net Assessed Millage Est. Tax Tax Savings

2026

158,000 

118,259 

13,007 

1,000 

12,007 

122.90 

$1,476 

$660 

2025

159,000 

114,815 

12,628 

1,000 

11,628 

122.90 

$1,429 

$720 

2024

158,000 

111,471 

12,261 

1,000 

11,261 

123.89 

$1,395 

$758 

[1/10]
Property Account Status/Adjustments/Exemptions
Account # Exemption Description Amount

R115011235

3% Cap Homestead

R115011235

Homestead

1,000 

Property Deed Transaction History   (Recorded in the County Clerk's Office)
Date Type Book Page Price Grantor Grantee

12/1/1986

Historical

5561

313

 $0 

ROSS JOE & STELLA M

ROSS STELLA M

2/1/1979

Historical

4540

1829

 $0 

 

ROSS JOE & STELLA M

Last Mailed Notice of Value (N.O.V.) Information/History
Year Date Market Value Taxable Market Value Gross Assessed Exemption Net Assessed

2026

02/23/2026

158,000 

118,259 

13,007 

1,000 

12,007 

2025

02/14/2025

159,000 

114,815 

12,628 

1,000 

11,628 

2024

02/13/2024

158,000 

111,471 

12,261 

1,000 

11,261 

[1/4]
Property Building Permit History
Issued Permit # Provided by Bldg # Description Est Construction Cost Status
No Building Permit records returned.
Click button below to access detailed information and additional property photos:
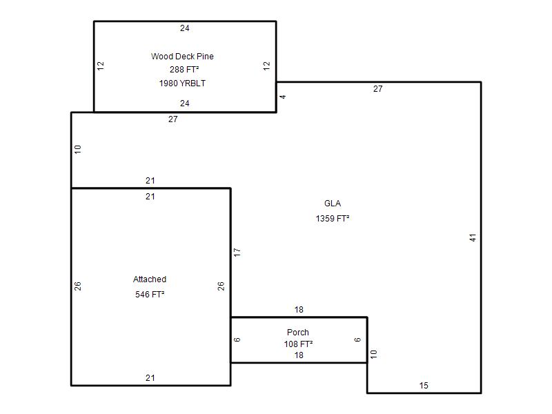
  Bldg # Vacant/Improved Land Bldg Description Year Built SqFt # Stories

Click

1

Improved

Ranch 1 Story

1957

1,359 

1 Stories