|
|
|
| Larry Stein Oklahoma County Assessor (405) 713-1200 - Public Access System |
|
|
|
|
|
|
| Real Property Display - Screen Produced 2/27/2026 10:16:14 AM | ||||
|---|---|---|---|---|
| Account: R115011295 | Type: Residential | Location: |
3012 N TULSA DR |
|
| Building Name/Occupant: |
|
OKLAHOMA CITY |
||
| Owner Name 1: | METRO HOME EXCHANGE LLC |
Parcel PIN#: |
2891-11-501-1295 |
|
| Owner Name 2: | 1/4 section #: |
2891 |
||
| Owner Name 3: | Parent Acct: |
|
||
| Billing Address: | 2141 KELHAM AVE | Tax District: |
|
|
| City, State, Zip | OKLAHOMA CITY, OK 73111 | School System: |
Oklahoma City #89 |
|
|
Country: (If noted) |
Land Size: |
0.1947 Acres |
||
|
Land Value: 37,000 |
|
|||
|
Sect 23-T12N-R4W Qtr SW |
ZEDNA ANN 5TH ADD
Block
003
Lot
008
|
|||
| Full Legal Description: ZEDNA ANN 5TH ADD 003 008 |
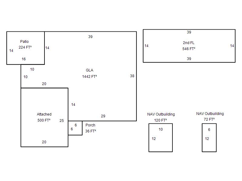
| Photo & Sketch (if available) | Comp Sales (ordered by relevancy) |
|
||||||||||||||||||
|
||||||||||||||||||||
| Value History (*The County Treasurer 405-713-1300 posts & collects actual tax amounts. Contact information HERE) | |||||||||||||
|---|---|---|---|---|---|---|---|---|---|---|---|---|---|
| Year | Market Value | Taxable Mkt Value | Gross Assessed | Exemption | Net Assessed | Millage | Est. Tax | Tax Savings | |||||
|
2025 |
220,500 |
220,500 |
24,255 |
0 |
24,255 |
122.90 |
$2,981 |
$0 |
|||||
|
2024 |
221,000 |
221,000 |
24,310 |
0 |
24,310 |
123.89 |
$3,012 |
$0 |
|||||
|
2023 |
212,000 |
127,729 |
14,050 |
0 |
14,050 |
122.82 |
$1,726 |
$1,139 |
|||||
|
2022 |
187,000 |
121,647 |
13,380 |
0 |
13,380 |
117.63 |
$1,574 |
$846 |
|||||
|
2021 |
164,000 |
115,855 |
12,743 |
0 |
12,743 |
117.70 |
$1,500 |
$623 |
|||||
| Property Account Status/Adjustments/Exemptions | ||
|---|---|---|
| Account # | Exemption Description | Amount |
|
R115011295 |
5% Capped Account |
0 |
| Property Deed Transaction History (Recorded in the County Clerk's Office) | ||||||||||
|---|---|---|---|---|---|---|---|---|---|---|
| Date | Type | Book | Page | Price | Grantor | Grantee | ||||
|
1/6/2023 |
|
Deeds |
$200,000 |
SKC PROPERTIES LLC |
METRO HOME EXCHANGE LLC |
|||||
|
8/26/2016 |
|
Hmstd Off & |
$0 |
GRAVEN GABRIEL |
SKC PROPERTIES LLC |
|||||
|
12/3/2014 |
|
Deeds |
$88,000 |
STORY JANICE MARIE |
GRAVEN GABRIEL |
|||||
|
2/11/2002 |
|
Deeds |
$0 |
STORY JANICE M STORY MICHAEL D |
STORY JANICE MARIE |
|||||
|
9/20/2001 |
|
Deeds |
$0 |
STORY HAROLD D & J M |
STORY JANICE M |
|||||
| Last Mailed Notice of Value (N.O.V.) Information/History | ||||||||
|---|---|---|---|---|---|---|---|---|
| Year | Date | Market Value | Taxable Market Value | Gross Assessed | Exemption | Net Assessed | ||
|
2024 |
02/13/2024 |
221,000 |
221,000 |
24,310 |
0 |
24,310 |
||
|
2023 |
02/14/2023 |
212,000 |
127,729 |
14,050 |
0 |
14,050 |
||
|
2022 |
03/15/2022 |
187,000 |
121,647 |
13,380 |
0 |
13,380 |
||
|
2021 |
03/19/2021 |
164,000 |
115,855 |
12,744 |
0 |
12,744 |
||
|
2020 |
03/10/2020 |
154,000 |
110,339 |
12,137 |
0 |
12,137 |
||
| Property Building Permit History | |||||||||||
|---|---|---|---|---|---|---|---|---|---|---|---|
| Issued | Permit # | Provided by | Bldg # | Description | Est Construction Cost | Status | |||||
| No Building Permit records returned. | |||||||||||
| Click button on building number to access detailed information: | ||||||
|---|---|---|---|---|---|---|
| Bldg # | Vacant/Improved Land | Bldg Description | Year Built | SqFt | # Stories | |
|
1 |
Improved |
1½ Story Fin |
1956 |
1,988 |
1.5 Stories |
|