|
|
|
| Larry Stein Oklahoma County Assessor (405) 713-1200 - Public Access System |
|
|
|
|
|
|
| Real Property Display - Screen Produced 4/29/2026 4:28:22 AM | ||||
|---|---|---|---|---|
| Account: R115011325 | Type: Residential | Location: |
3000 N TULSA DR |
|
| Building Name/Occupant: |
|
OKLAHOMA CITY |
||
| Owner Name 1: | RAMIREZ MIGUEL A |
Parcel PIN#: |
2891-11-501-1325 |
|
| Owner Name 2: | TOCA DEHUMA MARINA | 1/4 section #: |
2891 |
|
| Owner Name 3: | Parent Acct: |
|
||
| Billing Address: | 1105 N ANN ARBOR AVE | Tax District: |
|
|
| City, State, Zip | OKLAHOMA CITY, OK 73127-3901 | School System: |
Oklahoma City #89 |
|
|
Country: (If noted) |
Land Size: |
0.2104 Acres |
||
|
Land Value: 36,660 |
|
|||
|
Sect 23-T12N-R4W Qtr SW |
ZEDNA ANN 5TH ADD
Block
003
Lot
011
|
|||
| Full Legal Description: ZEDNA ANN 5TH ADD 003 011 |
| Value History (*The County Treasurer 405-713-1300 posts & collects actual tax amounts. Contact information HERE) | |||||||||||||
|---|---|---|---|---|---|---|---|---|---|---|---|---|---|
| Year | Market Value | Taxable Mkt Value | Gross Assessed | Exemption | Net Assessed | Millage | Est. Tax | Tax Savings | |||||
|
2026 |
181,000 |
181,000 |
19,910 |
0 |
19,910 |
122.90 |
$2,447 |
$0 |
|||||
|
2025 |
179,000 |
179,000 |
19,690 |
0 |
19,690 |
122.90 |
$2,420 |
$0 |
|||||
|
2024 |
178,500 |
136,687 |
15,034 |
0 |
15,034 |
123.89 |
$1,863 |
$570 |
|||||
| Property Account Status/Adjustments/Exemptions | ||
|---|---|---|
| Account # | Exemption Description | Amount |
|
R115011325 |
5% Capped Account |
0 |
| Property Deed Transaction History (Recorded in the County Clerk's Office) | ||||||||||
|---|---|---|---|---|---|---|---|---|---|---|
| Date | Type | Book | Page | Price | Grantor | Grantee | ||||
|
4/9/2024 |
|
Deeds |
$188,500 |
GOOD HEAD HOMES LLC |
RAMIREZ MIGUEL A |
|||||
|
9/26/2016 |
|
Deeds |
$98,000 |
LANCASTER JARROD |
GOOD HEAD HOMES LLC |
|||||
|
2/27/2007 |
|
Deeds |
$88,000 |
WILLIAMS MICHELLE D CHOATE JASON W |
LANCASTER JARROD |
|||||
| Last Mailed Notice of Value (N.O.V.) Information/History | ||||||||
|---|---|---|---|---|---|---|---|---|
| Year | Date | Market Value | Taxable Market Value | Gross Assessed | Exemption | Net Assessed | ||
|
2026 |
02/23/2026 |
181,000 |
181,000 |
19,910 |
0 |
19,910 |
||
|
2025 |
02/14/2025 |
179,000 |
179,000 |
19,690 |
0 |
19,690 |
||
|
2024 |
02/13/2024 |
178,500 |
136,687 |
15,034 |
0 |
15,034 |
||
| Property Building Permit History | |||||||||||
|---|---|---|---|---|---|---|---|---|---|---|---|
| Issued | Permit # | Provided by | Bldg # | Description | Est Construction Cost | Status | |||||
| No Building Permit records returned. | |||||||||||
| Click button below to access detailed information and additional property photos: | ||||||
|---|---|---|---|---|---|---|
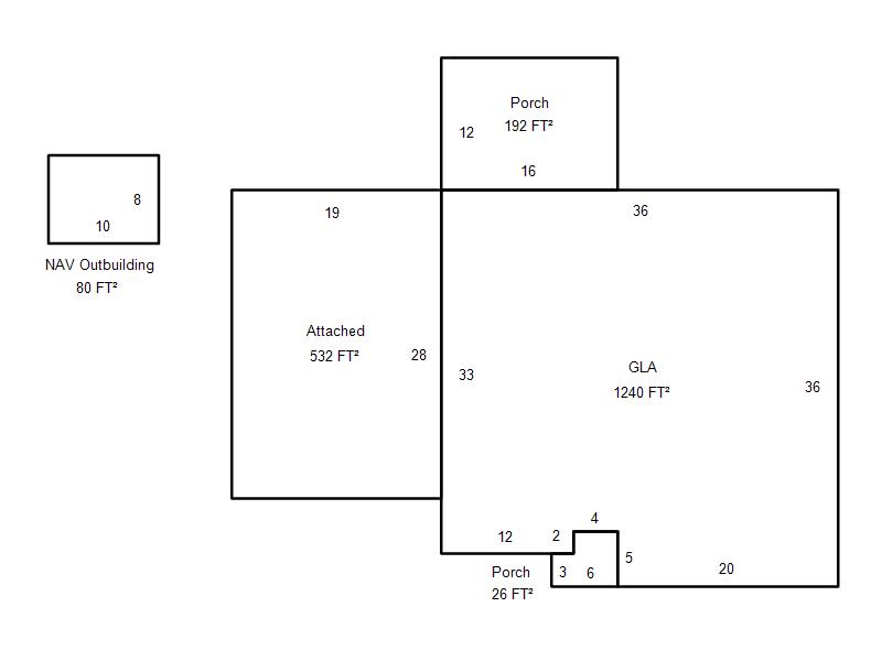
| Bldg # | Vacant/Improved Land | Bldg Description | Year Built | SqFt | # Stories | |
|
1 |
Improved |
Ranch 1 Story |
1959 |
1,240 |
1 Stories |
|