|
|
|
| Larry Stein Oklahoma County Assessor (405) 713-1200 - Public Access System |
|
|
|
|
|
|
| Real Property Display - Screen Produced 2/27/2026 10:15:04 AM | ||||
|---|---|---|---|---|
| Account: R115011345 | Type: Residential | Location: |
2924 N TULSA DR |
|
| Building Name/Occupant: |
|
OKLAHOMA CITY |
||
| Owner Name 1: | BUCHANAN JACKIE R |
Parcel PIN#: |
2891-11-501-1345 |
|
| Owner Name 2: | 1/4 section #: |
2891 |
||
| Owner Name 3: | Parent Acct: |
|
||
| Billing Address: | 2924 N TULSA DR | Tax District: |
|
|
| City, State, Zip | OKLAHOMA CITY, OK 73107-1326 | School System: |
Oklahoma City #89 |
|
|
Country: (If noted) |
Land Size: |
0.2104 Acres |
||
|
Land Value: 36,660 |
|
|||
|
Sect 23-T12N-R4W Qtr SW |
ZEDNA ANN 5TH ADD
Block
003
Lot
013
|
|||
| Full Legal Description: ZEDNA ANN 5TH ADD 003 013 NELY 65FT |
| Photo & Sketch (if available) | Comp Sales (ordered by relevancy) |
|
||||||||||||||||||
|
||||||||||||||||||||
| Value History (*The County Treasurer 405-713-1300 posts & collects actual tax amounts. Contact information HERE) | |||||||||||||
|---|---|---|---|---|---|---|---|---|---|---|---|---|---|
| Year | Market Value | Taxable Mkt Value | Gross Assessed | Exemption | Net Assessed | Millage | Est. Tax | Tax Savings | |||||
|
2025 |
161,000 |
116,121 |
12,773 |
1,000 |
11,773 |
122.90 |
$1,447 |
$730 |
|||||
|
2024 |
161,500 |
112,739 |
12,401 |
1,000 |
11,401 |
123.89 |
$1,413 |
$788 |
|||||
|
2023 |
153,500 |
109,456 |
12,039 |
1,000 |
11,039 |
122.82 |
$1,356 |
$718 |
|||||
|
2022 |
135,000 |
106,268 |
11,688 |
1,000 |
10,688 |
117.63 |
$1,257 |
$489 |
|||||
|
2021 |
119,000 |
103,173 |
11,348 |
1,000 |
10,348 |
117.70 |
$1,218 |
$323 |
|||||
| Property Account Status/Adjustments/Exemptions | ||
|---|---|---|
| Account # | Exemption Description | Amount |
|
R115011345 |
3% Cap Homestead |
0 |
|
R115011345 |
Homestead |
1,000 |
| Property Deed Transaction History (Recorded in the County Clerk's Office) | |||||||
|---|---|---|---|---|---|---|---|
| Date | Type | Book | Page | Price | Grantor | Grantee | |
|
5/4/2012 |
|
Deeds |
$90,000 |
TWYMAN JIMMIE W & SAMANTHA J |
BUCHANAN JACKIE R |
||
|
7/20/1993 |
|
Historical |
$49,000 |
BOURLAND DOLORES J |
TWYMAN JIMMIE W & SAMANTHA J |
||
|
1/6/1989 |
|
Historical |
$0 |
BOURLAND DOLORES J |
BOURLAND DOLORES J |
||
|
4/1/1985 |
|
Historical |
$0 |
|
BOURLAND DOLORES J |
||
| Last Mailed Notice of Value (N.O.V.) Information/History | ||||||||
|---|---|---|---|---|---|---|---|---|
| Year | Date | Market Value | Taxable Market Value | Gross Assessed | Exemption | Net Assessed | ||
|
2026 |
02/23/2026 |
161,500 |
119,604 |
13,156 |
1,000 |
12,156 |
||
|
2025 |
02/14/2025 |
161,000 |
116,121 |
12,773 |
1,000 |
11,773 |
||
|
2024 |
02/13/2024 |
161,500 |
112,739 |
12,401 |
1,000 |
11,401 |
||
|
2023 |
02/14/2023 |
153,500 |
109,456 |
12,039 |
1,000 |
11,039 |
||
|
2022 |
03/15/2022 |
135,000 |
106,268 |
11,688 |
1,000 |
10,688 |
||
| Property Building Permit History | |||||||||||
|---|---|---|---|---|---|---|---|---|---|---|---|
| Issued | Permit # | Provided by | Bldg # | Description | Est Construction Cost | Status | |||||
| No Building Permit records returned. | |||||||||||
| Click button on building number to access detailed information: | ||||||
|---|---|---|---|---|---|---|
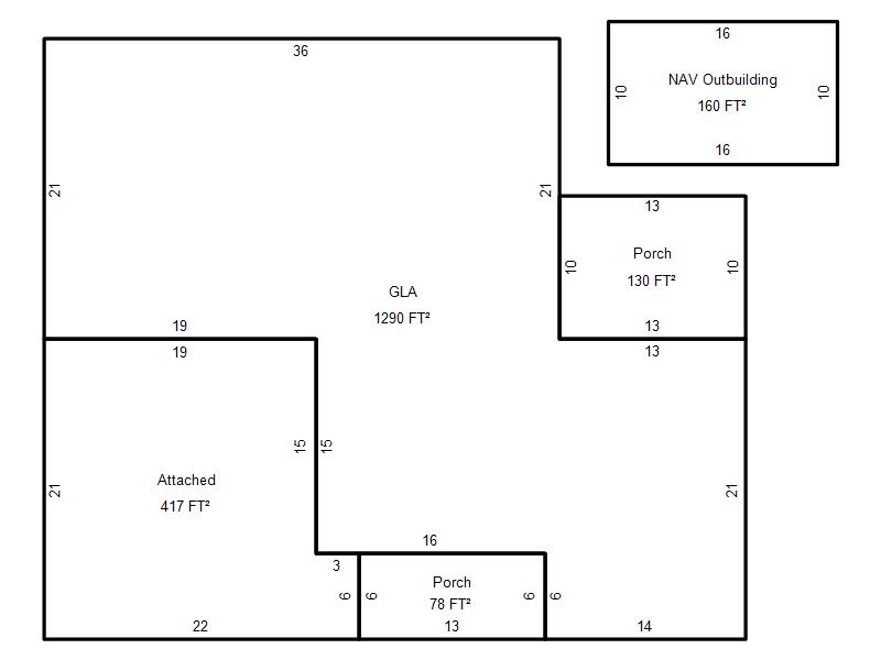
| Bldg # | Vacant/Improved Land | Bldg Description | Year Built | SqFt | # Stories | |
|
1 |
Improved |
Ranch 1 Story |
1960 |
1,290 |
1 Stories |
|