|
|
|
| Larry Stein Oklahoma County Assessor (405) 713-1200 - Public Access System |
|
|
|
|
|
|
| Real Property Display - Screen Produced 2/27/2026 10:16:14 AM | ||||
|---|---|---|---|---|
| Account: R115011385 | Type: Residential | Location: |
2908 N TULSA DR |
|
| Building Name/Occupant: |
|
OKLAHOMA CITY |
||
| Owner Name 1: | MCGUFFIN LARRY ELTON |
Parcel PIN#: |
2891-11-501-1385 |
|
| Owner Name 2: | 1/4 section #: |
2891 |
||
| Owner Name 3: | Parent Acct: |
|
||
| Billing Address: | 6300 CHATHAM RD | Tax District: |
|
|
| City, State, Zip | OKLAHOMA CITY, OK 73132-2623 | School System: |
Oklahoma City #89 |
|
|
Country: (If noted) |
Land Size: |
0.2104 Acres |
||
|
Land Value: 36,660 |
|
|||
|
Sect 23-T12N-R4W Qtr SW |
ZEDNA ANN 5TH ADD
Block
003
Lot
017
|
|||
| Full Legal Description: ZEDNA ANN 5TH ADD 003 017 |
| Photo & Sketch (if available) | Comp Sales (ordered by relevancy) |
|
||||||||||||||||||
|
||||||||||||||||||||
| Value History (*The County Treasurer 405-713-1300 posts & collects actual tax amounts. Contact information HERE) | |||||||||||||
|---|---|---|---|---|---|---|---|---|---|---|---|---|---|
| Year | Market Value | Taxable Mkt Value | Gross Assessed | Exemption | Net Assessed | Millage | Est. Tax | Tax Savings | |||||
|
2025 |
183,000 |
145,179 |
15,969 |
1,000 |
14,969 |
122.90 |
$1,840 |
$634 |
|||||
|
2024 |
183,000 |
140,951 |
15,504 |
1,000 |
14,504 |
123.89 |
$1,797 |
$697 |
|||||
|
2023 |
175,000 |
136,846 |
15,052 |
1,000 |
14,052 |
122.82 |
$1,726 |
$638 |
|||||
|
2022 |
153,000 |
132,861 |
14,613 |
1,000 |
13,613 |
117.63 |
$1,601 |
$378 |
|||||
|
2021 |
134,500 |
128,992 |
14,188 |
0 |
14,188 |
117.70 |
$1,670 |
$71 |
|||||
| Property Account Status/Adjustments/Exemptions | ||
|---|---|---|
| Account # | Exemption Description | Amount |
|
R115011385 |
Homestead |
1,000 |
|
R115011385 |
3% Cap Homestead |
0 |
| Property Deed Transaction History (Recorded in the County Clerk's Office) | ||||||||||
|---|---|---|---|---|---|---|---|---|---|---|
| Date | Type | Book | Page | Price | Grantor | Grantee | ||||
|
1/12/2026 |
|
Deeds |
$160,000 |
MARTIN TAYLOR CHEYENNE |
MCGUFFIN LARRY ELTON |
|||||
|
7/28/2017 |
|
Deeds |
$111,000 |
SNARE DANIEL STEWART |
MARTIN TAYLOR CHEYENNE |
|||||
|
2/11/2016 |
|
Deeds |
$0 |
SNARE DANIEL S & KATHERINE H |
SNARE DANIEL STEWART |
|||||
|
9/26/2002 |
|
Deeds |
$0 |
MCGUIRE MACK |
SNARE KATHERINE |
|||||
|
9/26/2002 |
|
Deeds |
$0 |
SNARE KATHERINE HOLMES |
SNARE DANIEL S & KATHERINE H |
|||||
| Last Mailed Notice of Value (N.O.V.) Information/History | ||||||||
|---|---|---|---|---|---|---|---|---|
| Year | Date | Market Value | Taxable Market Value | Gross Assessed | Exemption | Net Assessed | ||
|
2026 |
02/23/2026 |
185,500 |
149,534 |
16,448 |
1,000 |
15,448 |
||
|
2025 |
02/14/2025 |
183,000 |
145,179 |
15,969 |
1,000 |
14,969 |
||
|
2024 |
02/13/2024 |
183,000 |
140,951 |
15,504 |
1,000 |
14,504 |
||
|
2023 |
02/14/2023 |
175,000 |
136,846 |
15,052 |
1,000 |
14,052 |
||
|
2022 |
03/15/2022 |
153,000 |
135,441 |
14,897 |
0 |
14,897 |
||
| Property Building Permit History | |||||||||||
|---|---|---|---|---|---|---|---|---|---|---|---|
| Issued | Permit # | Provided by | Bldg # | Description | Est Construction Cost | Status | |||||
| No Building Permit records returned. | |||||||||||
| Click button on building number to access detailed information: | ||||||
|---|---|---|---|---|---|---|
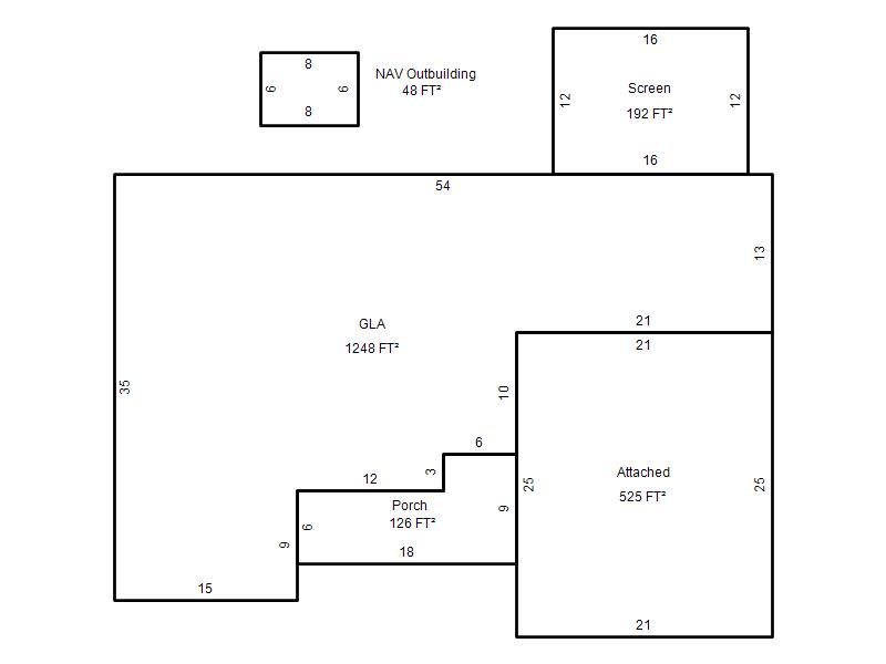
| Bldg # | Vacant/Improved Land | Bldg Description | Year Built | SqFt | # Stories | |
|
1 |
Improved |
Ranch 1 Story |
1960 |
1,248 |
1 Stories |
|