|
|
|
| Larry Stein Oklahoma County Assessor (405) 713-1200 - Public Access System |
|
|
|
|
|
|
| Real Property Display - Screen Produced 4/29/2026 4:29:14 AM | ||||
|---|---|---|---|---|
| Account: R115011425 | Type: Residential | Location: |
4137 NW 28TH ST |
|
| Building Name/Occupant: |
|
OKLAHOMA CITY |
||
| Owner Name 1: | KOONCE PROPERTY GROUP LLC |
Parcel PIN#: |
2891-11-501-1425 |
|
| Owner Name 2: | 1/4 section #: |
2891 |
||
| Owner Name 3: | Parent Acct: |
|
||
| Billing Address: | 2741 NW 19TH ST | Tax District: |
|
|
| City, State, Zip | OKLAHOMA CITY, OK 73107-3940 | School System: |
Oklahoma City #89 |
|
|
Country: (If noted) |
Land Size: |
0.1780 Acres |
||
|
Land Value: 31,020 |
|
|||
|
Sect 23-T12N-R4W Qtr SW |
ZEDNA ANN 5TH ADD
Block
003
Lot
021
|
|||
| Full Legal Description: ZEDNA ANN 5TH ADD 003 021 |
| Value History (*The County Treasurer 405-713-1300 posts & collects actual tax amounts. Contact information HERE) | |||||||||||||
|---|---|---|---|---|---|---|---|---|---|---|---|---|---|
| Year | Market Value | Taxable Mkt Value | Gross Assessed | Exemption | Net Assessed | Millage | Est. Tax | Tax Savings | |||||
|
2026 |
168,000 |
168,000 |
18,480 |
0 |
18,480 |
122.90 |
$2,271 |
$0 |
|||||
|
2025 |
127,000 |
102,384 |
11,261 |
0 |
11,261 |
122.90 |
$1,384 |
$333 |
|||||
|
2024 |
126,500 |
97,509 |
10,725 |
0 |
10,725 |
123.89 |
$1,329 |
$395 |
|||||
| Property Account Status/Adjustments/Exemptions | ||||||
|---|---|---|---|---|---|---|
| Account # | Exemption Description | Amount | ||||
| No adjustment/exemption records returned. | ||||||
| Property Deed Transaction History (Recorded in the County Clerk's Office) | ||||||||||
|---|---|---|---|---|---|---|---|---|---|---|
| Date | Type | Book | Page | Price | Grantor | Grantee | ||||
|
9/11/2025 |
|
Deeds |
$160,000 |
SPARK BRIXTON LLC |
KOONCE PROPERTY GROUP LLC |
|||||
|
5/28/2025 |
|
Deeds |
$95,500 |
CARR BARBARA JEAN |
SPARK BRIXTON LLC |
|||||
|
1/31/1991 |
|
Historical |
$0 |
DUNGEY WM & BARBARA |
CARR BARBARA JEAN |
|||||
| Last Mailed Notice of Value (N.O.V.) Information/History | ||||||||
|---|---|---|---|---|---|---|---|---|
| Year | Date | Market Value | Taxable Market Value | Gross Assessed | Exemption | Net Assessed | ||
|
2026 |
02/23/2026 |
168,000 |
168,000 |
18,480 |
0 |
18,480 |
||
|
2025 |
02/14/2025 |
127,000 |
102,384 |
11,261 |
0 |
11,261 |
||
|
2024 |
02/13/2024 |
126,500 |
97,509 |
10,725 |
0 |
10,725 |
||
| Property Building Permit History | |||||||||||
|---|---|---|---|---|---|---|---|---|---|---|---|
| Issued | Permit # | Provided by | Bldg # | Description | Est Construction Cost | Status | |||||
| No Building Permit records returned. | |||||||||||
| Click button below to access detailed information and additional property photos: | ||||||
|---|---|---|---|---|---|---|
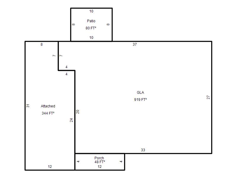
| Bldg # | Vacant/Improved Land | Bldg Description | Year Built | SqFt | # Stories | |
|
1 |
Improved |
Ranch 1 Story |
1958 |
919 |
1 Stories |
|