|
|
|
| Larry Stein Oklahoma County Assessor (405) 713-1200 - Public Access System |
|
|
|
|
|
|
| Real Property Display - Screen Produced 2/27/2026 10:18:02 AM | ||||
|---|---|---|---|---|
| Account: R115011435 | Type: Residential | Location: |
4133 NW 28TH ST |
|
| Building Name/Occupant: |
|
OKLAHOMA CITY |
||
| Owner Name 1: | BUSTAMANTE AUSTIN ETAL |
Parcel PIN#: |
2891-11-501-1435 |
|
| Owner Name 2: | BUSTAMANTE ADRIANA | 1/4 section #: |
2891 |
|
| Owner Name 3: | Parent Acct: |
|
||
| Billing Address: | 4133 NW 28TH ST | Tax District: |
|
|
| City, State, Zip | OKLAHOMA CITY, OK 73107 | School System: |
Oklahoma City #89 |
|
|
Country: (If noted) |
Land Size: |
0.1780 Acres |
||
|
Land Value: 31,020 |
|
|||
|
Sect 23-T12N-R4W Qtr SW |
ZEDNA ANN 5TH ADD
Block
003
Lot
022
|
|||
| Full Legal Description: ZEDNA ANN 5TH ADD 003 022 |
| Photo & Sketch (if available) | Comp Sales (ordered by relevancy) |
|
||||||||||||||||||
|
||||||||||||||||||||
| Value History (*The County Treasurer 405-713-1300 posts & collects actual tax amounts. Contact information HERE) | |||||||||||||
|---|---|---|---|---|---|---|---|---|---|---|---|---|---|
| Year | Market Value | Taxable Mkt Value | Gross Assessed | Exemption | Net Assessed | Millage | Est. Tax | Tax Savings | |||||
|
2025 |
165,000 |
105,671 |
11,623 |
1,000 |
10,623 |
122.90 |
$1,306 |
$925 |
|||||
|
2024 |
165,500 |
102,594 |
11,284 |
1,000 |
10,284 |
123.89 |
$1,274 |
$981 |
|||||
|
2023 |
149,500 |
99,606 |
10,956 |
1,000 |
9,956 |
122.82 |
$1,223 |
$797 |
|||||
|
2022 |
131,500 |
96,705 |
10,636 |
1,000 |
9,636 |
117.63 |
$1,134 |
$568 |
|||||
|
2021 |
107,500 |
93,889 |
10,327 |
1,000 |
9,327 |
117.70 |
$1,098 |
$294 |
|||||
| Property Account Status/Adjustments/Exemptions | ||
|---|---|---|
| Account # | Exemption Description | Amount |
|
R115011435 |
3% Cap Homestead |
0 |
|
R115011435 |
Homestead |
1,000 |
| Property Deed Transaction History (Recorded in the County Clerk's Office) | ||||||||||
|---|---|---|---|---|---|---|---|---|---|---|
| Date | Type | Book | Page | Price | Grantor | Grantee | ||||
|
10/18/2017 |
|
Deeds |
$0 |
BUSTAMANTE AUSTIN |
BUSTAMANTE AUSTIN ETAL |
|||||
|
9/29/2017 |
|
Deeds |
$85,000 |
BLIM IDA B |
BUSTAMANTE AUSTIN |
|||||
|
1/24/2014 |
|
Deeds |
$64,500 |
COLLINGS PENNY POWELL CHASITY |
BLIM IDA B |
|||||
|
1/3/2013 |
|
Deeds |
$0 |
COLLINGS PENNY |
COLLINGS PENNY POWELL CHASITY |
|||||
|
8/9/2007 |
|
Deeds |
$83,000 |
LEWIS SHAVINA D |
COLLINGS PENNY |
|||||
| Last Mailed Notice of Value (N.O.V.) Information/History | ||||||||
|---|---|---|---|---|---|---|---|---|
| Year | Date | Market Value | Taxable Market Value | Gross Assessed | Exemption | Net Assessed | ||
|
2026 |
02/23/2026 |
168,000 |
108,841 |
11,971 |
1,000 |
10,971 |
||
|
2025 |
02/14/2025 |
165,000 |
105,671 |
11,623 |
1,000 |
10,623 |
||
|
2024 |
02/13/2024 |
165,500 |
102,594 |
11,284 |
1,000 |
10,284 |
||
|
2023 |
02/14/2023 |
149,500 |
99,606 |
10,956 |
1,000 |
9,956 |
||
|
2022 |
03/15/2022 |
131,500 |
96,705 |
10,636 |
1,000 |
9,636 |
||
| Property Building Permit History | |||||||||||
|---|---|---|---|---|---|---|---|---|---|---|---|
| Issued | Permit # | Provided by | Bldg # | Description | Est Construction Cost | Status | |||||
| No Building Permit records returned. | |||||||||||
| Click button on building number to access detailed information: | ||||||
|---|---|---|---|---|---|---|
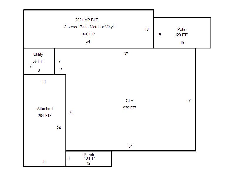
| Bldg # | Vacant/Improved Land | Bldg Description | Year Built | SqFt | # Stories | |
|
1 |
Improved |
Ranch 1 Story |
1958 |
939 |
1 Stories |
|