|
|
|
| Larry Stein Oklahoma County Assessor (405) 713-1200 - Public Access System |
|
|
|
|
|
|
| Real Property Display - Screen Produced 2/27/2026 10:15:04 AM | ||||
|---|---|---|---|---|
| Account: R115011485 | Type: Residential | Location: |
4113 NW 28TH ST |
|
| Building Name/Occupant: |
|
OKLAHOMA CITY |
||
| Owner Name 1: | CRUZ JOSE |
Parcel PIN#: |
2891-11-501-1485 |
|
| Owner Name 2: | CRUZ KARINA | 1/4 section #: |
2891 |
|
| Owner Name 3: | Parent Acct: |
|
||
| Billing Address: | 4113 NW 28TH ST | Tax District: |
|
|
| City, State, Zip | OKLAHOMA CITY, OK 73107-1339 | School System: |
Oklahoma City #89 |
|
|
Country: (If noted) |
Land Size: |
0.1963 Acres |
||
|
Land Value: 34,200 |
|
|||
|
Sect 23-T12N-R4W Qtr SW |
ZEDNA ANN 5TH ADD
Block
003
Lot
027
|
|||
| Full Legal Description: ZEDNA ANN 5TH ADD 003 027 |
| Photo & Sketch (if available) | Comp Sales (ordered by relevancy) |
|
||||||||||||||||||
|
||||||||||||||||||||
| Value History (*The County Treasurer 405-713-1300 posts & collects actual tax amounts. Contact information HERE) | |||||||||||||
|---|---|---|---|---|---|---|---|---|---|---|---|---|---|
| Year | Market Value | Taxable Mkt Value | Gross Assessed | Exemption | Net Assessed | Millage | Est. Tax | Tax Savings | |||||
|
2025 |
137,000 |
116,829 |
12,850 |
0 |
12,850 |
122.90 |
$1,579 |
$273 |
|||||
|
2024 |
136,000 |
111,266 |
12,238 |
0 |
12,238 |
123.89 |
$1,516 |
$337 |
|||||
|
2023 |
129,500 |
105,968 |
11,656 |
0 |
11,656 |
122.82 |
$1,432 |
$318 |
|||||
|
2022 |
114,000 |
100,922 |
11,100 |
0 |
11,100 |
117.63 |
$1,306 |
$169 |
|||||
|
2021 |
100,000 |
96,117 |
10,572 |
0 |
10,572 |
117.70 |
$1,244 |
$50 |
|||||
| Property Account Status/Adjustments/Exemptions | ||
|---|---|---|
| Account # | Exemption Description | Amount |
|
R115011485 |
5% Capped Account |
0 |
| Property Deed Transaction History (Recorded in the County Clerk's Office) | |||||||
|---|---|---|---|---|---|---|---|
| Date | Type | Book | Page | Price | Grantor | Grantee | |
|
9/28/2007 |
|
Hmstd Off & |
$0 |
TERRITORIES UNLIMITED |
FLEMING WILLIAM M FLEMING SHARON A |
||
|
9/28/2007 |
|
Deeds |
$87,000 |
FLEMING WILLIAM M FLEMING SHARON A |
CRUZ JOSE |
||
|
9/27/1999 |
|
Deeds |
$41,500 |
SUDIK HELEN B |
TERRITORIES UNLIMITED |
||
|
4/10/1992 |
|
Historical |
$0 |
SUDIK HELEN B |
SUDIK HELEN B |
||
|
11/11/1911 |
|
Historical |
$0 |
|
SUDIK HELEN B |
||
| Last Mailed Notice of Value (N.O.V.) Information/History | ||||||||
|---|---|---|---|---|---|---|---|---|
| Year | Date | Market Value | Taxable Market Value | Gross Assessed | Exemption | Net Assessed | ||
|
2026 |
02/23/2026 |
139,000 |
122,670 |
13,493 |
0 |
13,493 |
||
|
2025 |
02/14/2025 |
137,000 |
116,829 |
12,850 |
0 |
12,850 |
||
|
2024 |
02/13/2024 |
136,000 |
111,266 |
12,238 |
0 |
12,238 |
||
|
2023 |
02/14/2023 |
129,500 |
105,968 |
11,656 |
0 |
11,656 |
||
|
2022 |
03/15/2022 |
114,000 |
100,922 |
11,100 |
0 |
11,100 |
||
| Property Building Permit History | |||||||||||
|---|---|---|---|---|---|---|---|---|---|---|---|
| Issued | Permit # | Provided by | Bldg # | Description | Est Construction Cost | Status | |||||
| No Building Permit records returned. | |||||||||||
| Click button on building number to access detailed information: | ||||||
|---|---|---|---|---|---|---|
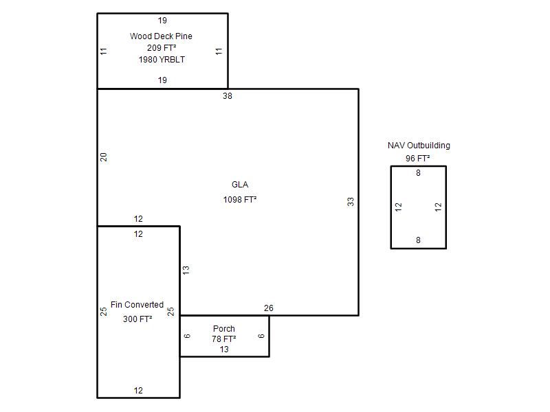
| Bldg # | Vacant/Improved Land | Bldg Description | Year Built | SqFt | # Stories | |
|
1 |
Improved |
Ranch 1 Story |
1955 |
1,098 |
1 Stories |
|