|
|
|
| Larry Stein Oklahoma County Assessor (405) 713-1200 - Public Access System |
|
|
|
|
|
|
| Real Property Display - Screen Produced 2/27/2026 10:18:02 AM | ||||
|---|---|---|---|---|
| Account: R115011505 | Type: Residential | Location: |
4105 NW 28TH ST |
|
| Building Name/Occupant: |
|
OKLAHOMA CITY |
||
| Owner Name 1: | CREEKMORE AERIC W & ROBIN M |
Parcel PIN#: |
2891-11-501-1505 |
|
| Owner Name 2: | 1/4 section #: |
2891 |
||
| Owner Name 3: | Parent Acct: |
|
||
| Billing Address: | 13700 SE 74TH ST | Tax District: |
|
|
| City, State, Zip | OKLAHOMA CITY, OK 73150-8023 | School System: |
Oklahoma City #89 |
|
|
Country: (If noted) |
Land Size: |
0.1928 Acres |
||
|
Land Value: 33,600 |
|
|||
|
Sect 23-T12N-R4W Qtr SW |
ZEDNA ANN 5TH ADD
Block
003
Lot
029
|
|||
| Full Legal Description: ZEDNA ANN 5TH ADD 003 029 |
| Photo & Sketch (if available) | Comp Sales (ordered by relevancy) |
|
||||||||||||||||||
|
||||||||||||||||||||
| Value History (*The County Treasurer 405-713-1300 posts & collects actual tax amounts. Contact information HERE) | |||||||||||||
|---|---|---|---|---|---|---|---|---|---|---|---|---|---|
| Year | Market Value | Taxable Mkt Value | Gross Assessed | Exemption | Net Assessed | Millage | Est. Tax | Tax Savings | |||||
|
2025 |
135,500 |
115,245 |
12,676 |
0 |
12,676 |
122.90 |
$1,558 |
$274 |
|||||
|
2024 |
135,000 |
109,758 |
12,072 |
0 |
12,072 |
123.89 |
$1,496 |
$344 |
|||||
|
2023 |
128,500 |
104,532 |
11,498 |
0 |
11,498 |
122.82 |
$1,412 |
$324 |
|||||
|
2022 |
112,500 |
99,555 |
10,950 |
0 |
10,950 |
117.63 |
$1,288 |
$167 |
|||||
|
2021 |
98,000 |
94,815 |
10,429 |
0 |
10,429 |
117.70 |
$1,228 |
$41 |
|||||
| Property Account Status/Adjustments/Exemptions | ||
|---|---|---|
| Account # | Exemption Description | Amount |
|
R115011505 |
5% Capped Account |
0 |
| Property Deed Transaction History (Recorded in the County Clerk's Office) | |||||||
|---|---|---|---|---|---|---|---|
| Date | Type | Book | Page | Price | Grantor | Grantee | |
|
6/1/1978 |
|
Historical |
$0 |
|
CREEKMORE AERIC W & ROBIN M |
||
| Last Mailed Notice of Value (N.O.V.) Information/History | ||||||||
|---|---|---|---|---|---|---|---|---|
| Year | Date | Market Value | Taxable Market Value | Gross Assessed | Exemption | Net Assessed | ||
|
2026 |
02/23/2026 |
137,500 |
121,007 |
13,309 |
0 |
13,309 |
||
|
2025 |
02/14/2025 |
135,500 |
115,245 |
12,676 |
0 |
12,676 |
||
|
2024 |
02/13/2024 |
135,000 |
109,758 |
12,072 |
0 |
12,072 |
||
|
2023 |
02/14/2023 |
128,500 |
104,532 |
11,498 |
0 |
11,498 |
||
|
2022 |
03/15/2022 |
112,500 |
99,555 |
10,950 |
0 |
10,950 |
||
| Property Building Permit History | |||||||||||
|---|---|---|---|---|---|---|---|---|---|---|---|
| Issued | Permit # | Provided by | Bldg # | Description | Est Construction Cost | Status | |||||
| No Building Permit records returned. | |||||||||||
| Click button on building number to access detailed information: | ||||||
|---|---|---|---|---|---|---|
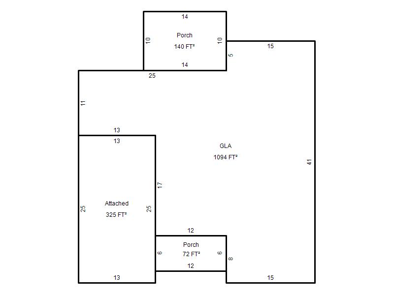
| Bldg # | Vacant/Improved Land | Bldg Description | Year Built | SqFt | # Stories | |
|
1 |
Improved |
Ranch 1 Story |
1955 |
1,094 |
1 Stories |
|