|
|
|
| Larry Stein Oklahoma County Assessor (405) 713-1200 - Public Access System |
|
|
|
|
|
|
| Real Property Display - Screen Produced 4/29/2026 4:29:14 AM | ||||
|---|---|---|---|---|
| Account: R115011535 | Type: Residential | Location: |
4116 NW 30TH ST |
|
| Building Name/Occupant: |
|
OKLAHOMA CITY |
||
| Owner Name 1: | BIRD MARIANNE REV TRUST |
Parcel PIN#: |
2891-11-501-1535 |
|
| Owner Name 2: | 1/4 section #: |
2891 |
||
| Owner Name 3: | Parent Acct: |
|
||
| Billing Address: | 4116 NW 30TH ST | Tax District: |
|
|
| City, State, Zip | OKLAHOMA CITY, OK 73112-3102 | School System: |
Oklahoma City #89 |
|
|
Country: (If noted) |
Land Size: |
0.1597 Acres |
||
|
Land Value: 27,820 |
|
|||
|
Sect 23-T12N-R4W Qtr SW |
ZEDNA ANN 5TH ADD
Block
004
Lot
001
|
|||
| Full Legal Description: ZEDNA ANN 5TH ADD 004 001 |
| Value History (*The County Treasurer 405-713-1300 posts & collects actual tax amounts. Contact information HERE) | |||||||||||||
|---|---|---|---|---|---|---|---|---|---|---|---|---|---|
| Year | Market Value | Taxable Mkt Value | Gross Assessed | Exemption | Net Assessed | Millage | Est. Tax | Tax Savings | |||||
|
2026 |
154,500 |
154,500 |
16,995 |
1,000 |
15,995 |
122.90 |
$1,966 |
$123 |
|||||
|
2025 |
155,500 |
155,500 |
17,105 |
1,000 |
16,105 |
122.90 |
$1,979 |
$123 |
|||||
|
2024 |
154,500 |
106,405 |
11,703 |
1,000 |
10,703 |
123.89 |
$1,326 |
$779 |
|||||
| Property Account Status/Adjustments/Exemptions | ||
|---|---|---|
| Account # | Exemption Description | Amount |
|
R115011535 |
3% Cap Homestead |
0 |
|
R115011535 |
Freeze Senior Valuation |
0 |
|
R115011535 |
Homestead |
1,000 |
| Property Deed Transaction History (Recorded in the County Clerk's Office) | ||||||||||
|---|---|---|---|---|---|---|---|---|---|---|
| Date | Type | Book | Page | Price | Grantor | Grantee | ||||
|
1/13/2026 |
|
Deeds |
$0 |
BIRD MARIANNE & DAVID C |
BIRD MARIANNE REV TRUST |
|||||
|
8/30/2024 |
|
Deeds |
$160,000 |
CLASEY TOMMY E |
BIRD MARIANNE & DAVID C |
|||||
|
4/30/1998 |
|
Historical |
$56,000 |
WILSON RUTH A |
CLASEY TOMMY E |
|||||
| Last Mailed Notice of Value (N.O.V.) Information/History | ||||||||
|---|---|---|---|---|---|---|---|---|
| Year | Date | Market Value | Taxable Market Value | Gross Assessed | Exemption | Net Assessed | ||
|
2025 |
02/14/2025 |
155,500 |
155,500 |
17,105 |
0 |
17,105 |
||
|
2024 |
02/13/2024 |
154,500 |
106,405 |
11,703 |
1,000 |
10,703 |
||
|
2023 |
02/14/2023 |
146,500 |
103,306 |
11,362 |
1,000 |
10,362 |
||
| Property Building Permit History | |||||||||||
|---|---|---|---|---|---|---|---|---|---|---|---|
| Issued | Permit # | Provided by | Bldg # | Description | Est Construction Cost | Status | |||||
| No Building Permit records returned. | |||||||||||
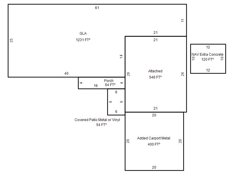
| Click button below to access detailed information and additional property photos: | ||||||
|---|---|---|---|---|---|---|
| Bldg # | Vacant/Improved Land | Bldg Description | Year Built | SqFt | # Stories | |
|
1 |
Improved |
Ranch 1 Story |
1959 |
1,231 |
1 Stories |
|