|
|
|
| Larry Stein Oklahoma County Assessor (405) 713-1200 - Public Access System |
|
|
|
|
|
|
| Real Property Display - Screen Produced 4/29/2026 4:27:35 AM | ||||
|---|---|---|---|---|
| Account: R115011615 | Type: Residential | Location: |
3005 N TULSA DR |
|
| Building Name/Occupant: |
|
OKLAHOMA CITY |
||
| Owner Name 1: | CARTEK PROPERTIES |
Parcel PIN#: |
2891-11-501-1615 |
|
| Owner Name 2: | 1/4 section #: |
2891 |
||
| Owner Name 3: | Parent Acct: |
|
||
| Billing Address: | 5391 MOONLIGHT WAY | Tax District: |
|
|
| City, State, Zip | PARKER, CO 80134-4535 | School System: |
Oklahoma City #89 |
|
|
Country: (If noted) |
Land Size: |
0.1641 Acres |
||
|
Land Value: 28,600 |
|
|||
|
Sect 23-T12N-R4W Qtr SW |
ZEDNA ANN 5TH ADD
Block
004
Lot
009
|
|||
| Full Legal Description: ZEDNA ANN 5TH ADD 004 009 |
| Value History (*The County Treasurer 405-713-1300 posts & collects actual tax amounts. Contact information HERE) | |||||||||||||
|---|---|---|---|---|---|---|---|---|---|---|---|---|---|
| Year | Market Value | Taxable Mkt Value | Gross Assessed | Exemption | Net Assessed | Millage | Est. Tax | Tax Savings | |||||
|
2026 |
157,000 |
142,521 |
15,676 |
0 |
15,676 |
122.90 |
$1,927 |
$196 |
|||||
|
2025 |
157,500 |
135,735 |
14,929 |
0 |
14,929 |
122.90 |
$1,835 |
$294 |
|||||
|
2024 |
156,000 |
129,272 |
14,219 |
0 |
14,219 |
123.89 |
$1,762 |
$364 |
|||||
| Property Account Status/Adjustments/Exemptions | ||
|---|---|---|
| Account # | Exemption Description | Amount |
|
R115011615 |
5% Capped Account |
0 |
| Property Deed Transaction History (Recorded in the County Clerk's Office) | ||||||||||
|---|---|---|---|---|---|---|---|---|---|---|
| Date | Type | Book | Page | Price | Grantor | Grantee | ||||
|
3/6/2006 |
|
Other |
$0 |
GRACE KAY F |
CARTEK PROPERTIES |
|||||
|
6/1/1994 |
|
Historical |
$55,000 |
JEDLICKA SUZANNE M |
GRACE KAY F |
|||||
|
6/1/1992 |
|
Historical |
$50,000 |
PIPKIN PATRICK & BRANDI |
JEDLICKA SUZANNE M |
|||||
| Last Mailed Notice of Value (N.O.V.) Information/History | ||||||||
|---|---|---|---|---|---|---|---|---|
| Year | Date | Market Value | Taxable Market Value | Gross Assessed | Exemption | Net Assessed | ||
|
2026 |
02/23/2026 |
157,000 |
142,521 |
15,676 |
0 |
15,676 |
||
|
2025 |
02/14/2025 |
157,500 |
135,735 |
14,929 |
0 |
14,929 |
||
|
2024 |
02/13/2024 |
156,000 |
129,272 |
14,219 |
0 |
14,219 |
||
| Property Building Permit History | |||||||||||
|---|---|---|---|---|---|---|---|---|---|---|---|
| Issued | Permit # | Provided by | Bldg # | Description | Est Construction Cost | Status | |||||
| No Building Permit records returned. | |||||||||||
| Click button below to access detailed information and additional property photos: | ||||||
|---|---|---|---|---|---|---|
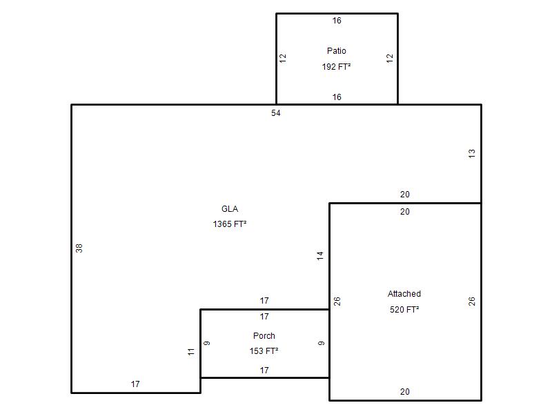
| Bldg # | Vacant/Improved Land | Bldg Description | Year Built | SqFt | # Stories | |
|
1 |
Improved |
Ranch 1 Story |
1956 |
1,365 |
1 Stories |
|