|
|
|
| Larry Stein Oklahoma County Assessor (405) 713-1200 - Public Access System |
|
|
|
|
|
|
| Real Property Display - Screen Produced 4/29/2026 4:28:21 AM | ||||
|---|---|---|---|---|
| Account: R115011855 | Type: Residential | Location: |
2932 N UTAH AVE |
|
| Building Name/Occupant: |
|
OKLAHOMA CITY |
||
| Owner Name 1: | LOZANO LILIANA |
Parcel PIN#: |
2891-11-501-1855 |
|
| Owner Name 2: | 1/4 section #: |
2891 |
||
| Owner Name 3: | Parent Acct: |
|
||
| Billing Address: | 107 S COUNTY LINE AVE | Tax District: |
|
|
| City, State, Zip | BLANCHARD, OK 73010 | School System: |
Oklahoma City #89 |
|
|
Country: (If noted) |
UNITED STATES |
Land Size: |
0.1597 Acres |
|
|
Land Value: 27,820 |
|
|||
|
Sect 23-T12N-R4W Qtr SW |
ZEDNA ANN 5TH ADD
Block
005
Lot
016
|
|||
| Full Legal Description: ZEDNA ANN 5TH ADD 005 016 |
| Value History (*The County Treasurer 405-713-1300 posts & collects actual tax amounts. Contact information HERE) | |||||||||||||
|---|---|---|---|---|---|---|---|---|---|---|---|---|---|
| Year | Market Value | Taxable Mkt Value | Gross Assessed | Exemption | Net Assessed | Millage | Est. Tax | Tax Savings | |||||
|
2026 |
116,500 |
100,984 |
11,107 |
0 |
11,107 |
122.90 |
$1,365 |
$210 |
|||||
|
2025 |
115,000 |
96,176 |
10,578 |
0 |
10,578 |
122.90 |
$1,300 |
$254 |
|||||
|
2024 |
113,500 |
91,597 |
10,074 |
0 |
10,074 |
123.89 |
$1,248 |
$298 |
|||||
| Property Account Status/Adjustments/Exemptions | ||
|---|---|---|
| Account # | Exemption Description | Amount |
|
R115011855 |
5% Capped Account |
0 |
| Property Deed Transaction History (Recorded in the County Clerk's Office) | ||||||||||
|---|---|---|---|---|---|---|---|---|---|---|
| Date | Type | Book | Page | Price | Grantor | Grantee | ||||
|
3/26/2008 |
|
Deeds |
$65,000 |
LASELLE BANK NA TRS |
LOZANO LILIANA |
|||||
|
12/28/2007 |
|
Hmstd Off & |
$0 |
MABERY RHONDA L |
LASELLE BANK NA TRS |
|||||
|
3/14/2006 |
|
Deeds |
$76,500 |
TATUM TERRY |
MABERY RHONDA L |
|||||
| Last Mailed Notice of Value (N.O.V.) Information/History | ||||||||
|---|---|---|---|---|---|---|---|---|
| Year | Date | Market Value | Taxable Market Value | Gross Assessed | Exemption | Net Assessed | ||
|
2026 |
02/23/2026 |
116,500 |
100,984 |
11,107 |
0 |
11,107 |
||
|
2025 |
02/14/2025 |
115,000 |
96,176 |
10,578 |
0 |
10,578 |
||
|
2024 |
02/13/2024 |
113,500 |
91,597 |
10,074 |
0 |
10,074 |
||
| Property Building Permit History | |||||||||||
|---|---|---|---|---|---|---|---|---|---|---|---|
| Issued | Permit # | Provided by | Bldg # | Description | Est Construction Cost | Status | |||||
| No Building Permit records returned. | |||||||||||
| Click button below to access detailed information and additional property photos: | ||||||
|---|---|---|---|---|---|---|
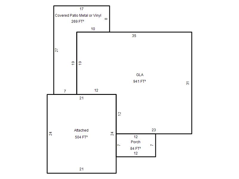
| Bldg # | Vacant/Improved Land | Bldg Description | Year Built | SqFt | # Stories | |
|
1 |
Improved |
Ranch 1 Story |
1955 |
941 |
1 Stories |
|