|
|
|
| Larry Stein Oklahoma County Assessor (405) 713-1200 - Public Access System |
|
|
|
|
|
|
| Real Property Display - Screen Produced 2/27/2026 10:22:36 AM | ||||
|---|---|---|---|---|
| Account: R144931005 | Type: Residential | Location: |
4128 NW 31ST ST |
|
| Building Name/Occupant: |
|
OKLAHOMA CITY |
||
| Owner Name 1: | FINE RONALD E JR ETAL |
Parcel PIN#: |
2892-14-493-1005 |
|
| Owner Name 2: | FINE REBECCA RUTH | 1/4 section #: |
2892 |
|
| Owner Name 3: | FINE JUDITH ELLEN | Parent Acct: |
|
|
| Billing Address: | 1137 N MCMILLAN AVE | Tax District: |
|
|
| City, State, Zip | OKLAHOMA CITY, OK 73127 | School System: |
Oklahoma City #89 |
|
|
Country: (If noted) |
Land Size: |
0.2066 Acres |
||
|
Land Value: 52,650 |
|
|||
|
Sect 23-T12N-R4W Qtr NW |
HARRY REEDERS TALK OF THE TOWN
Block
001
Lot
001
|
|||
| Full Legal Description: HARRY REEDERS TALK OF THE TOWN 001 001 |
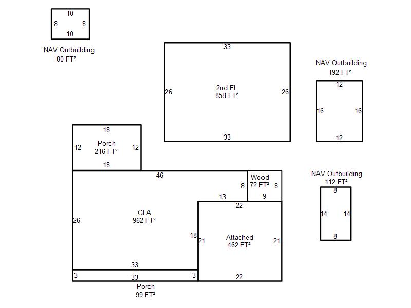
| Photo & Sketch (if available) | Comp Sales (ordered by relevancy) |
|
||||||||||||||||||
|
||||||||||||||||||||
| Value History (*The County Treasurer 405-713-1300 posts & collects actual tax amounts. Contact information HERE) | |||||||||||||
|---|---|---|---|---|---|---|---|---|---|---|---|---|---|
| Year | Market Value | Taxable Mkt Value | Gross Assessed | Exemption | Net Assessed | Millage | Est. Tax | Tax Savings | |||||
|
2025 |
205,500 |
176,763 |
19,443 |
0 |
19,443 |
122.90 |
$2,390 |
$388 |
|||||
|
2024 |
203,000 |
168,346 |
18,517 |
0 |
18,517 |
123.89 |
$2,294 |
$472 |
|||||
|
2023 |
191,000 |
160,330 |
17,635 |
0 |
17,635 |
122.82 |
$2,166 |
$414 |
|||||
|
2022 |
168,000 |
152,696 |
16,795 |
0 |
16,795 |
117.63 |
$1,976 |
$198 |
|||||
|
2021 |
146,500 |
145,425 |
15,996 |
0 |
15,996 |
117.70 |
$1,883 |
$14 |
|||||
| Property Account Status/Adjustments/Exemptions | ||
|---|---|---|
| Account # | Exemption Description | Amount |
|
R144931005 |
5% Capped Account |
0 |
| Property Deed Transaction History (Recorded in the County Clerk's Office) | |||||||
|---|---|---|---|---|---|---|---|
| Date | Type | Book | Page | Price | Grantor | Grantee | |
|
9/18/2024 |
|
Hmstd Off & |
$0 |
FINE RICHARD ARLIE EST |
JOHNSON JENNIFER ETAL |
||
|
4/29/2024 |
|
Hmstd Off & |
$0 |
FINE SHIRLEY F |
FINE RONALD E JR ETAL |
||
|
12/1/1979 |
|
Historical |
$0 |
|
FINE SHIRLEY F |
||
| Last Mailed Notice of Value (N.O.V.) Information/History | ||||||||
|---|---|---|---|---|---|---|---|---|
| Year | Date | Market Value | Taxable Market Value | Gross Assessed | Exemption | Net Assessed | ||
|
2026 |
02/23/2026 |
204,500 |
185,601 |
20,415 |
0 |
20,415 |
||
|
2025 |
02/14/2025 |
205,500 |
176,763 |
19,443 |
0 |
19,443 |
||
|
2024 |
02/13/2024 |
203,000 |
168,346 |
18,517 |
0 |
18,517 |
||
|
2023 |
02/14/2023 |
191,000 |
160,330 |
17,635 |
0 |
17,635 |
||
|
2022 |
03/15/2022 |
168,000 |
152,696 |
16,795 |
0 |
16,795 |
||
| Property Building Permit History | |||||||||||
|---|---|---|---|---|---|---|---|---|---|---|---|
| Issued | Permit # | Provided by | Bldg # | Description | Est Construction Cost | Status | |||||
| No Building Permit records returned. | |||||||||||
| Click button on building number to access detailed information: | ||||||
|---|---|---|---|---|---|---|
| Bldg # | Vacant/Improved Land | Bldg Description | Year Built | SqFt | # Stories | |
|
1 |
Improved |
2 Story |
1962 |
1,820 |
2 Stories |
|