|
|
|
| Larry Stein Oklahoma County Assessor (405) 713-1200 - Public Access System |
|
|
|
|
|
|
| Real Property Display - Screen Produced 4/29/2026 1:03:46 AM | ||||
|---|---|---|---|---|
| Account: R144931215 | Type: Residential | Location: |
4113 NW 31ST ST |
|
| Building Name/Occupant: |
|
OKLAHOMA CITY |
||
| Owner Name 1: | FARRELL ROBERT E & CONNIE F |
Parcel PIN#: |
2892-14-493-1215 |
|
| Owner Name 2: | 1/4 section #: |
2892 |
||
| Owner Name 3: | Parent Acct: |
|
||
| Billing Address: | 11820 SW 26TH TER | Tax District: |
|
|
| City, State, Zip | YUKON, OK 73099-4702 | School System: |
Oklahoma City #89 |
|
|
Country: (If noted) |
Land Size: |
0.1791 Acres |
||
|
Land Value: 45,630 |
|
|||
|
Sect 23-T12N-R4W Qtr NW |
HARRY REEDERS TALK OF THE TOWN
Block
002
Lot
000
|
|||
| Full Legal Description: HARRY REEDERS TALK OF THE TOWN 002 000 E5FT LOT 3 & W60FT LOT 4 |
| Value History (*The County Treasurer 405-713-1300 posts & collects actual tax amounts. Contact information HERE) | |||||||||||||
|---|---|---|---|---|---|---|---|---|---|---|---|---|---|
| Year | Market Value | Taxable Mkt Value | Gross Assessed | Exemption | Net Assessed | Millage | Est. Tax | Tax Savings | |||||
|
2026 |
208,000 |
191,630 |
21,078 |
0 |
21,078 |
122.90 |
$2,591 |
$221 |
|||||
|
2025 |
209,500 |
182,505 |
20,074 |
0 |
20,074 |
122.90 |
$2,467 |
$365 |
|||||
|
2024 |
205,500 |
173,815 |
19,119 |
0 |
19,119 |
123.89 |
$2,369 |
$432 |
|||||
| Property Account Status/Adjustments/Exemptions | ||
|---|---|---|
| Account # | Exemption Description | Amount |
|
R144931215 |
5% Capped Account |
0 |
| Property Deed Transaction History (Recorded in the County Clerk's Office) | ||||||||||
|---|---|---|---|---|---|---|---|---|---|---|
| Date | Type | Book | Page | Price | Grantor | Grantee | ||||
|
12/13/1994 |
|
Historical |
$80,000 |
GAINES LOUISE B |
FARRELL ROBERT E & CONNIE F |
|||||
|
4/26/1994 |
|
Historical |
$55,000 |
HARRIS KAREN R |
GAINES LOUISE B |
|||||
|
3/29/1994 |
|
Historical |
$0 |
ALLEN BILLIE MARIE |
HARRIS KAREN R |
|||||
| Last Mailed Notice of Value (N.O.V.) Information/History | ||||||||
|---|---|---|---|---|---|---|---|---|
| Year | Date | Market Value | Taxable Market Value | Gross Assessed | Exemption | Net Assessed | ||
|
2026 |
02/23/2026 |
208,000 |
191,630 |
21,078 |
0 |
21,078 |
||
|
2025 |
02/14/2025 |
209,500 |
182,505 |
20,074 |
0 |
20,074 |
||
|
2024 |
02/13/2024 |
205,500 |
173,815 |
19,119 |
0 |
19,119 |
||
| Property Building Permit History | |||||||||||
|---|---|---|---|---|---|---|---|---|---|---|---|
| Issued | Permit # | Provided by | Bldg # | Description | Est Construction Cost | Status | |||||
| No Building Permit records returned. | |||||||||||
| Click button below to access detailed information and additional property photos: | ||||||
|---|---|---|---|---|---|---|
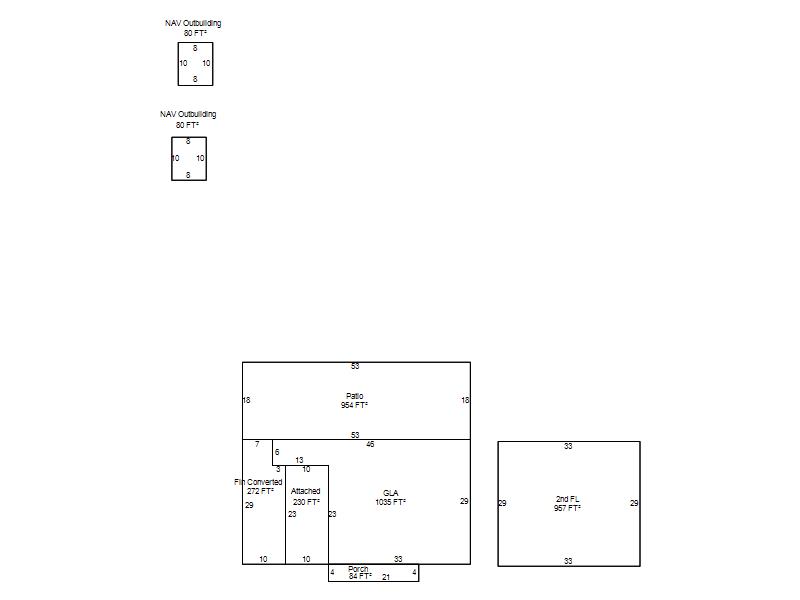
| Bldg # | Vacant/Improved Land | Bldg Description | Year Built | SqFt | # Stories | |
|
1 |
Improved |
2 Story |
1961 |
1,992 |
2 Stories |
|