|
|
|
| Larry Stein Oklahoma County Assessor (405) 713-1200 - Public Access System |
|
|
|
|
|
|
| Real Property Display - Screen Produced 2/27/2026 12:00:40 PM | ||||
|---|---|---|---|---|
| Account: R144931255 | Type: Residential | Location: |
3209 N TULSA AVE |
|
| Building Name/Occupant: |
|
OKLAHOMA CITY |
||
| Owner Name 1: | THOMPSON DIANNE K |
Parcel PIN#: |
2892-14-493-1255 |
|
| Owner Name 2: | 1/4 section #: |
2892 |
||
| Owner Name 3: | Parent Acct: |
|
||
| Billing Address: | 3209 N TULSA AVE | Tax District: |
|
|
| City, State, Zip | OKLAHOMA CITY, OK 73112-3149 | School System: |
Oklahoma City #89 |
|
|
Country: (If noted) |
Land Size: |
0.2893 Acres |
||
|
Land Value: 66,339 |
|
|||
|
Sect 23-T12N-R4W Qtr NW |
HARRY REEDERS TALK OF THE TOWN
Block
002
Lot
008
|
|||
| Full Legal Description: HARRY REEDERS TALK OF THE TOWN 002 008 |
| Photo & Sketch (if available) | Comp Sales (ordered by relevancy) |
|
||||||||||||||||||
|
||||||||||||||||||||
| Value History (*The County Treasurer 405-713-1300 posts & collects actual tax amounts. Contact information HERE) | |||||||||||||
|---|---|---|---|---|---|---|---|---|---|---|---|---|---|
| Year | Market Value | Taxable Mkt Value | Gross Assessed | Exemption | Net Assessed | Millage | Est. Tax | Tax Savings | |||||
|
2025 |
185,500 |
147,123 |
16,182 |
0 |
16,182 |
122.90 |
$1,989 |
$519 |
|||||
|
2024 |
183,500 |
140,118 |
15,412 |
0 |
15,412 |
123.89 |
$1,910 |
$591 |
|||||
|
2023 |
172,000 |
133,446 |
14,679 |
0 |
14,679 |
122.82 |
$1,803 |
$521 |
|||||
|
2022 |
150,500 |
127,092 |
13,979 |
0 |
13,979 |
117.63 |
$1,644 |
$303 |
|||||
|
2021 |
131,000 |
121,040 |
13,314 |
0 |
13,314 |
117.70 |
$1,567 |
$129 |
|||||
| Property Account Status/Adjustments/Exemptions | ||
|---|---|---|
| Account # | Exemption Description | Amount |
|
R144931255 |
5% Capped Account |
0 |
| Property Deed Transaction History (Recorded in the County Clerk's Office) | |||||||
|---|---|---|---|---|---|---|---|
| Date | Type | Book | Page | Price | Grantor | Grantee | |
|
4/1/1980 |
|
Historical |
$0 |
|
THOMPSON DIANNE K |
||
| Last Mailed Notice of Value (N.O.V.) Information/History | ||||||||
|---|---|---|---|---|---|---|---|---|
| Year | Date | Market Value | Taxable Market Value | Gross Assessed | Exemption | Net Assessed | ||
|
2026 |
02/23/2026 |
184,500 |
154,479 |
16,992 |
0 |
16,992 |
||
|
2025 |
02/14/2025 |
185,500 |
147,123 |
16,182 |
0 |
16,182 |
||
|
2024 |
02/13/2024 |
183,500 |
140,118 |
15,412 |
0 |
15,412 |
||
|
2023 |
02/14/2023 |
172,000 |
133,446 |
14,679 |
0 |
14,679 |
||
|
2022 |
03/15/2022 |
150,500 |
127,092 |
13,979 |
0 |
13,979 |
||
| Property Building Permit History | |||||||||||
|---|---|---|---|---|---|---|---|---|---|---|---|
| Issued | Permit # | Provided by | Bldg # | Description | Est Construction Cost | Status | |||||
| No Building Permit records returned. | |||||||||||
| Click button on building number to access detailed information: | ||||||
|---|---|---|---|---|---|---|
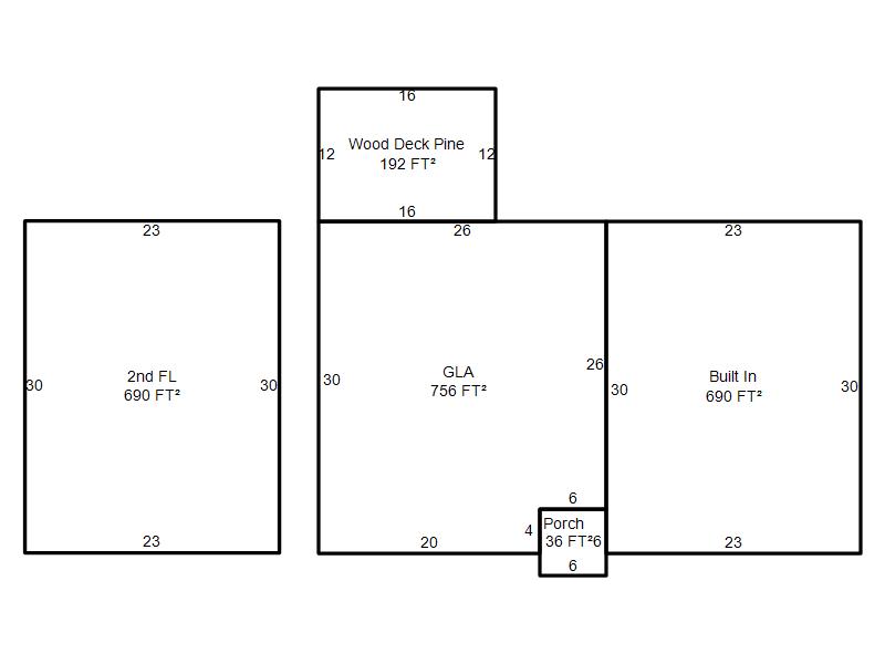
| Bldg # | Vacant/Improved Land | Bldg Description | Year Built | SqFt | # Stories | |
|
1 |
Improved |
2 Story |
1961 |
1,446 |
2 Stories |
|