|
|
|
| Larry Stein Oklahoma County Assessor (405) 713-1200 - Public Access System |
|
|
|
|
|
|
| Real Property Display - Screen Produced 2/27/2026 10:22:36 AM | ||||
|---|---|---|---|---|
| Account: R144931355 | Type: Residential | Location: |
4101 NW 31ST TER |
|
| Building Name/Occupant: |
|
OKLAHOMA CITY |
||
| Owner Name 1: | HAWKINSON BRENT L & TERESA L |
Parcel PIN#: |
2892-14-493-1355 |
|
| Owner Name 2: | 1/4 section #: |
2892 |
||
| Owner Name 3: | Parent Acct: |
|
||
| Billing Address: | 4101 NW 31ST TER | Tax District: |
|
|
| City, State, Zip | OKLAHOMA CITY, OK 73112-3142 | School System: |
Oklahoma City #89 |
|
|
Country: (If noted) |
Land Size: |
0.2507 Acres |
||
|
Land Value: 49,600 |
|
|||
|
Sect 23-T12N-R4W Qtr NW |
HARRY REEDERS TALK OF THE TOWN
Block
003
Lot
003
|
|||
| Full Legal Description: HARRY REEDERS TALK OF THE TOWN 003 003 |
| Photo & Sketch (if available) | Comp Sales (ordered by relevancy) |
|
||||||||||||||||||
|
||||||||||||||||||||
| Value History (*The County Treasurer 405-713-1300 posts & collects actual tax amounts. Contact information HERE) | |||||||||||||
|---|---|---|---|---|---|---|---|---|---|---|---|---|---|
| Year | Market Value | Taxable Mkt Value | Gross Assessed | Exemption | Net Assessed | Millage | Est. Tax | Tax Savings | |||||
|
2025 |
218,000 |
165,558 |
18,210 |
1,000 |
17,210 |
122.90 |
$2,115 |
$832 |
|||||
|
2024 |
216,500 |
160,736 |
17,680 |
1,000 |
16,680 |
123.89 |
$2,067 |
$884 |
|||||
|
2023 |
203,000 |
156,055 |
17,165 |
1,000 |
16,165 |
122.82 |
$1,986 |
$757 |
|||||
|
2022 |
180,000 |
151,510 |
16,665 |
1,000 |
15,665 |
117.63 |
$1,843 |
$486 |
|||||
|
2021 |
157,500 |
147,098 |
16,180 |
1,000 |
15,180 |
117.70 |
$1,787 |
$252 |
|||||
| Property Account Status/Adjustments/Exemptions | ||
|---|---|---|
| Account # | Exemption Description | Amount |
|
R144931355 |
3% Cap Homestead |
0 |
|
R144931355 |
Homestead |
1,000 |
| Property Deed Transaction History (Recorded in the County Clerk's Office) | |||||||
|---|---|---|---|---|---|---|---|
| Date | Type | Book | Page | Price | Grantor | Grantee | |
|
3/16/1998 |
|
Historical |
$0 |
DAVIS ROBERT L & JEAN A CO TRS |
HAWKINSON BRENT L & TERESA L |
||
|
1/22/1998 |
|
Historical |
$0 |
DAVIS ROBERT L & JEAN ALICE |
DAVIS ROBERT L & JEAN A CO TRS |
||
|
11/11/1911 |
|
Historical |
$0 |
|
DAVIS ROBERT L & JEAN ALICE |
||
| Last Mailed Notice of Value (N.O.V.) Information/History | ||||||||
|---|---|---|---|---|---|---|---|---|
| Year | Date | Market Value | Taxable Market Value | Gross Assessed | Exemption | Net Assessed | ||
|
2026 |
02/23/2026 |
216,500 |
170,524 |
18,757 |
1,000 |
17,757 |
||
|
2025 |
02/14/2025 |
218,000 |
165,558 |
18,210 |
1,000 |
17,210 |
||
|
2024 |
02/13/2024 |
216,500 |
160,736 |
17,680 |
1,000 |
16,680 |
||
|
2023 |
02/14/2023 |
203,000 |
156,055 |
17,165 |
1,000 |
16,165 |
||
|
2022 |
03/15/2022 |
180,000 |
151,510 |
16,665 |
1,000 |
15,665 |
||
| Property Building Permit History | |||||||||||
|---|---|---|---|---|---|---|---|---|---|---|---|
| Issued | Permit # | Provided by | Bldg # | Description | Est Construction Cost | Status | |||||
| No Building Permit records returned. | |||||||||||
| Click button on building number to access detailed information: | ||||||
|---|---|---|---|---|---|---|
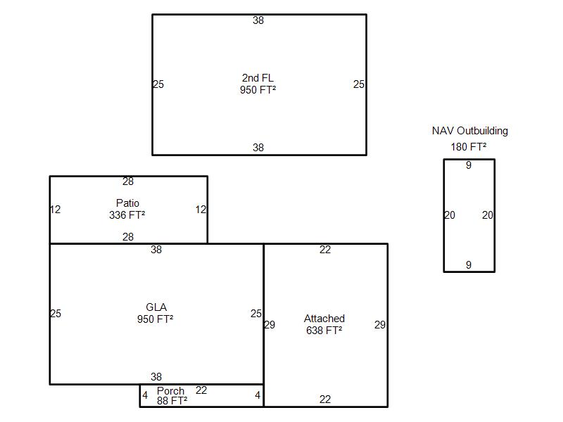
| Bldg # | Vacant/Improved Land | Bldg Description | Year Built | SqFt | # Stories | |
|
1 |
Improved |
2 Story |
1964 |
1,900 |
2 Stories |
|