Larry Stein Oklahoma County Assessor (405) 713-1200 - Public Access System
Home Contact Us Guest Book Map Search New Search
Real Property Display - Screen Produced   4/29/2026 1:02:55 AM 
Account: R144932135  Type: Residential

  

Location:

3601 N TULSA AVE

Building Name/Occupant:

 

OKLAHOMA CITY

Owner Name 1:  NIX JERI

Parcel PIN#:

2892-14-493-2135

Owner Name 2:    1/4 section #:

2892

Owner Name 3:    Parent Acct:

 

Billing Address:  3601 N TULSA AVE Tax District:

City, State, Zip  OKLAHOMA CITY, OK  73112-3155 School System:

Oklahoma City #89

Country: (If noted)

  

Land Size:

0.1385  Acres

Personal Property

Land Value: 35,305 

Treasurer:

Sect 23-T12N-R4W Qtr NW

 HARRY REEDERS TALK OF THE TOWN   Block 008  Lot 013   Subdivision Sales
 Full Legal Description:  HARRY REEDERS TALK OF THE TOWN 008 013

NOTE:  The following sales may or may not be used to determine Fair Market Value

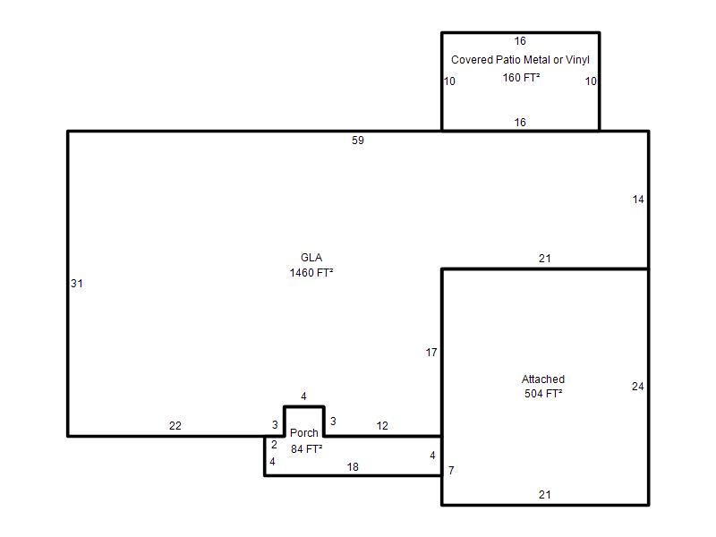
Photo & Sketch (if available) Sales  Sales Report

 3144 N GERALDINE AVE OKLAHOMA CITY, OK

08/22/2025

 $130,000 

 3608 N UTAH AVE OKLAHOMA CITY, OK

10/17/2025

 $185,000 

 4205 NW 31ST ST OKLAHOMA CITY, OK

01/16/2025

 $170,000 

 4216 NW 33RD ST OKLAHOMA CITY, OK

08/28/2025

 $195,000 

 4209 NW 31ST TER OKLAHOMA CITY, OK

07/16/2025

 $185,000 

 4105 NW 31ST ST OKLAHOMA CITY, OK

08/10/2022

 $178,500 

Value History  (*The County Treasurer 405-713-1300 posts & collects actual tax amounts.  Contact information  HERE)
Year Market Value Taxable Mkt Value Gross Assessed Exemption Net Assessed Millage Est. Tax Tax Savings

2026

181,500 

137,075 

15,078 

1,000 

14,078 

122.90 

$1,730 

$723 

2025

183,000 

133,083 

14,638 

1,000 

13,638 

122.90 

$1,676 

$798 

2024

179,000 

129,207 

14,211 

1,000 

13,211 

123.89 

$1,637 

$802 

[1/10]
Property Account Status/Adjustments/Exemptions
Account # Exemption Description Amount

R144932135

3% Cap Homestead

R144932135

Homestead

1,000 

Property Deed Transaction History   (Recorded in the County Clerk's Office)
Date Type Book Page Price Grantor Grantee

3/18/2013

Deeds

12201

294

 $90,000 

HENSLEY DOLA J

NIX JERI

12/27/2006

Deeds

10365

1538

 $0 

HENSLEY J BART & DOLA J

HENSLEY DOLA J

11/11/1911

Historical

0006

0000

 $0 

 

HENSLEY J BART & DOLA J

Last Mailed Notice of Value (N.O.V.) Information/History
Year Date Market Value Taxable Market Value Gross Assessed Exemption Net Assessed

2026

02/23/2026

181,500 

137,075 

15,078 

1,000 

14,078 

2025

02/14/2025

183,000 

133,083 

14,638 

1,000 

13,638 

2024

02/13/2024

179,000 

129,207 

14,211 

1,000 

13,211 

[1/4]
Property Building Permit History
Issued Permit # Provided by Bldg # Description Est Construction Cost Status
No Building Permit records returned.
Click button below to access detailed information and additional property photos:
  Bldg # Vacant/Improved Land Bldg Description Year Built SqFt # Stories

Click

1

Improved

Ranch 1 Story

1965

1,460 

1 Stories