|
|
|
| Larry Stein Oklahoma County Assessor (405) 713-1200 - Public Access System |
|
|
|
|
|
|
| Real Property Display - Screen Produced 2/27/2026 6:24:43 AM | ||||
|---|---|---|---|---|
| Account: R145761095 | Type: Residential | Location: |
3240 N WARREN AVE |
|
| Building Name/Occupant: |
|
OKLAHOMA CITY |
||
| Owner Name 1: | HANNA SHAYLA D & ALEXANDER |
Parcel PIN#: |
2892-14-576-1095 |
|
| Owner Name 2: | 1/4 section #: |
2892 |
||
| Owner Name 3: | Parent Acct: |
|
||
| Billing Address: | 3240 N WARREN | Tax District: |
|
|
| City, State, Zip | OKLAHOMA CITY, OK 73112 | School System: |
Putnam City #1 |
|
|
Country: (If noted) |
Land Size: |
0.3333 Acres |
||
|
Land Value: 30,800 |
|
|||
|
Sect 23-T12N-R4W Qtr NW |
MERIDIAN COURT 2ND
Block
001
Lot
010
|
|||
| Full Legal Description: MERIDIAN COURT 2ND 001 010 |
| Photo & Sketch (if available) | Comp Sales (ordered by relevancy) |
|
||||||||||||||||||
|
||||||||||||||||||||
| Value History (*The County Treasurer 405-713-1300 posts & collects actual tax amounts. Contact information HERE) | |||||||||||||
|---|---|---|---|---|---|---|---|---|---|---|---|---|---|
| Year | Market Value | Taxable Mkt Value | Gross Assessed | Exemption | Net Assessed | Millage | Est. Tax | Tax Savings | |||||
|
2025 |
139,500 |
102,273 |
11,249 |
1,000 |
10,249 |
123.17 |
$1,262 |
$628 |
|||||
|
2024 |
140,000 |
99,295 |
10,922 |
1,000 |
9,922 |
122.30 |
$1,214 |
$670 |
|||||
|
2023 |
129,500 |
96,403 |
10,603 |
1,000 |
9,603 |
121.91 |
$1,171 |
$566 |
|||||
|
2022 |
113,500 |
93,596 |
10,294 |
1,000 |
9,294 |
123.41 |
$1,147 |
$394 |
|||||
|
2021 |
97,000 |
90,870 |
9,995 |
1,000 |
8,995 |
122.23 |
$1,100 |
$205 |
|||||
| Property Account Status/Adjustments/Exemptions | ||
|---|---|---|
| Account # | Exemption Description | Amount |
|
R145761095 |
Homestead |
1,000 |
|
R145761095 |
3% Cap Homestead |
0 |
| Property Deed Transaction History (Recorded in the County Clerk's Office) | ||||||||||
|---|---|---|---|---|---|---|---|---|---|---|
| Date | Type | Book | Page | Price | Grantor | Grantee | ||||
|
4/8/2015 |
|
Deeds |
$0 |
MCCASLAND SHAYLA D |
HANNA SHAYLA D & ALEXANDER |
|||||
|
6/16/2011 |
|
Deeds |
$87,500 |
COKER SARA M |
MCCASLAND SHAYLA D |
|||||
|
5/12/2005 |
|
Deeds |
$84,500 |
GERINGER TRACEY L |
COKER SARA M |
|||||
|
1/4/1999 |
|
Historical |
$48,000 |
HYDE WILLIAM MARK |
GERINGER TRACEY L |
|||||
|
1/1/1998 |
|
Historical |
$0 |
HYDE WILLIAM MARK |
HYDE WILLIAM MARK |
|||||
| Last Mailed Notice of Value (N.O.V.) Information/History | ||||||||
|---|---|---|---|---|---|---|---|---|
| Year | Date | Market Value | Taxable Market Value | Gross Assessed | Exemption | Net Assessed | ||
|
2026 |
02/23/2026 |
136,000 |
105,341 |
11,587 |
1,000 |
10,587 |
||
|
2025 |
02/14/2025 |
139,500 |
102,273 |
11,249 |
1,000 |
10,249 |
||
|
2024 |
02/13/2024 |
140,000 |
99,295 |
10,922 |
1,000 |
9,922 |
||
|
2023 |
02/14/2023 |
129,500 |
96,403 |
10,603 |
1,000 |
9,603 |
||
|
2022 |
03/15/2022 |
113,500 |
93,596 |
10,294 |
1,000 |
9,294 |
||
| Property Building Permit History | ||||||
|---|---|---|---|---|---|---|
| Issued | Permit # | Provided by | Bldg # | Description | Est Construction Cost | Status |
|
3/13/2000 |
10240877 |
OKLAHOMA CITY |
1 |
Other |
2,000 |
Inactive |
| Click button on building number to access detailed information: | ||||||
|---|---|---|---|---|---|---|
| Bldg # | Vacant/Improved Land | Bldg Description | Year Built | SqFt | # Stories | |
|
1 |
Improved |
Ranch 1 Story |
1956 |
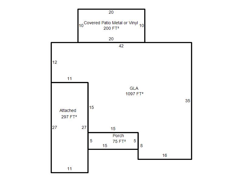
1,097 |
1 Stories |
|