|
|
|
| Larry Stein Oklahoma County Assessor (405) 713-1200 - Public Access System |
|
|
|
|
|
|
| Real Property Display - Screen Produced 2/27/2026 6:23:40 AM | ||||
|---|---|---|---|---|
| Account: R145761275 | Type: Residential | Location: |
4428 NW 32ND ST |
|
| Building Name/Occupant: |
|
OKLAHOMA CITY |
||
| Owner Name 1: | BARRIOS FREDY MEZA |
Parcel PIN#: |
2892-14-576-1275 |
|
| Owner Name 2: | 1/4 section #: |
2892 |
||
| Owner Name 3: | Parent Acct: |
|
||
| Billing Address: | 4428 NW 32ND ST | Tax District: |
|
|
| City, State, Zip | OKLAHOMA CITY, OK 73112-3112 | School System: |
Putnam City #1 |
|
|
Country: (If noted) |
Land Size: |
0.1928 Acres |
||
|
Land Value: 31,920 |
|
|||
|
Sect 23-T12N-R4W Qtr NW |
MERIDIAN COURT 2ND
Block
002
Lot
008
|
|||
| Full Legal Description: MERIDIAN COURT 2ND 002 008 |
| Photo & Sketch (if available) | Comp Sales (ordered by relevancy) |
|
||||||||||||||||||
|
||||||||||||||||||||
| Value History (*The County Treasurer 405-713-1300 posts & collects actual tax amounts. Contact information HERE) | |||||||||||||
|---|---|---|---|---|---|---|---|---|---|---|---|---|---|
| Year | Market Value | Taxable Mkt Value | Gross Assessed | Exemption | Net Assessed | Millage | Est. Tax | Tax Savings | |||||
|
2025 |
167,500 |
167,500 |
18,425 |
0 |
18,425 |
123.17 |
$2,269 |
$0 |
|||||
|
2024 |
132,500 |
103,316 |
11,364 |
0 |
11,364 |
122.30 |
$1,390 |
$393 |
|||||
|
2023 |
121,500 |
98,397 |
10,823 |
0 |
10,823 |
121.91 |
$1,320 |
$310 |
|||||
|
2022 |
106,500 |
93,712 |
10,307 |
0 |
10,307 |
123.41 |
$1,272 |
$174 |
|||||
|
2021 |
90,000 |
89,250 |
9,817 |
0 |
9,817 |
122.23 |
$1,200 |
$10 |
|||||
| Property Account Status/Adjustments/Exemptions | ||
|---|---|---|
| Account # | Exemption Description | Amount |
|
R145761275 |
5% Capped Account |
0 |
| Property Deed Transaction History (Recorded in the County Clerk's Office) | |||||||
|---|---|---|---|---|---|---|---|
| Date | Type | Book | Page | Price | Grantor | Grantee | |
|
7/12/2024 |
|
Deeds |
$170,000 |
BURGE STEVEN & SHARALYN S |
BARRIOS FREDY MEZA |
||
|
6/8/2004 |
|
Deeds |
$0 |
LEE SHARALYN S |
BURGE STEVEN & SHARALYN S |
||
|
5/18/2004 |
|
Deeds |
$0 |
LEE HOWARD R JR & SHARALYN S |
LEE SHARALYN S |
||
|
6/1/1986 |
|
Historical |
$40,000 |
|
LEE HOWARD R JR & SHARALYN S |
||
| Last Mailed Notice of Value (N.O.V.) Information/History | ||||||||
|---|---|---|---|---|---|---|---|---|
| Year | Date | Market Value | Taxable Market Value | Gross Assessed | Exemption | Net Assessed | ||
|
2025 |
02/14/2025 |
167,500 |
167,500 |
18,425 |
0 |
18,425 |
||
|
2024 |
02/13/2024 |
132,500 |
103,316 |
11,364 |
0 |
11,364 |
||
|
2023 |
02/14/2023 |
121,500 |
98,397 |
10,823 |
0 |
10,823 |
||
|
2022 |
03/15/2022 |
106,500 |
93,712 |
10,307 |
0 |
10,307 |
||
|
2021 |
03/19/2021 |
90,000 |
89,250 |
9,817 |
0 |
9,817 |
||
| Property Building Permit History | |||||||||||
|---|---|---|---|---|---|---|---|---|---|---|---|
| Issued | Permit # | Provided by | Bldg # | Description | Est Construction Cost | Status | |||||
| No Building Permit records returned. | |||||||||||
| Click button on building number to access detailed information: | ||||||
|---|---|---|---|---|---|---|
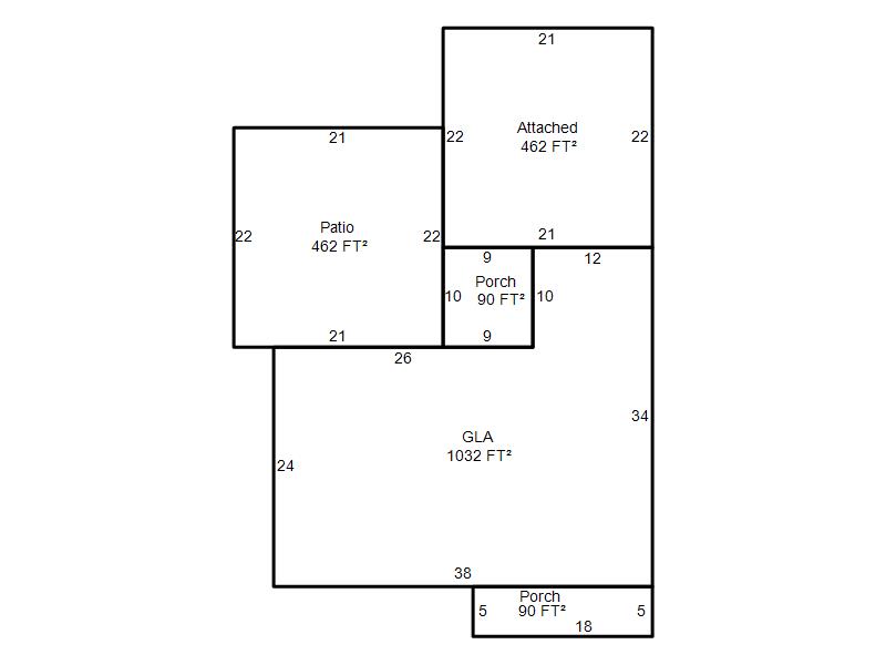
| Bldg # | Vacant/Improved Land | Bldg Description | Year Built | SqFt | # Stories | |
|
1 |
Improved |
Ranch 1 Story |
1956 |
1,032 |
1 Stories |
|