|
|
|
| Larry Stein Oklahoma County Assessor (405) 713-1200 - Public Access System |
|
|
|
|
|
|
| Real Property Display - Screen Produced 2/27/2026 6:22:15 AM | ||||
|---|---|---|---|---|
| Account: R145761285 | Type: Residential | Location: |
4429 NW 31ST ST |
|
| Building Name/Occupant: |
|
OKLAHOMA CITY |
||
| Owner Name 1: | MARTINEZ ENRIQUE & MILDRED J |
Parcel PIN#: |
2892-14-576-1285 |
|
| Owner Name 2: | 1/4 section #: |
2892 |
||
| Owner Name 3: | Parent Acct: |
|
||
| Billing Address: | 5414 PAINTED PONY RD | Tax District: |
|
|
| City, State, Zip | WARR ACRES, OK 73132 | School System: |
Putnam City #1 |
|
|
Country: (If noted) |
Land Size: |
0.1928 Acres |
||
|
Land Value: 31,920 |
|
|||
|
Sect 23-T12N-R4W Qtr NW |
MERIDIAN COURT 2ND
Block
002
Lot
009
|
|||
| Full Legal Description: MERIDIAN COURT 2ND 002 009 |
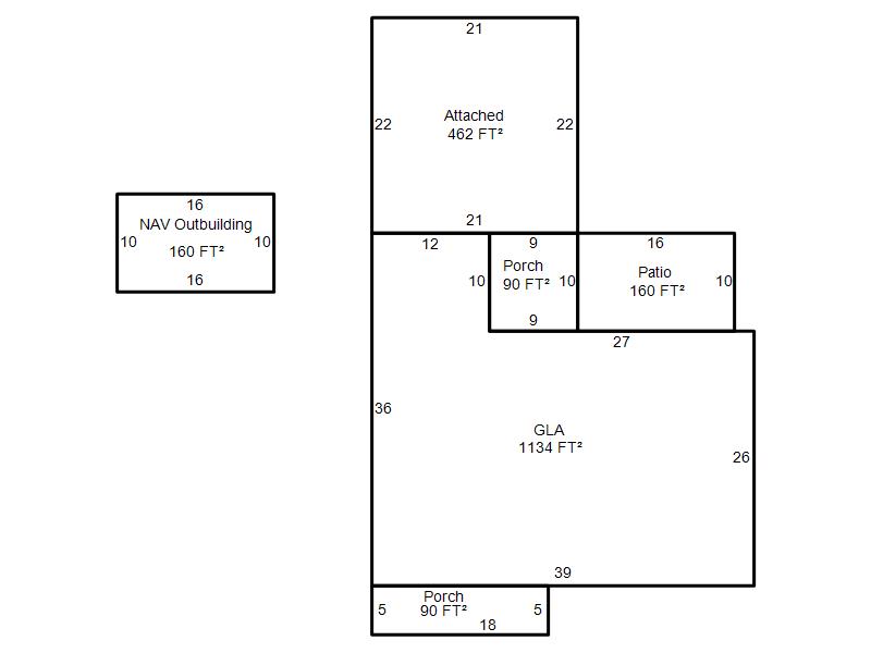
| Photo & Sketch (if available) | Comp Sales (ordered by relevancy) |
|
||||||||||||||||||
|
||||||||||||||||||||
| Value History (*The County Treasurer 405-713-1300 posts & collects actual tax amounts. Contact information HERE) | |||||||||||||
|---|---|---|---|---|---|---|---|---|---|---|---|---|---|
| Year | Market Value | Taxable Mkt Value | Gross Assessed | Exemption | Net Assessed | Millage | Est. Tax | Tax Savings | |||||
|
2025 |
141,000 |
111,032 |
12,212 |
0 |
12,212 |
123.17 |
$1,504 |
$406 |
|||||
|
2024 |
139,500 |
105,745 |
11,631 |
0 |
11,631 |
122.30 |
$1,423 |
$454 |
|||||
|
2023 |
127,500 |
100,710 |
11,077 |
0 |
11,077 |
121.91 |
$1,351 |
$359 |
|||||
|
2022 |
112,000 |
95,915 |
10,549 |
0 |
10,549 |
123.41 |
$1,302 |
$218 |
|||||
|
2021 |
94,500 |
91,348 |
10,047 |
0 |
10,047 |
122.23 |
$1,228 |
$42 |
|||||
| Property Account Status/Adjustments/Exemptions | ||
|---|---|---|
| Account # | Exemption Description | Amount |
|
R145761285 |
5% Capped Account |
0 |
| Property Deed Transaction History (Recorded in the County Clerk's Office) | |||||||
|---|---|---|---|---|---|---|---|
| Date | Type | Book | Page | Price | Grantor | Grantee | |
|
11/8/2005 |
|
Deeds |
$0 |
MARTINEZ ENRIQUE |
MARTINEZ ENRIQUE & MILDRED J |
||
|
3/1/2004 |
|
Deeds |
$65,000 |
MCALPIN RANDAL P & CORI R |
MARTINEZ ENRIQUE |
||
|
6/29/1992 |
|
Historical |
$45,000 |
SMITH RONNIE J & SHEILA |
MCALPIN RANDAL P & CORI R |
||
|
11/11/1911 |
|
Historical |
$0 |
|
SMITH RONNIE J & SHEILA |
||
| Last Mailed Notice of Value (N.O.V.) Information/History | ||||||||
|---|---|---|---|---|---|---|---|---|
| Year | Date | Market Value | Taxable Market Value | Gross Assessed | Exemption | Net Assessed | ||
|
2026 |
02/23/2026 |
135,500 |
116,583 |
12,823 |
0 |
12,823 |
||
|
2025 |
02/14/2025 |
141,000 |
111,032 |
12,212 |
0 |
12,212 |
||
|
2024 |
02/13/2024 |
139,500 |
105,745 |
11,631 |
0 |
11,631 |
||
|
2023 |
02/14/2023 |
127,500 |
100,710 |
11,077 |
0 |
11,077 |
||
|
2022 |
03/15/2022 |
112,000 |
95,915 |
10,549 |
0 |
10,549 |
||
| Property Building Permit History | |||||||||||
|---|---|---|---|---|---|---|---|---|---|---|---|
| Issued | Permit # | Provided by | Bldg # | Description | Est Construction Cost | Status | |||||
| No Building Permit records returned. | |||||||||||
| Click button on building number to access detailed information: | ||||||
|---|---|---|---|---|---|---|
| Bldg # | Vacant/Improved Land | Bldg Description | Year Built | SqFt | # Stories | |
|
1 |
Improved |
Ranch 1 Story |
1957 |
1,134 |
1 Stories |
|