|
|
|
| Larry Stein Oklahoma County Assessor (405) 713-1200 - Public Access System |
|
|
|
|
|
|
| Real Property Display - Screen Produced 2/27/2026 5:00:52 AM | ||||
|---|---|---|---|---|
| Account: R145801035 | Type: Residential | Location: |
4333 NW 30TH ST |
|
| Building Name/Occupant: |
|
OKLAHOMA CITY |
||
| Owner Name 1: | STEADY PLODDING INVESTMENTS LLC |
Parcel PIN#: |
2892-14-580-1035 |
|
| Owner Name 2: | 1/4 section #: |
2892 |
||
| Owner Name 3: | Parent Acct: |
|
||
| Billing Address: | 3117 ASHETON CT | Tax District: |
|
|
| City, State, Zip | EDMOND, OK 73034-5847 | School System: |
Putnam City #1 |
|
|
Country: (If noted) |
Land Size: |
0.1596 Acres |
||
|
Land Value: 26,425 |
|
|||
|
Sect 23-T12N-R4W Qtr NW |
MERIDIAN COURTS 3RD
Block
001
Lot
004
|
|||
| Full Legal Description: MERIDIAN COURTS 3RD 001 004 |
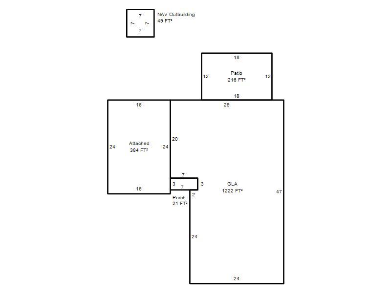
| Photo & Sketch (if available) | Comp Sales (ordered by relevancy) |
|
||||||||||||||||||
|
||||||||||||||||||||
| Value History (*The County Treasurer 405-713-1300 posts & collects actual tax amounts. Contact information HERE) | |||||||||||||
|---|---|---|---|---|---|---|---|---|---|---|---|---|---|
| Year | Market Value | Taxable Mkt Value | Gross Assessed | Exemption | Net Assessed | Millage | Est. Tax | Tax Savings | |||||
|
2025 |
147,000 |
121,711 |
13,387 |
0 |
13,387 |
123.17 |
$1,649 |
$343 |
|||||
|
2024 |
143,500 |
115,916 |
12,750 |
0 |
12,750 |
122.30 |
$1,559 |
$371 |
|||||
|
2023 |
134,500 |
110,397 |
12,143 |
0 |
12,143 |
121.91 |
$1,480 |
$323 |
|||||
|
2022 |
117,500 |
105,140 |
11,564 |
0 |
11,564 |
123.41 |
$1,427 |
$168 |
|||||
|
2021 |
101,500 |
100,134 |
11,014 |
0 |
11,014 |
122.23 |
$1,346 |
$18 |
|||||
| Property Account Status/Adjustments/Exemptions | ||
|---|---|---|
| Account # | Exemption Description | Amount |
|
R145801035 |
5% Capped Account |
0 |
| Property Deed Transaction History (Recorded in the County Clerk's Office) | ||||||||||
|---|---|---|---|---|---|---|---|---|---|---|
| Date | Type | Book | Page | Price | Grantor | Grantee | ||||
|
2/17/2012 |
|
Deeds |
$55,000 |
CHEMLAL ALI RILEY APRIL J |
STEADY PLODDING INVESTMENTS LLC |
|||||
|
4/16/2008 |
|
Deeds |
$83,500 |
HAMM JOEL OREN III |
CHEMLAL ALI RILEY APRIL J |
|||||
|
7/20/2001 |
|
Deeds |
$60,000 |
ARLEDGE M |
HAMM JOEL OREN III |
|||||
|
3/21/2000 |
|
Deeds |
$0 |
ARLEDGE CHRIS A & LAURA MARBLE |
ARLEDGE M |
|||||
|
3/1/1995 |
|
Historical |
$40,500 |
ROBERTS SUSAN DIANE |
ARLEDGE CHRIS A & LAURA MARBLE |
|||||
| Last Mailed Notice of Value (N.O.V.) Information/History | ||||||||
|---|---|---|---|---|---|---|---|---|
| Year | Date | Market Value | Taxable Market Value | Gross Assessed | Exemption | Net Assessed | ||
|
2026 |
02/23/2026 |
142,500 |
127,796 |
14,057 |
0 |
14,057 |
||
|
2025 |
02/14/2025 |
147,000 |
121,711 |
13,387 |
0 |
13,387 |
||
|
2024 |
02/13/2024 |
143,500 |
115,916 |
12,750 |
0 |
12,750 |
||
|
2023 |
02/14/2023 |
134,500 |
110,397 |
12,143 |
0 |
12,143 |
||
|
2022 |
03/15/2022 |
117,500 |
105,140 |
11,564 |
0 |
11,564 |
||
| Property Building Permit History | |||||||||||
|---|---|---|---|---|---|---|---|---|---|---|---|
| Issued | Permit # | Provided by | Bldg # | Description | Est Construction Cost | Status | |||||
| No Building Permit records returned. | |||||||||||
| Click button on building number to access detailed information: | ||||||
|---|---|---|---|---|---|---|
| Bldg # | Vacant/Improved Land | Bldg Description | Year Built | SqFt | # Stories | |
|
1 |
Improved |
Ranch 1 Story |
1958 |
1,222 |
1 Stories |
|