|
|
|
| Larry Stein Oklahoma County Assessor (405) 713-1200 - Public Access System |
|
|
|
|
|
|
| Real Property Display - Screen Produced 2/27/2026 6:22:20 AM | ||||
|---|---|---|---|---|
| Account: R145801055 | Type: Residential | Location: |
3117 N WARREN AVE |
|
| Building Name/Occupant: |
|
OKLAHOMA CITY |
||
| Owner Name 1: | BOUSE JOSHUA E |
Parcel PIN#: |
2892-14-580-1055 |
|
| Owner Name 2: | 1/4 section #: |
2892 |
||
| Owner Name 3: | Parent Acct: |
|
||
| Billing Address: | 3117 N WARREN AVE | Tax District: |
|
|
| City, State, Zip | OKLAHOMA CITY, OK 73112 | School System: |
Putnam City #1 |
|
|
Country: (If noted) |
Land Size: |
0.1680 Acres |
||
|
Land Value: 27,801 |
|
|||
|
Sect 23-T12N-R4W Qtr NW |
MERIDIAN COURTS 3RD
Block
002
Lot
001
|
|||
| Full Legal Description: MERIDIAN COURTS 3RD 002 001 |
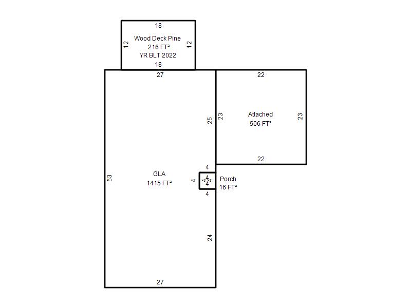
| Photo & Sketch (if available) | Comp Sales (ordered by relevancy) |
|
||||||||||||||||||
|
||||||||||||||||||||
| Value History (*The County Treasurer 405-713-1300 posts & collects actual tax amounts. Contact information HERE) | |||||||||||||
|---|---|---|---|---|---|---|---|---|---|---|---|---|---|
| Year | Market Value | Taxable Mkt Value | Gross Assessed | Exemption | Net Assessed | Millage | Est. Tax | Tax Savings | |||||
|
2025 |
217,000 |
217,000 |
23,870 |
0 |
23,870 |
123.17 |
$2,940 |
$0 |
|||||
|
2024 |
216,000 |
216,000 |
23,760 |
0 |
23,760 |
122.30 |
$2,906 |
$0 |
|||||
|
2023 |
128,500 |
128,500 |
14,135 |
0 |
14,135 |
121.91 |
$1,723 |
$0 |
|||||
|
2022 |
161,500 |
138,386 |
15,221 |
0 |
15,221 |
123.41 |
$1,879 |
$314 |
|||||
|
2021 |
138,500 |
131,797 |
14,497 |
0 |
14,497 |
122.23 |
$1,772 |
$90 |
|||||
| Property Account Status/Adjustments/Exemptions | ||
|---|---|---|
| Account # | Exemption Description | Amount |
|
R145801055 |
5% Capped Account |
0 |
| Property Deed Transaction History (Recorded in the County Clerk's Office) | ||||||||||
|---|---|---|---|---|---|---|---|---|---|---|
| Date | Type | Book | Page | Price | Grantor | Grantee | ||||
|
2/9/2023 |
|
Deeds |
$200,000 |
GRETCHJOE PROPERTIES LLC |
BOUSE JOSHUA E |
|||||
|
2/8/2023 |
|
Hmstd Off & |
$0 |
BLACK WIDOW RENTALS LLC |
GRETCHJOE PROPERTIES LLC |
|||||
|
2/8/2023 |
|
Hmstd Off & |
$0 |
WALDON ANDREW S |
GRETCHJOE PROPERTIES LLC |
|||||
|
9/22/2022 |
|
Hmstd Off & |
$0 |
WALDON ANDREW SCOTT |
BLACK WIDOW RENTALS LLC |
|||||
|
7/14/2020 |
|
Hmstd Off & |
$0 |
WALDON LAJEANA |
WALDON ANDREW |
|||||
| Last Mailed Notice of Value (N.O.V.) Information/History | ||||||||
|---|---|---|---|---|---|---|---|---|
| Year | Date | Market Value | Taxable Market Value | Gross Assessed | Exemption | Net Assessed | ||
|
2025 |
02/14/2025 |
217,000 |
217,000 |
23,870 |
0 |
23,870 |
||
|
2024 |
02/13/2024 |
216,000 |
216,000 |
23,760 |
0 |
23,760 |
||
|
2022 |
03/15/2022 |
161,500 |
138,386 |
15,221 |
0 |
15,221 |
||
|
2021 |
03/19/2021 |
138,500 |
131,797 |
14,497 |
0 |
14,497 |
||
|
2020 |
03/10/2020 |
128,000 |
125,521 |
13,807 |
0 |
13,807 |
||
| Property Building Permit History | ||||||
|---|---|---|---|---|---|---|
| Issued | Permit # | Provided by | Bldg # | Description | Est Construction Cost | Status |
|
12/15/2022 |
BLDR 2022-07612 |
|
1 |
Fire Remodel |
|
Inactive |
|
12/3/1991 |
10240898 |
OKLAHOMA CITY |
1 |
Burn - Trip |
4,000 |
Inactive |
| Click button on building number to access detailed information: | ||||||
|---|---|---|---|---|---|---|
| Bldg # | Vacant/Improved Land | Bldg Description | Year Built | SqFt | # Stories | |
|
1 |
Improved |
Ranch 1 Story |
1958 |
1,415 |
1 Stories |
|