|
|
|
| Larry Stein Oklahoma County Assessor (405) 713-1200 - Public Access System |
|
|
|
|
|
|
| Real Property Display - Screen Produced 2/27/2026 11:55:33 AM | ||||
|---|---|---|---|---|
| Account: R146101010 | Type: Residential | Location: |
4229 NW 33RD ST |
|
| Building Name/Occupant: |
|
OKLAHOMA CITY |
||
| Owner Name 1: | SHRUM ELVIS E & CAROLYN J |
Parcel PIN#: |
2892-14-610-1010 |
|
| Owner Name 2: | 1/4 section #: |
2892 |
||
| Owner Name 3: | Parent Acct: |
|
||
| Billing Address: | 4229 NW 33RD ST | Tax District: |
|
|
| City, State, Zip | OKLAHOMA CITY, OK 73112-3113 | School System: |
Putnam City #1 |
|
|
Country: (If noted) |
Land Size: |
0.1667 Acres |
||
|
Land Value: 27,588 |
|
|||
|
Sect 23-T12N-R4W Qtr NW |
WINDSOR HIGHLAND
Block
001
Lot
002
|
|||
| Full Legal Description: WINDSOR HIGHLAND 001 002 |
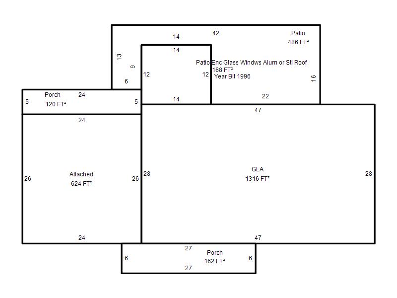
| Photo & Sketch (if available) | Comp Sales (ordered by relevancy) |
|
||||||||||||||||||
|
||||||||||||||||||||
| Value History (*The County Treasurer 405-713-1300 posts & collects actual tax amounts. Contact information HERE) | |||||||||||||
|---|---|---|---|---|---|---|---|---|---|---|---|---|---|
| Year | Market Value | Taxable Mkt Value | Gross Assessed | Exemption | Net Assessed | Millage | Est. Tax | Tax Savings | |||||
|
2025 |
206,000 |
142,870 |
15,714 |
1,000 |
14,714 |
123.17 |
$1,813 |
$978 |
|||||
|
2024 |
201,000 |
138,709 |
15,257 |
1,000 |
14,257 |
122.30 |
$1,744 |
$960 |
|||||
|
2023 |
188,000 |
134,669 |
14,813 |
1,000 |
13,813 |
121.91 |
$1,684 |
$837 |
|||||
|
2022 |
164,500 |
130,747 |
14,380 |
1,000 |
13,380 |
123.41 |
$1,651 |
$582 |
|||||
|
2021 |
142,500 |
126,939 |
13,962 |
1,000 |
12,962 |
122.23 |
$1,585 |
$331 |
|||||
| Property Account Status/Adjustments/Exemptions | ||
|---|---|---|
| Account # | Exemption Description | Amount |
|
R146101010 |
3% Cap Homestead |
0 |
|
R146101010 |
Homestead |
1,000 |
| Property Deed Transaction History (Recorded in the County Clerk's Office) | |||||||
|---|---|---|---|---|---|---|---|
| Date | Type | Book | Page | Price | Grantor | Grantee | |
|
4/1/1991 |
|
Historical |
$47,000 |
NIX RICHARD D & LEIGH A |
SHRUM ELVIS E & CAROLYN J |
||
|
9/1/1976 |
|
Historical |
$0 |
|
NIX RICHARD D & LEIGH A |
||
| Last Mailed Notice of Value (N.O.V.) Information/History | ||||||||
|---|---|---|---|---|---|---|---|---|
| Year | Date | Market Value | Taxable Market Value | Gross Assessed | Exemption | Net Assessed | ||
|
2026 |
02/23/2026 |
205,500 |
147,156 |
16,186 |
1,000 |
15,186 |
||
|
2025 |
02/14/2025 |
206,000 |
142,870 |
15,714 |
1,000 |
14,714 |
||
|
2024 |
02/13/2024 |
201,000 |
138,709 |
15,257 |
1,000 |
14,257 |
||
|
2023 |
02/14/2023 |
188,000 |
134,669 |
14,813 |
1,000 |
13,813 |
||
|
2022 |
03/15/2022 |
164,500 |
130,747 |
14,380 |
1,000 |
13,380 |
||
| Property Building Permit History | |||||||||||
|---|---|---|---|---|---|---|---|---|---|---|---|
| Issued | Permit # | Provided by | Bldg # | Description | Est Construction Cost | Status | |||||
| No Building Permit records returned. | |||||||||||
| Click button on building number to access detailed information: | ||||||
|---|---|---|---|---|---|---|
| Bldg # | Vacant/Improved Land | Bldg Description | Year Built | SqFt | # Stories | |
|
1 |
Improved |
Ranch 1 Story |
1975 |
1,316 |
1 Stories |
|