|
|
|
| Larry Stein Oklahoma County Assessor (405) 713-1200 - Public Access System |
|
|
|
|
|
|
| Real Property Display - Screen Produced 2/27/2026 12:35:02 PM | ||||
|---|---|---|---|---|
| Account: R146101210 | Type: Residential | Location: |
3200 N VERMONT AVE |
|
| Building Name/Occupant: |
|
OKLAHOMA CITY |
||
| Owner Name 1: | MOULTON MAX & ALICE FAYE |
Parcel PIN#: |
2892-14-610-1210 |
|
| Owner Name 2: | 1/4 section #: |
2892 |
||
| Owner Name 3: | Parent Acct: |
|
||
| Billing Address: | 3200 N VERMONT AVE | Tax District: |
|
|
| City, State, Zip | OKLAHOMA CITY, OK 73112-3131 | School System: |
Putnam City #1 |
|
|
Country: (If noted) |
Land Size: |
0.1663 Acres |
||
|
Land Value: 27,531 |
|
|||
|
Sect 23-T12N-R4W Qtr NW |
WINDSOR HIGHLAND
Block
001
Lot
022
|
|||
| Full Legal Description: WINDSOR HIGHLAND 001 022 |
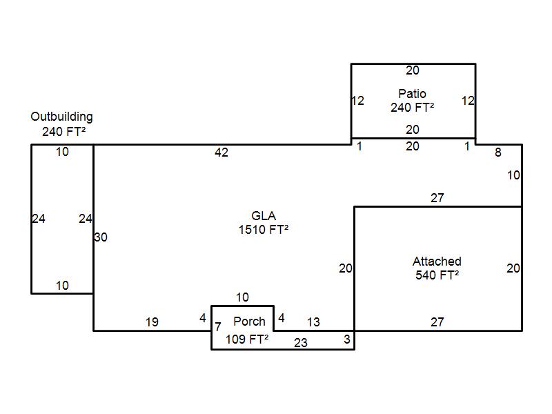
| Photo & Sketch (if available) | Comp Sales (ordered by relevancy) |
|
||||||||||||||||||
|
||||||||||||||||||||
| Value History (*The County Treasurer 405-713-1300 posts & collects actual tax amounts. Contact information HERE) | |||||||||||||
|---|---|---|---|---|---|---|---|---|---|---|---|---|---|
| Year | Market Value | Taxable Mkt Value | Gross Assessed | Exemption | Net Assessed | Millage | Est. Tax | Tax Savings | |||||
|
2025 |
192,000 |
139,605 |
15,356 |
1,000 |
14,356 |
123.17 |
$1,768 |
$833 |
|||||
|
2024 |
188,500 |
135,539 |
14,909 |
1,000 |
13,909 |
122.30 |
$1,701 |
$835 |
|||||
|
2023 |
177,500 |
131,592 |
14,474 |
1,000 |
13,474 |
121.91 |
$1,643 |
$738 |
|||||
|
2022 |
156,500 |
127,760 |
14,052 |
1,000 |
13,052 |
123.41 |
$1,611 |
$514 |
|||||
|
2021 |
137,000 |
124,039 |
13,643 |
1,000 |
12,643 |
122.23 |
$1,546 |
$296 |
|||||
| Property Account Status/Adjustments/Exemptions | ||
|---|---|---|
| Account # | Exemption Description | Amount |
|
R146101210 |
3% Cap Homestead |
0 |
|
R146101210 |
Homestead |
1,000 |
| Property Deed Transaction History (Recorded in the County Clerk's Office) | |||||||
|---|---|---|---|---|---|---|---|
| Date | Type | Book | Page | Price | Grantor | Grantee | |
|
6/1/1980 |
|
Historical |
$0 |
|
MOULTON MAX & ALICE FAYE |
||
| Last Mailed Notice of Value (N.O.V.) Information/History | ||||||||
|---|---|---|---|---|---|---|---|---|
| Year | Date | Market Value | Taxable Market Value | Gross Assessed | Exemption | Net Assessed | ||
|
2026 |
02/23/2026 |
190,000 |
143,793 |
15,816 |
1,000 |
14,816 |
||
|
2025 |
02/14/2025 |
192,000 |
139,605 |
15,356 |
1,000 |
14,356 |
||
|
2024 |
02/13/2024 |
188,500 |
135,539 |
14,909 |
1,000 |
13,909 |
||
|
2023 |
02/14/2023 |
177,500 |
131,592 |
14,474 |
1,000 |
13,474 |
||
|
2022 |
03/15/2022 |
156,500 |
127,760 |
14,052 |
1,000 |
13,052 |
||
| Property Building Permit History | |||||||||||
|---|---|---|---|---|---|---|---|---|---|---|---|
| Issued | Permit # | Provided by | Bldg # | Description | Est Construction Cost | Status | |||||
| No Building Permit records returned. | |||||||||||
| Click button on building number to access detailed information: | ||||||
|---|---|---|---|---|---|---|
| Bldg # | Vacant/Improved Land | Bldg Description | Year Built | SqFt | # Stories | |
|
1 |
Improved |
Ranch 1 Story |
1965 |
1,510 |
1 Stories |
|