|
|
|
| Larry Stein Oklahoma County Assessor (405) 713-1200 - Public Access System |
|
|
|
|
|
|
| Real Property Display - Screen Produced 4/28/2026 9:51:30 PM | ||||
|---|---|---|---|---|
| Account: R146101270 | Type: Residential | Location: |
4216 NW 33RD ST |
|
| Building Name/Occupant: |
|
OKLAHOMA CITY |
||
| Owner Name 1: | DEL VILLAR CINTHIA J |
Parcel PIN#: |
2892-14-610-1270 |
|
| Owner Name 2: | 1/4 section #: |
2892 |
||
| Owner Name 3: | Parent Acct: |
|
||
| Billing Address: | 4216 NW 33RD ST | Tax District: |
|
|
| City, State, Zip | OKLAHOMA CITY, OK 73112-3114 | School System: |
Putnam City #1 |
|
|
Country: (If noted) |
Land Size: |
0.1800 Acres |
||
|
Land Value: 29,792 |
|
|||
|
Sect 23-T12N-R4W Qtr NW |
WINDSOR HIGHLAND
Block
002
Lot
000
|
|||
| Full Legal Description: WINDSOR HIGHLAND 002 000 LOT 5 LESS W21FT |
| Value History (*The County Treasurer 405-713-1300 posts & collects actual tax amounts. Contact information HERE) | |||||||||||||
|---|---|---|---|---|---|---|---|---|---|---|---|---|---|
| Year | Market Value | Taxable Mkt Value | Gross Assessed | Exemption | Net Assessed | Millage | Est. Tax | Tax Savings | |||||
|
2026 |
192,000 |
192,000 |
21,120 |
1,000 |
20,120 |
123.17 |
$2,478 |
$123 |
|||||
|
2025 |
192,000 |
162,085 |
17,829 |
0 |
17,829 |
123.17 |
$2,196 |
$405 |
|||||
|
2024 |
189,500 |
154,367 |
16,979 |
0 |
16,979 |
122.30 |
$2,077 |
$473 |
|||||
| Property Account Status/Adjustments/Exemptions | ||
|---|---|---|
| Account # | Exemption Description | Amount |
|
R146101270 |
Homestead |
1,000 |
| Property Deed Transaction History (Recorded in the County Clerk's Office) | ||||||||||
|---|---|---|---|---|---|---|---|---|---|---|
| Date | Type | Book | Page | Price | Grantor | Grantee | ||||
|
8/28/2025 |
|
Deeds |
$195,000 |
TORRES JAVIER |
DE VILLAR CINTHIA J |
|||||
|
8/28/2025 |
|
Hmstd Off & |
$0 |
DE VILLAR CINTHIA J |
DEL VILLAR CINTHIA J |
|||||
|
5/27/2011 |
|
Deeds |
$108,000 |
MEARS SCOTT GLEN |
TORRES JAVIER |
|||||
| Last Mailed Notice of Value (N.O.V.) Information/History | ||||||||
|---|---|---|---|---|---|---|---|---|
| Year | Date | Market Value | Taxable Market Value | Gross Assessed | Exemption | Net Assessed | ||
|
2026 |
02/23/2026 |
192,000 |
192,000 |
21,120 |
1,000 |
20,120 |
||
|
2025 |
02/14/2025 |
192,000 |
162,085 |
17,829 |
0 |
17,829 |
||
|
2024 |
02/13/2024 |
189,500 |
154,367 |
16,979 |
0 |
16,979 |
||
| Property Building Permit History | |||||||||||
|---|---|---|---|---|---|---|---|---|---|---|---|
| Issued | Permit # | Provided by | Bldg # | Description | Est Construction Cost | Status | |||||
| No Building Permit records returned. | |||||||||||
| Click button below to access detailed information and additional property photos: | ||||||
|---|---|---|---|---|---|---|
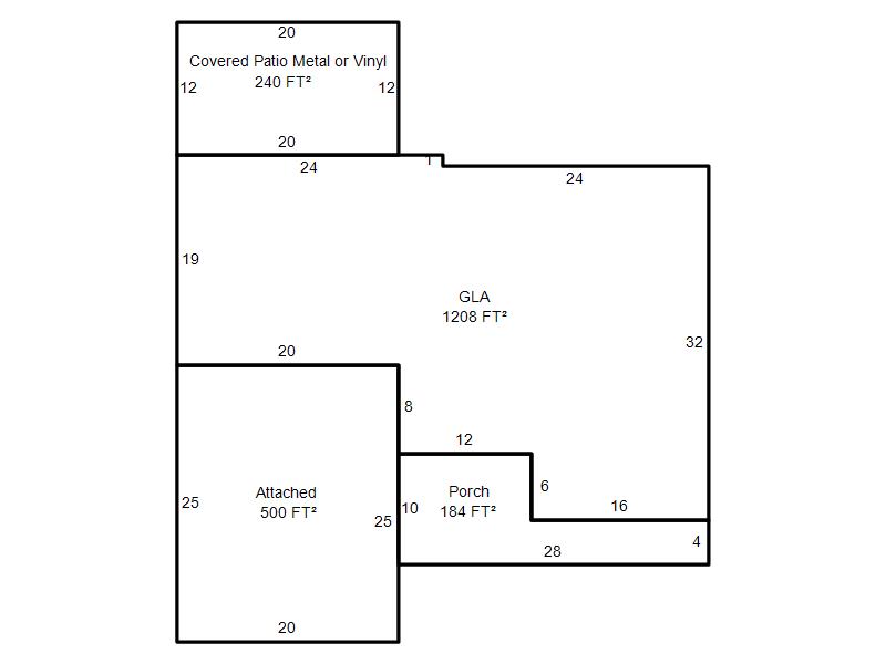
| Bldg # | Vacant/Improved Land | Bldg Description | Year Built | SqFt | # Stories | |
|
1 |
Improved |
Ranch 1 Story |
1965 |
1,208 |
1 Stories |
|