|
|
|
| Larry Stein Oklahoma County Assessor (405) 713-1200 - Public Access System |
|
|
|
|
|
|
| Real Property Display - Screen Produced 2/27/2026 12:35:07 PM | ||||
|---|---|---|---|---|
| Account: R146101280 | Type: Residential | Location: |
4208 NW 33RD ST |
|
| Building Name/Occupant: |
|
OKLAHOMA CITY |
||
| Owner Name 1: | HAYES EARNEST W & PEGGY C CO TRS |
Parcel PIN#: |
2892-14-610-1280 |
|
| Owner Name 2: | HAYES FAMILY REV TRUST | 1/4 section #: |
2892 |
|
| Owner Name 3: | Parent Acct: |
|
||
| Billing Address: | 4208 NW 33RD ST | Tax District: |
|
|
| City, State, Zip | OKLAHOMA CITY , OK 73112 | School System: |
Putnam City #1 |
|
|
Country: (If noted) |
Land Size: |
0.2039 Acres |
||
|
Land Value: 33,744 |
|
|||
|
Sect 23-T12N-R4W Qtr NW |
WINDSOR HIGHLAND
Block
002
Lot
006
|
|||
| Full Legal Description: WINDSOR HIGHLAND 002 006 |
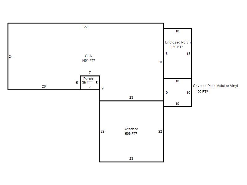
| Photo & Sketch (if available) | Comp Sales (ordered by relevancy) |
|
||||||||||||||||||
|
||||||||||||||||||||
| Value History (*The County Treasurer 405-713-1300 posts & collects actual tax amounts. Contact information HERE) | |||||||||||||
|---|---|---|---|---|---|---|---|---|---|---|---|---|---|
| Year | Market Value | Taxable Mkt Value | Gross Assessed | Exemption | Net Assessed | Millage | Est. Tax | Tax Savings | |||||
|
2025 |
188,000 |
74,418 |
8,185 |
2,000 |
6,185 |
123.17 |
$762 |
$1,785 |
|||||
|
2024 |
184,500 |
74,418 |
8,185 |
2,000 |
6,185 |
122.30 |
$757 |
$1,726 |
|||||
|
2023 |
174,000 |
74,418 |
8,185 |
2,000 |
6,185 |
121.91 |
$754 |
$1,579 |
|||||
|
2022 |
152,500 |
74,418 |
8,185 |
2,000 |
6,185 |
123.41 |
$763 |
$1,307 |
|||||
|
2021 |
132,000 |
74,418 |
8,185 |
2,000 |
6,185 |
122.23 |
$756 |
$1,019 |
|||||
| Property Account Status/Adjustments/Exemptions | ||
|---|---|---|
| Account # | Exemption Description | Amount |
|
R146101280 |
Freeze Senior Valuation |
0 |
|
R146101280 |
Senior Additional Homestead |
1,000 |
|
R146101280 |
3% Cap Homestead |
0 |
|
R146101280 |
Homestead |
1,000 |
| Property Deed Transaction History (Recorded in the County Clerk's Office) | |||||||
|---|---|---|---|---|---|---|---|
| Date | Type | Book | Page | Price | Grantor | Grantee | |
|
8/7/2018 |
|
Deeds |
$0 |
CULBERSON PEGGY A |
HAYES EARNEST W & PEGGY C CO TRS |
||
|
12/1/1978 |
|
Historical |
$0 |
|
CULBERSON PEGGY A |
||
| Last Mailed Notice of Value (N.O.V.) Information/History | ||||||||
|---|---|---|---|---|---|---|---|---|
| Year | Date | Market Value | Taxable Market Value | Gross Assessed | Exemption | Net Assessed | ||
|
2025 |
02/14/2025 |
188,000 |
74,418 |
8,185 |
2,000 |
6,185 |
||
|
2024 |
02/13/2024 |
184,500 |
74,418 |
8,185 |
2,000 |
6,185 |
||
|
2023 |
02/14/2023 |
174,000 |
74,418 |
8,185 |
2,000 |
6,185 |
||
|
2022 |
03/15/2022 |
152,500 |
74,418 |
8,185 |
2,000 |
6,185 |
||
|
2021 |
03/19/2021 |
132,000 |
74,418 |
8,185 |
2,000 |
6,185 |
||
| Property Building Permit History | |||||||||||
|---|---|---|---|---|---|---|---|---|---|---|---|
| Issued | Permit # | Provided by | Bldg # | Description | Est Construction Cost | Status | |||||
| No Building Permit records returned. | |||||||||||
| Click button on building number to access detailed information: | ||||||
|---|---|---|---|---|---|---|
| Bldg # | Vacant/Improved Land | Bldg Description | Year Built | SqFt | # Stories | |
|
1 |
Improved |
Ranch 1 Story |
1965 |
1,401 |
1 Stories |
|