|
|
|
| Larry Stein Oklahoma County Assessor (405) 713-1200 - Public Access System |
|
|
|
|
|
|
| Real Property Display - Screen Produced 2/27/2026 11:54:24 AM | ||||
|---|---|---|---|---|
| Account: R146191080 | Type: Residential | Location: |
3148 N GERALDINE AVE |
|
| Building Name/Occupant: |
|
OKLAHOMA CITY |
||
| Owner Name 1: | FERIA ISABEL P |
Parcel PIN#: |
2892-14-619-1080 |
|
| Owner Name 2: | 1/4 section #: |
2892 |
||
| Owner Name 3: | Parent Acct: |
|
||
| Billing Address: | 3148 N GERALDINE AVE | Tax District: |
|
|
| City, State, Zip | OKLAHOMA CITY, OK 73112-3116 | School System: |
Putnam City #1 |
|
|
Country: (If noted) |
Land Size: |
0.1708 Acres |
||
|
Land Value: 28,272 |
|
|||
|
Sect 23-T12N-R4W Qtr NW |
WINDSOR HIGHLAND 2ND
Block
001
Lot
009
|
|||
| Full Legal Description: WINDSOR HIGHLAND 2ND 001 009 |
| Photo & Sketch (if available) | Comp Sales (ordered by relevancy) |
|
||||||||||||||||||
|
||||||||||||||||||||
| Value History (*The County Treasurer 405-713-1300 posts & collects actual tax amounts. Contact information HERE) | |||||||||||||
|---|---|---|---|---|---|---|---|---|---|---|---|---|---|
| Year | Market Value | Taxable Mkt Value | Gross Assessed | Exemption | Net Assessed | Millage | Est. Tax | Tax Savings | |||||
|
2025 |
175,000 |
125,907 |
13,849 |
1,000 |
12,849 |
123.17 |
$1,583 |
$788 |
|||||
|
2024 |
172,500 |
122,240 |
13,445 |
1,000 |
12,445 |
122.30 |
$1,522 |
$798 |
|||||
|
2023 |
162,000 |
118,680 |
13,054 |
1,000 |
12,054 |
121.91 |
$1,470 |
$703 |
|||||
|
2022 |
142,500 |
115,224 |
12,674 |
1,000 |
11,674 |
123.41 |
$1,441 |
$494 |
|||||
|
2021 |
124,000 |
111,868 |
12,305 |
1,000 |
11,305 |
122.23 |
$1,382 |
$285 |
|||||
| Property Account Status/Adjustments/Exemptions | ||
|---|---|---|
| Account # | Exemption Description | Amount |
|
R146191080 |
3% Cap Homestead |
0 |
|
R146191080 |
Homestead |
1,000 |
| Property Deed Transaction History (Recorded in the County Clerk's Office) | |||||||
|---|---|---|---|---|---|---|---|
| Date | Type | Book | Page | Price | Grantor | Grantee | |
|
11/21/2014 |
|
Deeds |
$0 |
FERIA ISABEL P FERIA JOSEPH |
FERIA ISABEL P |
||
|
3/14/2003 |
|
Deeds |
$88,000 |
HINKLE RICHARD A & JANICE K |
FERIA ISABEL P FERIA JOSEPH |
||
|
4/1/1977 |
|
Historical |
$0 |
|
HINKLE RICHARD A & JANICE K |
||
| Last Mailed Notice of Value (N.O.V.) Information/History | ||||||||
|---|---|---|---|---|---|---|---|---|
| Year | Date | Market Value | Taxable Market Value | Gross Assessed | Exemption | Net Assessed | ||
|
2026 |
02/23/2026 |
173,000 |
129,684 |
14,264 |
1,000 |
13,264 |
||
|
2025 |
02/14/2025 |
175,000 |
125,907 |
13,849 |
1,000 |
12,849 |
||
|
2024 |
02/13/2024 |
172,500 |
122,240 |
13,445 |
1,000 |
12,445 |
||
|
2023 |
02/14/2023 |
162,000 |
118,680 |
13,054 |
1,000 |
12,054 |
||
|
2022 |
03/15/2022 |
142,500 |
115,224 |
12,674 |
1,000 |
11,674 |
||
| Property Building Permit History | |||||||||||
|---|---|---|---|---|---|---|---|---|---|---|---|
| Issued | Permit # | Provided by | Bldg # | Description | Est Construction Cost | Status | |||||
| No Building Permit records returned. | |||||||||||
| Click button on building number to access detailed information: | ||||||
|---|---|---|---|---|---|---|
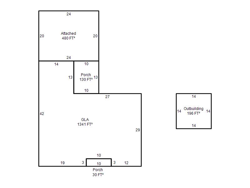
| Bldg # | Vacant/Improved Land | Bldg Description | Year Built | SqFt | # Stories | |
|
1 |
Improved |
Ranch 1 Story |
1964 |
1,341 |
1 Stories |
|