|
|
|
| Larry Stein Oklahoma County Assessor (405) 713-1200 - Public Access System |
|
|
|
|
|
|
| Real Property Display - Screen Produced 4/1/2026 7:44:49 PM | ||||
|---|---|---|---|---|
| Account: R052504050 | Type: Residential | Location: |
3144 NW 33RD ST |
|
| Building Name/Occupant: |
|
OKLAHOMA CITY |
||
| Owner Name 1: | KENT JUSTIN A |
Parcel PIN#: |
2893-05-250-4050 |
|
| Owner Name 2: | 1/4 section #: |
2893 |
||
| Owner Name 3: | Parent Acct: |
|
||
| Billing Address: | 3144 NW 33RD ST | Tax District: |
|
|
| City, State, Zip | OKLAHOMA CITY, OK 73112-6717 | School System: |
Oklahoma City #89 |
|
|
Country: (If noted) |
Land Size: |
0.1354 Acres |
||
|
Land Value: 14,160 |
|
|||
|
Sect 24-T12N-R4W Qtr NE |
LYONS WILL ROGERS PK
Block
004
Lot
012
|
|||
| Full Legal Description: LYONS WILL ROGERS PK 004 012 |
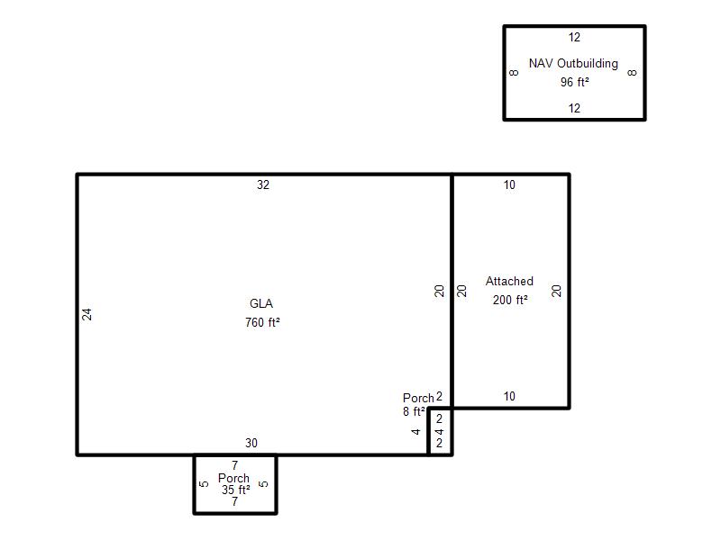
| Photo & Sketch (if available) | Comp Sales (ordered by relevancy) |
|
||||||||||||||||||
|
||||||||||||||||||||
| Value History (*The County Treasurer 405-713-1300 posts & collects actual tax amounts. Contact information HERE) | |||||||||||||
|---|---|---|---|---|---|---|---|---|---|---|---|---|---|
| Year | Market Value | Taxable Mkt Value | Gross Assessed | Exemption | Net Assessed | Millage | Est. Tax | Tax Savings | |||||
|
2026 |
108,000 |
72,461 |
7,970 |
0 |
7,970 |
122.90 |
$980 |
$480 |
|||||
|
2025 |
105,500 |
69,011 |
7,590 |
0 |
7,590 |
122.90 |
$933 |
$493 |
|||||
|
2024 |
99,000 |
65,725 |
7,229 |
0 |
7,229 |
123.89 |
$896 |
$453 |
|||||
|
2023 |
87,000 |
62,596 |
6,884 |
0 |
6,884 |
122.82 |
$846 |
$330 |
|||||
|
2022 |
70,000 |
59,616 |
6,557 |
0 |
6,557 |
117.63 |
$771 |
$134 |
|||||
| Property Account Status/Adjustments/Exemptions | ||
|---|---|---|
| Account # | Exemption Description | Amount |
|
R052504050 |
5% Capped Account |
0 |
| Property Deed Transaction History (Recorded in the County Clerk's Office) | |||||||
|---|---|---|---|---|---|---|---|
| Date | Type | Book | Page | Price | Grantor | Grantee | |
|
6/9/2006 |
|
Deeds |
$54,000 |
WYLIE MARVIN |
KENT JUSTIN A |
||
|
4/26/2005 |
|
Deeds |
$30,500 |
CHADRICK TOBY BRENT |
WYLIE MARVIN |
||
|
10/14/1999 |
|
Deeds |
$30,500 |
DUCKETT JESSIE R & S |
CHADRICK TOBY BRENT |
||
|
11/11/1911 |
|
Historical |
$0 |
|
DUCKETT JESSIE R & S |
||
| Last Mailed Notice of Value (N.O.V.) Information/History | ||||||||
|---|---|---|---|---|---|---|---|---|
| Year | Date | Market Value | Taxable Market Value | Gross Assessed | Exemption | Net Assessed | ||
|
2026 |
02/23/2026 |
108,000 |
72,461 |
7,970 |
0 |
7,970 |
||
|
2025 |
02/14/2025 |
105,500 |
69,011 |
7,590 |
0 |
7,590 |
||
|
2024 |
02/13/2024 |
99,000 |
65,725 |
7,229 |
0 |
7,229 |
||
|
2023 |
02/14/2023 |
87,000 |
62,596 |
6,884 |
0 |
6,884 |
||
|
2022 |
03/15/2022 |
70,000 |
59,616 |
6,557 |
0 |
6,557 |
||
| Property Building Permit History | |||||||||||
|---|---|---|---|---|---|---|---|---|---|---|---|
| Issued | Permit # | Provided by | Bldg # | Description | Est Construction Cost | Status | |||||
| No Building Permit records returned. | |||||||||||
| Click button on building number to access detailed information: | ||||||
|---|---|---|---|---|---|---|
| Bldg # | Vacant/Improved Land | Bldg Description | Year Built | SqFt | # Stories | |
|
1 |
Improved |
Ranch 1 Story |
1948 |
760 |
1 Stories |
|