|
|
|
| Larry Stein Oklahoma County Assessor (405) 713-1200 - Public Access System |
|
|
|
|
|
|
| Real Property Display - Screen Produced 4/1/2026 7:44:50 PM | ||||
|---|---|---|---|---|
| Account: R052504075 | Type: Residential | Location: |
3148 NW 33RD ST |
|
| Building Name/Occupant: |
|
OKLAHOMA CITY |
||
| Owner Name 1: | REAL LIFE PROPERTIES LLC |
Parcel PIN#: |
2893-05-250-4075 |
|
| Owner Name 2: | 1/4 section #: |
2893 |
||
| Owner Name 3: | Parent Acct: |
|
||
| Billing Address: | 12809 SUTTON HILL RD | Tax District: |
|
|
| City, State, Zip | OKLAHOMA CITY, OK 73142-6062 | School System: |
Oklahoma City #89 |
|
|
Country: (If noted) |
Land Size: |
0.1354 Acres |
||
|
Land Value: 14,160 |
|
|||
|
Sect 24-T12N-R4W Qtr NE |
LYONS WILL ROGERS PK
Block
004
Lot
013
|
|||
| Full Legal Description: LYONS WILL ROGERS PK 004 013 |
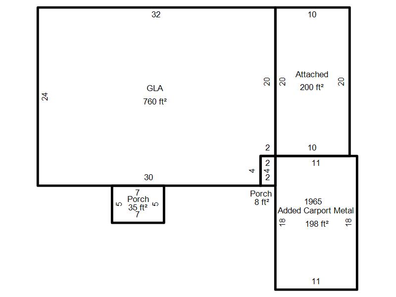
| Photo & Sketch (if available) | Comp Sales (ordered by relevancy) |
|
||||||||||||||||||
|
||||||||||||||||||||
| Value History (*The County Treasurer 405-713-1300 posts & collects actual tax amounts. Contact information HERE) | |||||||||||||
|---|---|---|---|---|---|---|---|---|---|---|---|---|---|
| Year | Market Value | Taxable Mkt Value | Gross Assessed | Exemption | Net Assessed | Millage | Est. Tax | Tax Savings | |||||
|
2026 |
105,000 |
71,055 |
7,815 |
0 |
7,815 |
122.90 |
$961 |
$459 |
|||||
|
2025 |
102,500 |
67,672 |
7,443 |
0 |
7,443 |
122.90 |
$915 |
$471 |
|||||
|
2024 |
96,500 |
64,450 |
7,088 |
0 |
7,088 |
123.89 |
$878 |
$437 |
|||||
|
2023 |
87,500 |
61,381 |
6,751 |
0 |
6,751 |
122.82 |
$829 |
$353 |
|||||
|
2022 |
70,000 |
58,459 |
6,429 |
0 |
6,429 |
117.63 |
$756 |
$149 |
|||||
| Property Account Status/Adjustments/Exemptions | ||||||
|---|---|---|---|---|---|---|
| Account # | Exemption Description | Amount | ||||
| No adjustment/exemption records returned. | ||||||
| Property Deed Transaction History (Recorded in the County Clerk's Office) | ||||||||||
|---|---|---|---|---|---|---|---|---|---|---|
| Date | Type | Book | Page | Price | Grantor | Grantee | ||||
|
7/27/2021 |
|
Hmstd Off & |
$0 |
REAL LIFE PROPERTIES THREE LLC |
REAL LIFE PROPERTIES LLC |
|||||
|
7/27/2021 |
|
Hmstd Off & |
$0 |
REAL LIFE PROPERTIES THREE LLC |
REAL LIFE PROPERTIES LLC |
|||||
|
9/15/2015 |
|
Hmstd Off & |
$0 |
BROWN BETTY & MICKEY |
REAL LIFE PROPERTIES THREE LLC |
|||||
|
5/5/2003 |
|
Other |
$0 |
SECTERARY OF HOUSING & URBAN DEV |
BROWN BETTY & MICKEY |
|||||
|
9/30/2002 |
|
Other |
$0 |
STATON MICHAEL E |
SECTERARY OF HOUSING & URBAN DEV |
|||||
| Last Mailed Notice of Value (N.O.V.) Information/History | ||||||||
|---|---|---|---|---|---|---|---|---|
| Year | Date | Market Value | Taxable Market Value | Gross Assessed | Exemption | Net Assessed | ||
|
2026 |
02/23/2026 |
105,000 |
71,055 |
7,815 |
0 |
7,815 |
||
|
2025 |
02/14/2025 |
102,500 |
67,672 |
7,443 |
0 |
7,443 |
||
|
2024 |
02/13/2024 |
96,500 |
64,450 |
7,088 |
0 |
7,088 |
||
|
2023 |
02/14/2023 |
87,500 |
61,381 |
6,751 |
0 |
6,751 |
||
|
2022 |
03/15/2022 |
70,000 |
58,459 |
6,429 |
0 |
6,429 |
||
| Property Building Permit History | |||||||||||
|---|---|---|---|---|---|---|---|---|---|---|---|
| Issued | Permit # | Provided by | Bldg # | Description | Est Construction Cost | Status | |||||
| No Building Permit records returned. | |||||||||||
| Click button on building number to access detailed information: | ||||||
|---|---|---|---|---|---|---|
| Bldg # | Vacant/Improved Land | Bldg Description | Year Built | SqFt | # Stories | |
|
1 |
Improved |
Ranch 1 Story |
1948 |
760 |
1 Stories |
|